Sunny estuary views, guest annexe and parking close to Porthilly Cove.
Dual-aspect first-floor sitting room with Juliette balcony and estuary views
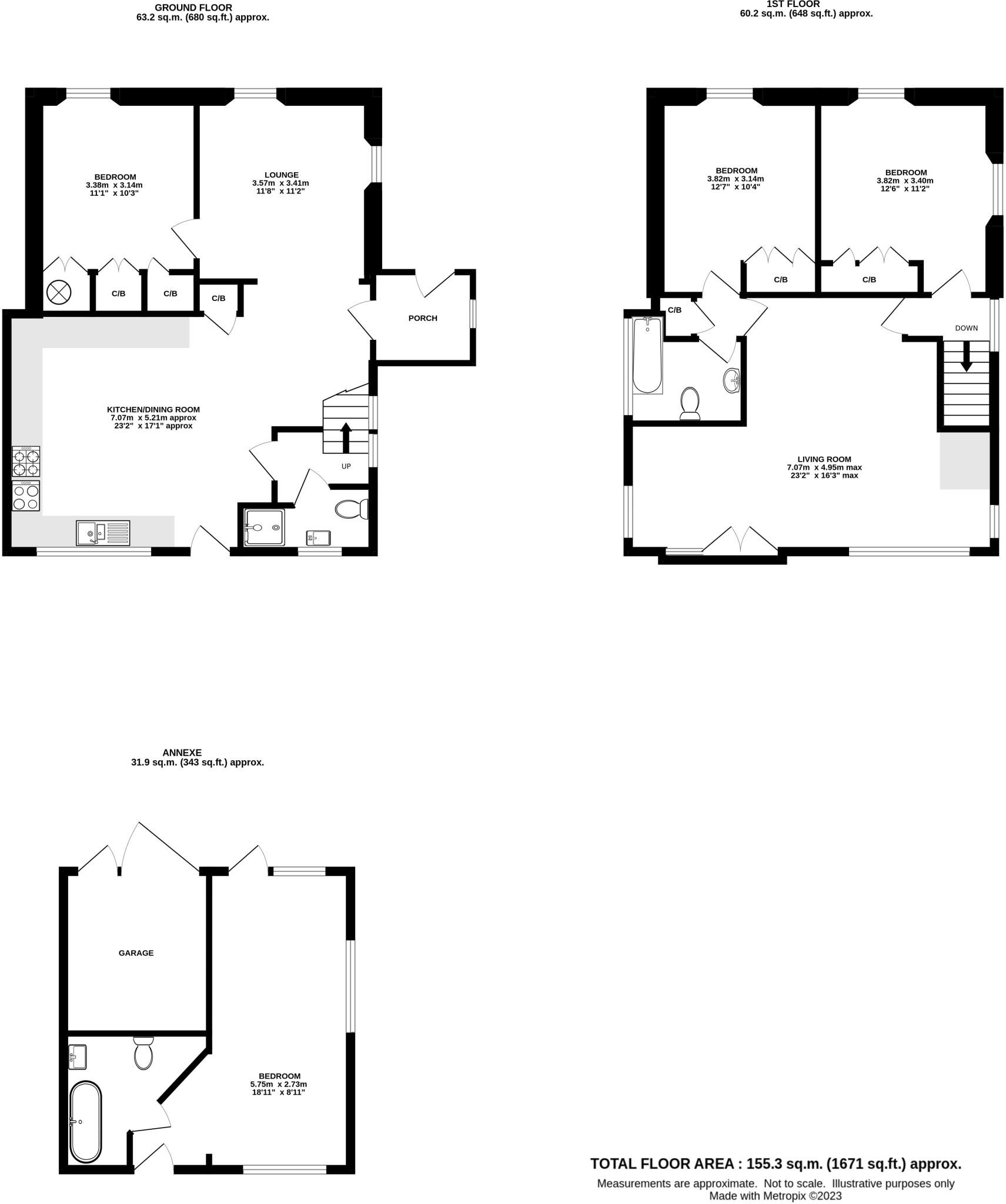
Large open-plan kitchen/dining room with adjacent TV snug
Self-contained annexe with en-suite bedroom and kitchenette facilities
Gated driveway with parking for up to three vehicles
Elevated sun deck plus two patio gardens and external storage
Freehold, low flood risk, decent plot size in village location
Heating via electric panel heaters; Calor gas hob supply for one ring
Very slow broadband speeds — limited for frequent home working
Tucked just a short walk from Porthilly Cove, this four-bedroom cottage combines coastal character with practical family living. The house offers a bright, dual-aspect first-floor sitting room with a Juliette balcony and estuary views, a large open-plan kitchen/dining room with adjoining TV snug, and an external annexe with en-suite — ideal for guests or self-contained visitor use.
Set on a decent elevated plot the property has gated driveway parking for up to three cars, an elevated sun deck and two patio gardens that catch sun at different times of day. There is useful external storage and a handy pantry off the kitchen, making day-to-day family life straightforward in a popular village location close to shops, beaches and good local schools.
Practical points are clear and should be considered: heating is electric panel heaters, with a Calor gas bottle supplied for one hob, and broadband speeds in the area are very slow — not ideal for regular home working. The cottage is freehold, in low flood-risk area, and generally presented as a comfortable, liveable home with scope to personalise or upgrade services over time.
Overall this property will suit families seeking a coastal primary residence or those wanting a lock-up-and-leave second home with flexible annexe accommodation. The combination of estuary views, parking and a self-contained bedroom makes it a rare find in this part of Rock and Wadebridge.
3 bedroom semi-detached house for sale in Puffin Cottage, Rock Road, PL27 — £695,000 • 3 bed • 2 bath • 1263 ft²
4 bedroom detached house for sale in Lerryn, PL27 — £895,000 • 4 bed • 3 bath • 1673 ft²
4 bedroom house for sale in The Cottage, PL27 — £2,250,000 • 4 bed • 4 bath • 2570 ft²
4 bedroom cottage for sale in Rosemayne, PL27 — £795,000 • 4 bed • 2 bath • 1308 ft²
3 bedroom semi-detached house for sale in 1 Trelawney Court, PL27 — £500,000 • 3 bed • 2 bath • 1172 ft²
5 bedroom detached house for sale in Galtee Beag, PL27 6LB, PL27 — £3,500,000 • 5 bed • 4 bath • 4421 ft²










































































































