Chain-free bungalow with annexe and large garden near Baltic Wharf.
Elevated position with far-reaching views across Totnes
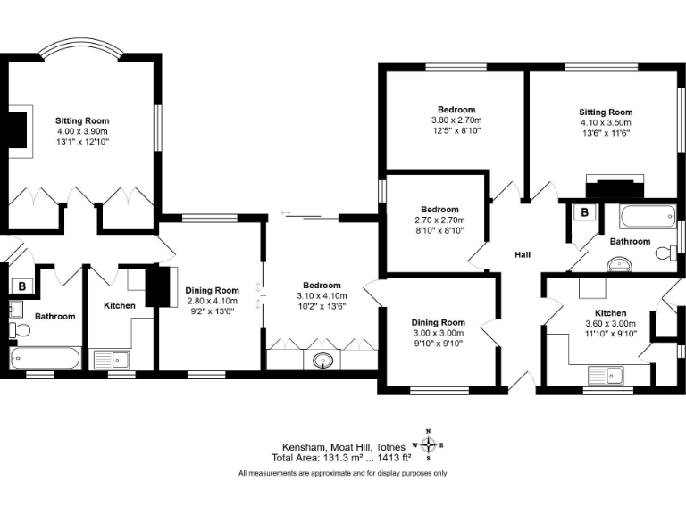
Set on an elevated plot in Totnes, this detached three-bedroom bungalow combines far-reaching town views with a substantial, part-walled garden and a self-contained annexe. The property sits on a large plot close to Baltic Wharf, with one off-street parking space and mature landscaping providing privacy and peaceful outdoor space.
The house requires general refurbishment throughout, offering strong potential for improvement and value-add. Interiors include a dated 1980s kitchen and a single bathroom; the stone walls are likely uninsulated and the glazing date is unknown, so buyers should expect thermal and modernisation works. There is scope to extend subject to planning permission for those wanting to enlarge or reconfigure the layout.
Practical benefits include mains gas central heating, double glazing (install date unknown), low local crime, fast broadband and excellent mobile signal. The bungalow is freehold, offered chain-free, and provides opportunity for multi-generational use or income via the annexe (annexe council tax band A). Its location, schooling options and nearby amenities make it suitable for downsizers or buyers seeking a renovation project with good long-term upside.
2 bedroom detached bungalow for sale in Maudlin Road, Totnes, TQ9 — £450,000 • 2 bed • 1 bath • 818 ft²
2 bedroom bungalow for sale in Totnes, TQ9 — £395,000 • 2 bed • 1 bath • 735 ft²
3 bedroom detached bungalow for sale in Higher Westonfields, Totnes, TQ9 5RB, TQ9 — £475,000 • 3 bed • 1 bath • 1124 ft²
2 bedroom semi-detached bungalow for sale in Elmhirst Drive, Totnes, TQ9 — £325,000 • 2 bed • 1 bath • 641 ft²
3 bedroom house for sale in Lansdowne Park, Totnes, TQ9 — £475,000 • 3 bed • 2 bath • 915 ft²
2 bedroom bungalow for sale in Wall Park, Totnes, TQ9 — £260,000 • 2 bed • 1 bath • 619 ft²






























































































































