Well-presented flat near Westbourne with parking and a long lease.
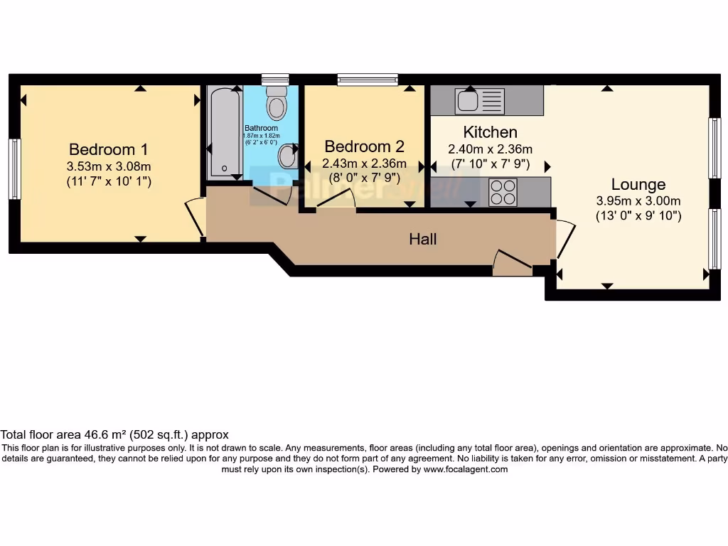
Two bedrooms in a compact 502 sqft ground-floor flat
This compact two-bedroom ground-floor flat offers an affordable route into the BH4 market, presented in good decorative order with a modern kitchen and bathroom. The accommodation is practical: entrance hall, open-plan lounge/kitchen, two bedrooms and a bathroom, all within a small 502 sqft footprint. It benefits from gas central heating, double glazing and an EPC rating of C.
Outside, the building is a period semi-detached block with a small forecourt and allocated off-street parking. The location is a strong selling point — within walking distance of Westbourne centre, local schools and transport links, and set in a generally affluent neighbourhood with fast broadband and excellent mobile signal.
Important considerations: the flat is leasehold with c.106 years remaining and a relatively high annual service charge of around £1,980. Internal space is limited and some rooms have low ceilings, so the layout suits first-time buyers, single occupants or buy-to-let investors more than families needing generous living areas. Communal areas are modest and the plot is small with no private garden.
Overall, this is a tidy, ready-to-move-in flat in a well-located Bournemouth suburb. Buyers should weigh the convenience, long lease and parking against the service charge and compact internal space when deciding to view.
2 bedroom flat for sale in West Cliff Road, West Cliff, Bournemouth, Dorset, BH4 — £242,500 • 2 bed • 1 bath • 785 ft²
2 bedroom apartment for sale in Westbourne Park Road, Bournemouth, Dorset, BH4 — £240,000 • 2 bed • 1 bath • 510 ft²
2 bedroom flat for sale in Northcote Road, Bournemouth, Dorset, BH1 — £140,000 • 2 bed • 1 bath • 524 ft²
2 bedroom apartment for sale in Shelley Road East, Bournemouth, Dorset, BH7 — £170,000 • 2 bed • 1 bath • 571 ft²
2 bedroom flat for sale in Gresham Point, 46-48 Charminster Avenue, Bournemouth, Dorset, BH9 — £180,000 • 2 bed • 1 bath • 517 ft²
2 bedroom flat for sale in Westbourne Park Road, Westbourne, Bournemouth, Dorset, BH4 — £215,000 • 2 bed • 1 bath • 588 ft²


































