Single-storey living with large private garden on the edge of Fordingbridge.
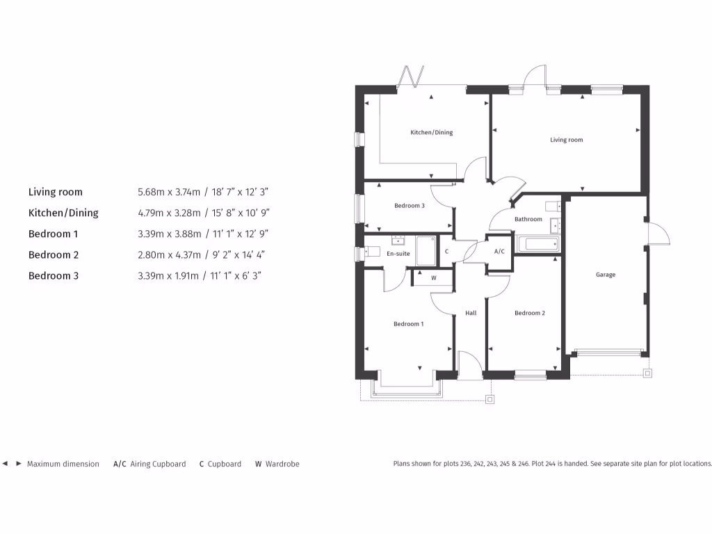
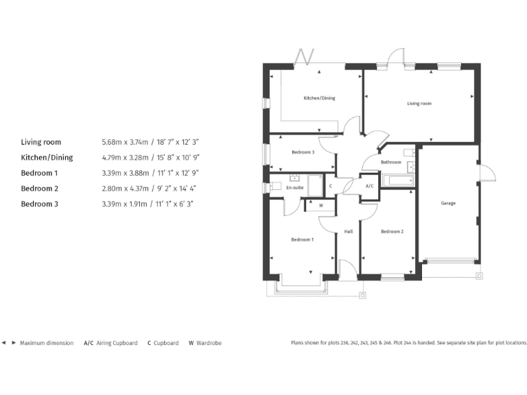
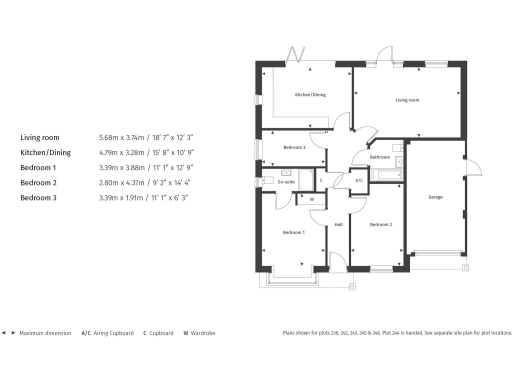
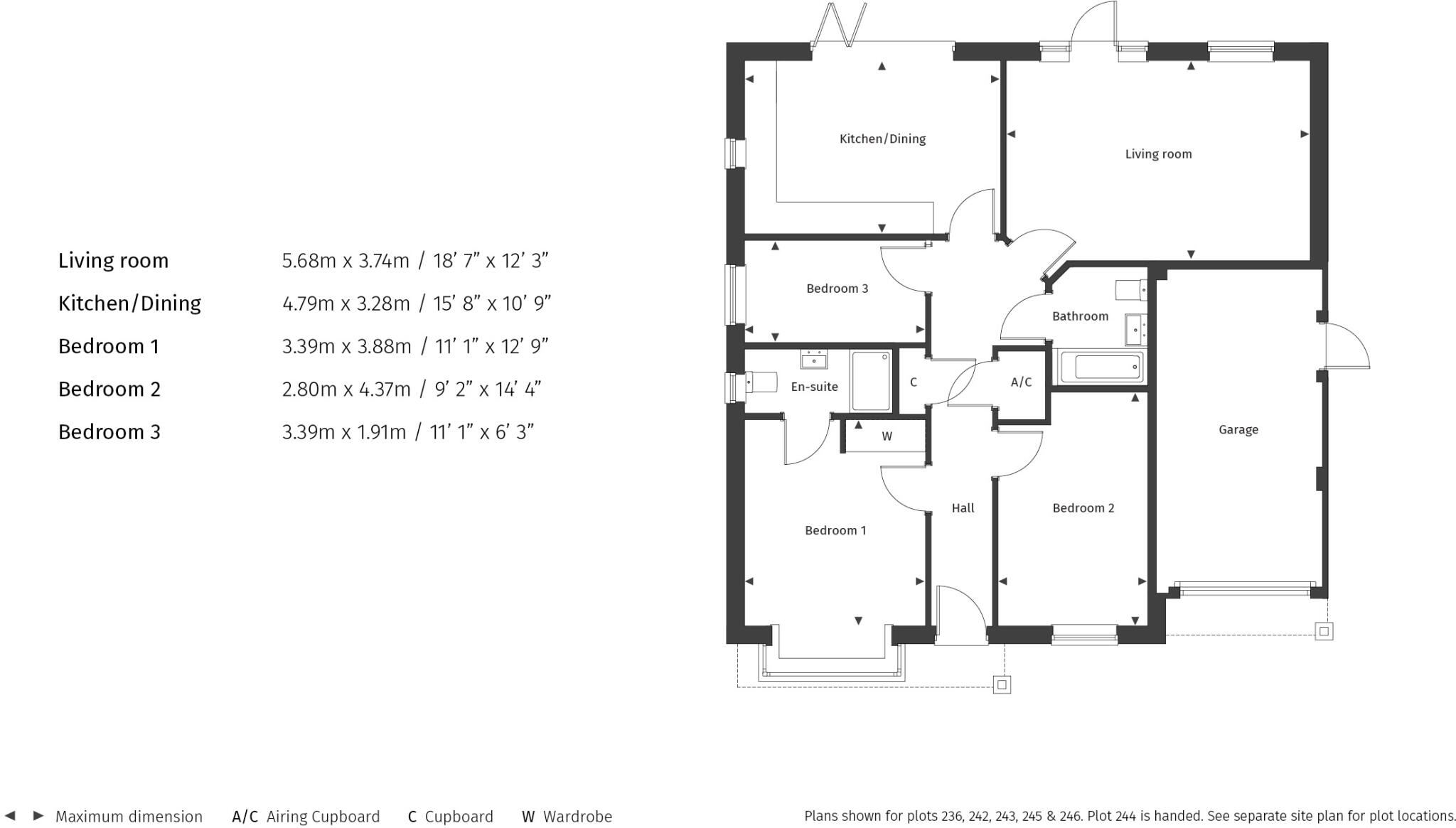
- Brand new detached three-bedroom bungalow, completion September 2025
- Integral garage plus private driveway parking
- Dual-aspect kitchen/dining with integrated appliances
- Master bedroom with ensuite and fitted wardrobe
- Very large plot with extensive private garden potential
- Modest internal living size for a three-bedroom home
- Broadband slow and mobile signal average in area
- Freehold, low local crime, council tax not provided
A brand-new three-bedroom detached bungalow set for September 2025 completion, The Riverdale suits buyers seeking one-level living in a peaceful, semi-rural setting. The home is compact inside but sits on a very large plot, offering significant outdoor space for gardening, expansion, or private outdoor living.
Inside, the dual-aspect kitchen/dining room is bright and fitted with integrated appliances, and the master bedroom benefits from an ensuite and fitted wardrobe. An integral garage and off-road parking add everyday convenience, while the layout’s traditional bungalow proportions make the house easy to maintain.
Practical points to note: internal living space is modest for a three-bedroom property, broadband speeds are reported as slow and mobile signal is average. Services and appliances have not been independently tested, and council tax details are not provided, so buyers should commission surveys and service checks prior to exchange.
Set on Whitsbury Road within a quiet development edge of Fordingbridge, the property is freehold and located in a low-crime, affluent area with good local schools nearby. This release will appeal to downsizers or buyers wanting single-storey living with a large garden and modern fixtures, but those needing fast internet or more internal space should check suitability before viewing.
3 bedroom detached bungalow for sale in Whitsbury Road, Fordingbridge, SP6 — £555,000 • 3 bed • 2 bath • 980 ft²
3 bedroom detached bungalow for sale in Whitsbury Road, Fordingbridge, SP6 — £580,000 • 3 bed • 2 bath • 1109 ft²
2 bedroom detached bungalow for sale in Whitsbury Road, Fordingbridge, SP6 — £465,000 • 2 bed • 2 bath • 821 ft²
3 bedroom detached house for sale in Whitsbury Road, Fordingbridge, SP6 — £510,000 • 3 bed • 2 bath • 1146 ft²
3 bedroom detached bungalow for sale in Fordingbridge, SP6 — £350,000 • 3 bed • 1 bath • 584 ft²
4 bedroom detached house for sale in Whitsbury Road, Fordingbridge, SP6 — £540,000 • 4 bed • 2 bath • 1196 ft²


































































