SO30 2LZ - 2 bed spacious shared ownership in Meon Valley, SO30 2LZ

View on Property Piper

2 bedroom apartment for sale in Cinquefoil Close, Curbridge, SO30

Summary - Cinquefoil Close, Curbridge SO30 2LZ

2 bed 1 bath Apartment

Affordable brand-new two-bedroom apartment with balcony and parking.
50% shared ownership — buy a 50% share for £120,000 (full value £240,000)
Brand-new build with Autumn 2025 completion date
Large overall size (~1,248 sq ft) with approx six rooms
Balcony to the apartment and integrated kitchen appliances
One allocated off-street parking space only
990-year lease — long leasehold security
Village location near Botley, schools, woodland and transport
New-build finishes may vary; expect snagging on completion
Step into a brand-new two-bedroom apartment in a quiet village setting, offered as a 50% shared ownership opportunity. At around 1,248 sq ft overall and arranged over a multi-story layout, the home feels unusually spacious for an apartment and includes a private balcony and one allocated parking space. Integrated kitchen appliances and contemporary finishes deliver a low-maintenance, modern living environment.

This property suits first-time buyers looking to get a foothold on the ladder without buying outright. The 990-year lease provides long-term security, and completion is scheduled for Autumn 2025. The location balances countryside calm with transport links: Botley station, the M27 and Southampton are all within easy reach, while local schools, shops and the Curbridge Nature Reserve are nearby.

Important practical points are clear: this is a shared ownership, leasehold sale at a 50% share (purchase price £120,000; full market value £240,000). The development is new and still under construction—finishes and materials may vary from show images and a standard snagging period should be expected on completion. There is only one allocated parking space and a small collection of six apartments, so space and availability are limited.

Overall this is a straightforward, modern entry-level home for buyers who prioritise affordability and location over immediate full ownership. The combination of long lease length, contemporary specification and village setting makes it a practical first step on the property ladder.

Property Details

Image Descriptions

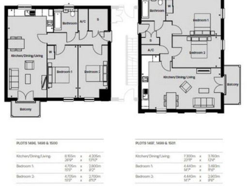
Floorplan Description

Rooms

Textual Property Features

Target Audience

AI Tags

Detected Visual Features

Nearby Schools

Nearest Bars And Restaurants

,,,,}

Nearest General Shops

,,}

Nearest Grocery shops

,,}

Nearest Supermarkets

,,}

Nearest Religious buildings

,,}

Nearest Medical buildings

,,,}

Nearest Airports

}

Nearest Leisure Facilities

,,,,}

Nearest Tourist attractions

,,}

Nearest Train stations

,,,,}

Nearest Bus stations and stops

,,,,}

Nearest Hotels

,,}

Tags

Local Market Stats

Similar Properties

Meta

High Res Images

Compatible Images

Low res Images

Thumbnails

Raw Images

High Res Floorplan Images

Compatible Floorplan Images

Low res Floorplan Images

FloorplanImages Thumbnail

Raw Floorplan Images