**Standout Features:**
- Stunning lochside location on Loch Ness
- Open-plan living area with panoramic views
- Private deck with access for outdoor entertaining
- Hot tub for relaxation
- Attractive timber finish
- Freehold tenure
- Off-street parking
**Concerns:**
- Limited broadband and mobile coverage
- Rural setting may limit access to some amenities
- Property in an area classified as 'very deprived'
Summary:
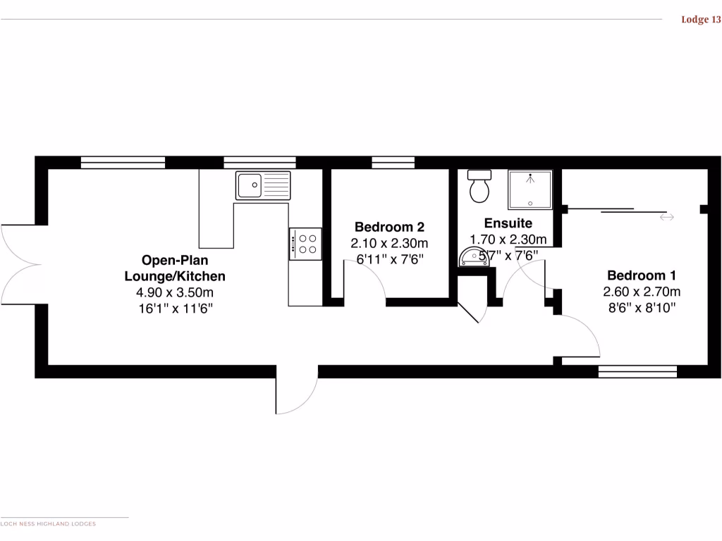
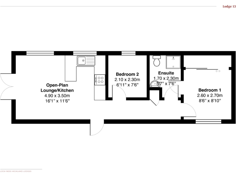
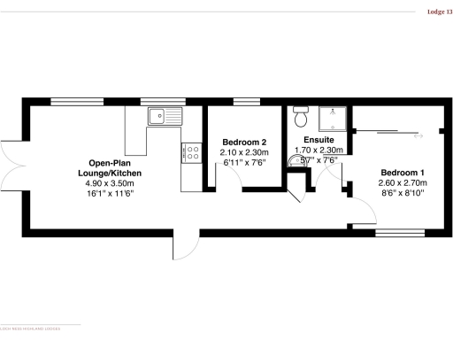
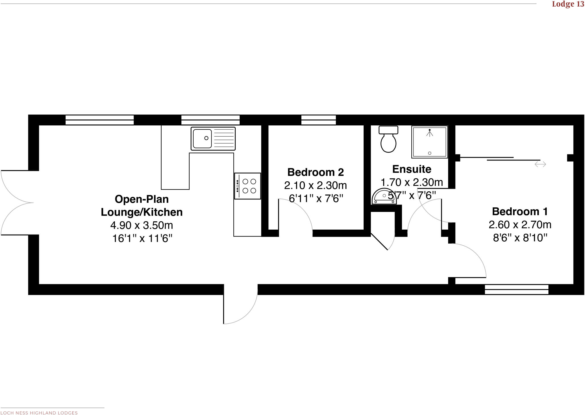
Discover Lodge 13, a stunning two-bedroom holiday home nestled along the serene shores of Loch Ness. This stylish, single-storey timber lodge features a bright and open-plan living space that seamlessly connects with the outdoors through sliding glass doors leading to a private deck, perfect for morning coffee or evening sunsets. Enjoy breathtaking views of the loch and the lush Highland hills — an ideal backdrop for relaxation or entertaining.
The lodge includes a main double bedroom with direct bathroom access, a second bedroom with twin beds, and a well-equipped kitchen featuring modern appliances. A private hot tub adds an enticing element for unwinding year-round. While offering the perfect tranquil retreat, this property provides easy accessibility to local attractions in Invermoriston and Fort Augustus.
However, potential owners should consider the limited broadband speeds and mobile coverage, as well as the surrounding area's classification as 'very deprived'. With its exceptional location and cozy comforts, Lodge 13 is poised to be your sanctuary in nature—don't miss out on this unique opportunity to own a piece of Highland tranquility!
2 bedroom lodge for sale in 1 The Moorings Loch Ness Highland Lodges, Invermoriston, Inverness, IV63 7YE, IV63 — £180,000 • 2 bed • 2 bath • 743 ft²
2 bedroom lodge for sale in 20 Loch Ness Lodge Retreat, Fort Augustus, PH32 4DS, PH32 — £190,000 • 2 bed • 2 bath • 663 ft²
2 bedroom lodge for sale in Lodge 8 The Sanctuary, Loch Ness Highland Resort, Fort Augustus, PH32 4DY, PH32 — £150,000 • 2 bed • 2 bath • 593 ft²
2 bedroom lodge for sale in 2 The Moorings Loch Ness Highland Lodges, Invermoriston, IV63 7YE, IV63 — £160,000 • 2 bed • 2 bath • 709 ft²
2 bedroom lodge for sale in 19 Loch Ness Highland Lodges, Invermoriston, Inverness, IV63 7YE, IV63 — £70,000 • 2 bed • 1 bath • 385 ft²
2 bedroom park home for sale in Lodge 7 Loch Ness Lodge Retreat Market Hill, Fort Augustus, PH32 4DS, PH32 — £65,000 • 2 bed • 2 bath • 601 ft²






















































































