Roomy four-bedroom home with parking and scope to modernise for families.
Chain free four-bedroom mid-terrace with flexible living space
Driveway parking for two vehicles; off-street convenience
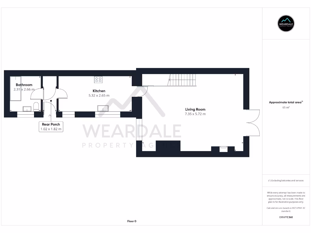
Large open-plan living/dining area with patio doors to front seating
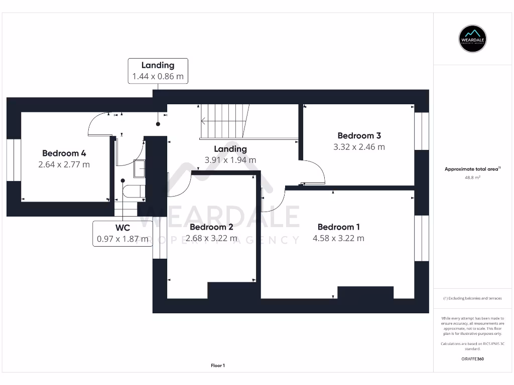
One bathroom plus first-floor WC; scope to convert a bedroom
Stone walls likely without cavity insulation; upgrade may be needed
Option to buy extra land and hardstanding via separate negotiation
EPC Rating C, mains gas central heating and uPVC double glazing
Small plot size with enclosed rear yard and outdoor storage
This chain-free mid-terraced house in Wolsingham offers generous living space across an average-sized footprint, with four bedrooms and versatile reception areas suited to family life. A large open-plan living/dining room with patio doors leads to a block-paved seating area and gravelled front garden, while an enclosed rear yard provides secure outdoor space. Off-street driveway parking for two cars is a clear practical benefit.
The property is presented with uPVC double glazing, gas central heating (boiler and radiators) and an EPC rating of C. There is scope to update: the current layout includes one bathroom and a first-floor WC, and one of the bedrooms could be converted into a first-floor bathroom if required. Additional land (a separate garden plot and hardstanding with roadside access) is available to purchase by separate negotiation.
Buyers should note the building dates from the early 1900s and the original stone walls likely lack cavity insulation; this may mean improvement works and running-cost considerations if enhanced insulation is desired. The home is freehold, in a low-crime, affluent rural area with good mobile signal and average broadband speeds. Schools nearby are rated Good, making this a practical family choice with clear potential to modernise and personalise.
 2 bedroom terraced house for sale in Durham Road, Wolsingham, DL13 — £180,000 • 2 bed • 1 bath • 972 ft²
 2 bedroom terraced house for sale in Durham Road, Wolsingham, DL13 — £180,000 • 2 bed • 1 bath • 972 ft² 3 bedroom house for sale in Lynndale, Wolsingham, DL13 — £190,000 • 3 bed • 1 bath • 1032 ft²
 3 bedroom house for sale in Lynndale, Wolsingham, DL13 — £190,000 • 3 bed • 1 bath • 1032 ft² 4 bedroom town house for sale in St. Annes Drive, Wolsingham, DL13 — £264,000 • 4 bed • 2 bath • 1247 ft²
 4 bedroom town house for sale in St. Annes Drive, Wolsingham, DL13 — £264,000 • 4 bed • 2 bath • 1247 ft² 4 bedroom terraced house for sale in St. Annes Drive, Wolsingham, Bishop Auckland, DL13 3DG, DL13 — £285,000 • 4 bed • 2 bath • 1109 ft²
 4 bedroom terraced house for sale in St. Annes Drive, Wolsingham, Bishop Auckland, DL13 3DG, DL13 — £285,000 • 4 bed • 2 bath • 1109 ft² 2 bedroom terraced house for sale in Lister Terrace, Wolsingham, DL13 — £137,500 • 2 bed • 1 bath • 802 ft²
 2 bedroom terraced house for sale in Lister Terrace, Wolsingham, DL13 — £137,500 • 2 bed • 1 bath • 802 ft² 3 bedroom semi-detached house for sale in Lydgate Lane, Wolsingham, DL13 — £255,000 • 3 bed • 1 bath • 931 ft²
 3 bedroom semi-detached house for sale in Lydgate Lane, Wolsingham, DL13 — £255,000 • 3 bed • 1 bath • 931 ft²


























































































































































