WN3 4RY - 2 bed manley street terrace in Wigan, WN3 4RY

View on Property Piper

2 bedroom terraced house for sale in Manley Street, Ince, Wigan, WN3

Summary - 15, Manley Street,Ince,WIGAN,WN3 4RY WN3 4RY

2 bed 1 bath Terraced

Chain-free two-bedroom home with garage, close to schools and transport.
Two double bedrooms with two reception rooms
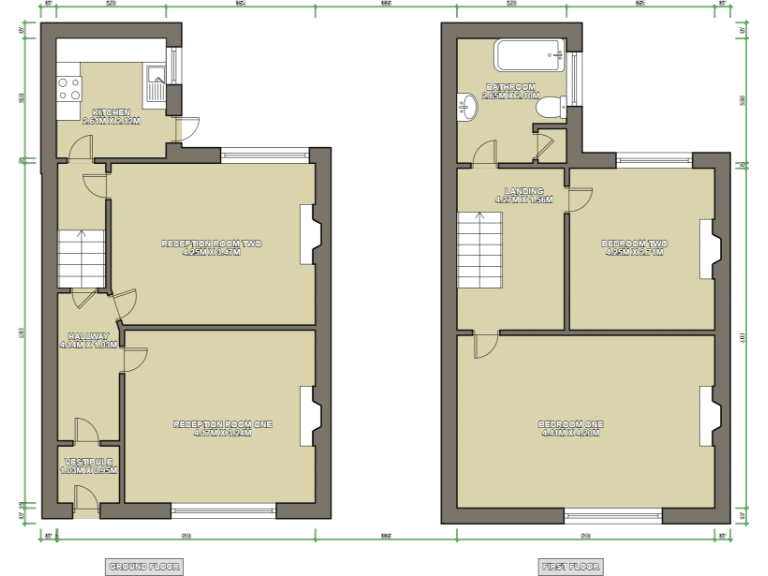
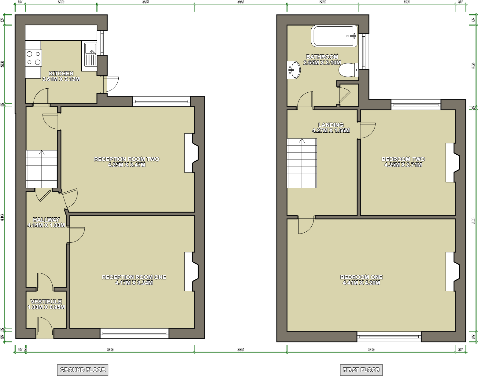
A two-bedroom mid-terraced home on Manley Street, offered chain-free and convenient for first-time buyers or investors. The property includes two reception rooms, a fitted kitchen, a bathroom and two double bedrooms across an average-sized 875 sqft layout. A single garage and rear yard provide useful storage and off-street parking.

The house benefits from excellent local connections, nearby schools (including Good and Outstanding rated primaries), shops and regular bus links. Mobile signal and broadband speeds are strong, and council tax is very low, which helps running costs.

There are some material points to note: the tenure is leasehold, the EPC is rated D and the entrance hallway shows signs of potential damp and general wear that will need attention. The surrounding area is described as very deprived, which may affect long-term capital growth and mortgage options for some buyers. Overall, this is a practical, affordable opportunity for buyers prepared to accept modest maintenance or investors seeking rental income with minimal upfront reconfiguration.

Property Details

Image Descriptions

Rooms

Textual Property Features

Target Audience

AI Tags

Detected Visual Features

Nearby Schools

Nearest Bars And Restaurants

,,,,}

Nearest General Shops

,,}

Nearest Grocery shops

,,}

Nearest Supermarkets

,,}

Nearest Religious buildings

,,}

Nearest Medical buildings

,,,}

Nearest Airports

,}

Nearest Leisure Facilities

,,,,}

Nearest Tourist attractions

,,}

Nearest Train stations

,,,,}

Nearest Bus stations and stops

,,,,}

Nearest Hotels

,,}

Tags

Local Market Stats

Similar Properties

Meta

High Res Images

Compatible Images

Low res Images

Thumbnails

Raw Images

High Res Floorplan Images

Compatible Floorplan Images

Low res Floorplan Images

FloorplanImages Thumbnail

Raw Floorplan Images