Chain-free three-bedroom semi with extension, garage and good local schools..
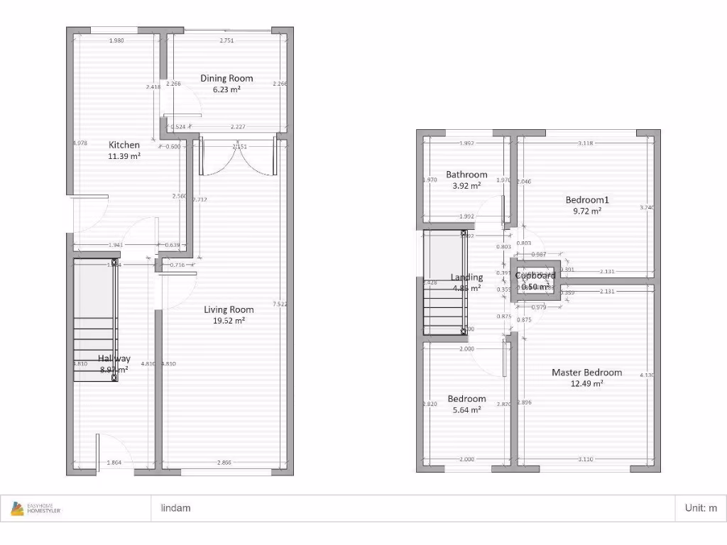
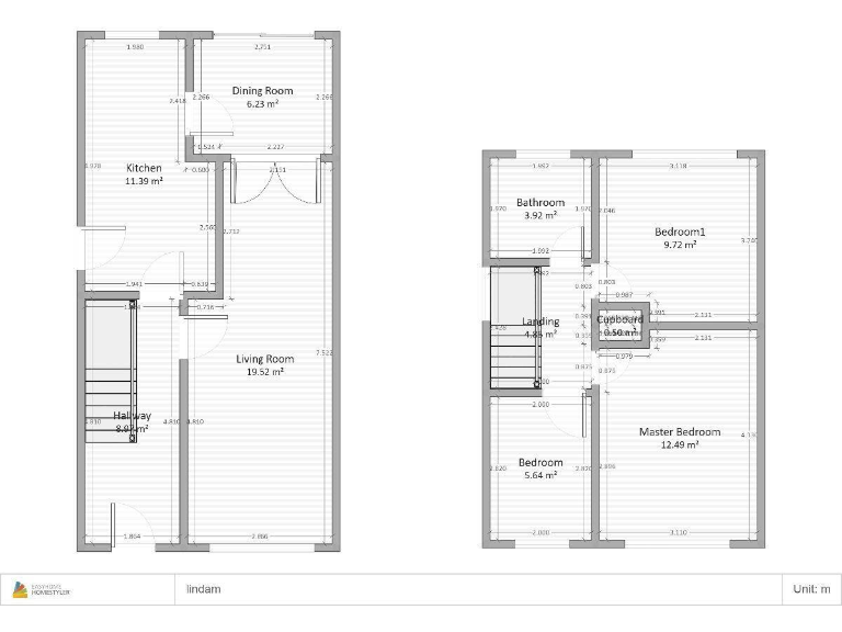
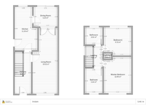
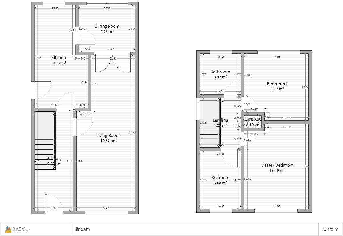
- Full-width rear extension increases ground-floor living space
- Three bedrooms, one family bathroom (single bathroom only)
- Garage plus driveway parking for several cars
- Small overall size circa 792 sq ft on a small plot
- Double glazing and gas central heating installed
- Built late 1960s–1970s; some modernisation likely required
- Chain free sale for a quicker transaction
- Close to several highly rated primary and secondary schools
This extended three-bedroom semi-detached house on Linden Close offers practical family living in a well-regarded Woolston location. The full-width rear extension creates a generous ground floor with a separate dining room, a bright front living room and a fitted kitchen opening to the garden. A garage and driveway parking for several cars add useful storage and off-road convenience.
The property sits close to highly rated primary and secondary schools and local amenities, with quick road links for commuters. Double glazing and gas central heating are already in place, and the home is offered chain free, which should speed up any move. Council Tax sits at an affordable level for the area.
Buyers should note the house is small in overall footprint (approximately 792 sq ft) on a small plot, with a single family bathroom upstairs. Constructed in the late 1960s/early 1970s, it reflects mid‑century finishes and will suit those happy to modernise kitchens, bathrooms, or decorative elements to suit contemporary tastes. The layout and extension provide good scope for updating rather than wholesale rebuilding.
For families seeking a practical, well‑placed starter or those looking to downsize while retaining three bedrooms, this home offers immediate use with clear potential to add value through cosmetic improvements. Viewing is recommended to appreciate the internal flow, rear garden privacy and parking/garage benefits.
3 bedroom semi-detached house for sale in Linden Close, Woolston, WA1 — £240,000 • 3 bed • 1 bath • 753 ft²
3 bedroom link detached house for sale in Walnut Close, Woolston, Warrington, WA1 — £300,000 • 3 bed • 1 bath • 1087 ft²
3 bedroom semi-detached house for sale in Manchester Road, Woolston, WA1 — £255,000 • 3 bed • 2 bath • 958 ft²
3 bedroom semi-detached house for sale in Berkshire Drive, Woolston, Warrington, Cheshire, WA1 — £230,000 • 3 bed • 1 bath • 1072 ft²
3 bedroom semi-detached house for sale in Greymist Avenue, Woolston, Warrington, WA1 — £235,000 • 3 bed • 1 bath • 869 ft²
4 bedroom detached house for sale in Linden Close, Woolston, Warrington, WA1 — £355,000 • 4 bed • 2 bath • 1416 ft²


























































