Spacious character home with large garden and panoramic coastal outlooks.
- Sea and coastline views from the rear garden
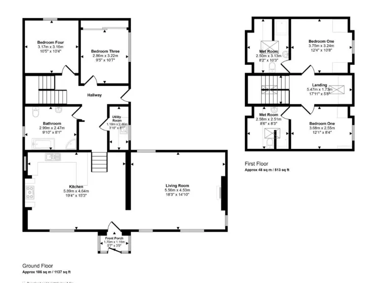
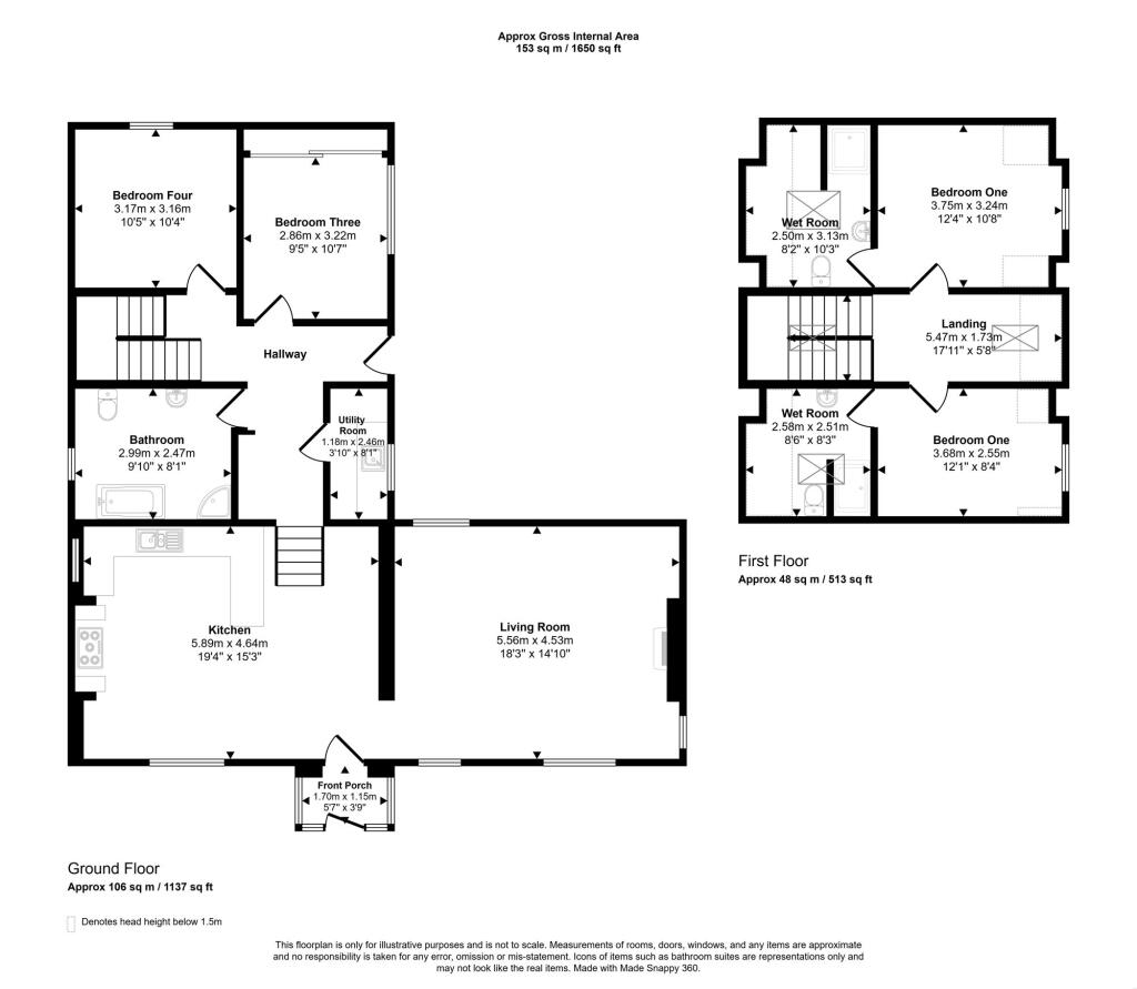
- Detached four-bedroom split-level cottage
- Very large plot, approx one third acre
- Driveway, garage and parking for a caravan
- Two en-suite shower rooms plus family bathroom
- Oil-fired boiler and radiators; independent supply
- Double glazing present; install date unknown
- Council Tax Band F — higher running costs likely
Set on a very large plot in Cresswell village, this detached four-bedroom cottage blends traditional stone character with modernised fixtures. The house offers coastal outlooks from the rear and generous flexible living spaces across a split-level layout, suited to family life or those seeking a peaceful seaside base.
Inside, original details such as exposed stone fireplaces and solid wood doors sit alongside contemporary finishes, vaulted ceilings and two ensuite shower rooms. Practical features include a utility room, sizeable driveway with garage and parking space large enough for a caravan. Broadband speeds are fast and the property is freehold with no flooding risk.
There are some practical points to note: the home is oil-heated via a boiler and radiators (independent supply), glazing is double but install date is unknown, and the house dates from the 1950–66 period so some systems may need attention over time. Council tax is Band F and running costs should be considered when budgeting.
This cottage will suit buyers seeking characterful coastal living with scope to personalise and maintain period fabric. The large garden and sea views are standout features that make this a rare village opportunity on the Northumberland coast.
4 bedroom detached bungalow for sale in Cresswell Road, Cresswell, Morpeth, Northumberland, NE61 5HX, NE61 — £595,000 • 4 bed • 2 bath • 1775 ft²
3 bedroom semi-detached house for sale in St. Bartholomews Close, Cresswell, NE61 — £475,000 • 3 bed • 2 bath • 1667 ft²
3 bedroom cottage for sale in Dunstanburgh Road, Craster, Alnwick, Northumberland, NE66 3TT, NE66 — £495,000 • 3 bed • 1 bath
3 bedroom terraced house for sale in Sturton Grange Cottages, Warkworth, Morpeth, NE65 — £399,000 • 3 bed • 1 bath • 871 ft²
5 bedroom semi-detached bungalow for sale in Cresswell Road, Ellington, Morpeth, NE61 — £415,000 • 5 bed • 2 bath • 3635 ft²
3 bedroom detached house for sale in Low Hauxley, Morpeth, Northumberland, NE65 — £650,000 • 3 bed • 2 bath • 1500 ft²










































































































































