AB11 5AX - 2 bedroom flat for sale in Virginia Street, Aberdeen, AB11

View on Property Piper

2 bedroom flat for sale in Virginia Street, Aberdeen, AB11

Summary - Virginia Street, Aberdeen, AB11 AB11 5AX

2 bed 1 bath Flat

Affordable freehold two-bed in the city — ready to occupy or let.
Freehold two-bedroom flat, ready to move in
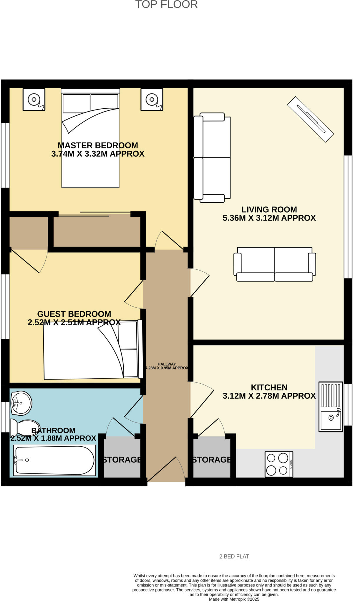
This compact two-bedroom flat on Virginia Street offers an affordable, city-centre ownership opportunity ideal for first-time buyers or investors seeking rental income. Set in a 1960s/70s apartment block, the property is presented in turn-key condition with an efficient modern kitchen and a usable shower-over-bath bathroom — ready to occupy from day one.

Practical features include freehold tenure, electric heating, fast broadband and excellent mobile signal, making the flat well-suited for students, commuters or professionals who need reliable connectivity. Permit on-street parking and a secure entry system add everyday convenience in a central location close to Union Square, transport links and local amenities.

Be mindful of the property’s compact scale and low ceilings typical of the building’s brutalist architecture; the 549 sq ft layout is best for couples, single occupants or investors targeting city-centre lets. The wider area is classified as very deprived, which can affect resale values and tenant demand but also underpins yield potential at this price point.

At £75,000 this freehold flat represents clear value for buyers prepared for a central, small-footprint home or a straightforward lettable asset. It’s a practical, well-connected base in Aberdeen with limited maintenance needs internally and scope to improve aesthetic finishes if desired.

Property Details

Image Descriptions

Floorplan Description

Rooms

Textual Property Features

Target Audience

AI Tags

Detected Visual Features

Nearest Bars And Restaurants

,,,,}

Nearest General Shops

,,}

Nearest Grocery shops

,,}

Nearest Supermarkets

,,}

Nearest Religious buildings

,,}

Nearest Medical buildings

,,,}

Nearest Airports

}

Nearest Leisure Facilities

,,,,}

Nearest Tourist attractions

,,}

Nearest Train stations

,,,,}

Nearest Bus stations and stops

,,,,}

Nearest Hotels

,,}

Tags

Local Market Stats

AirBnB Data

Similar Properties

Meta

High Res Images

Compatible Images

Low res Images

Thumbnails

Raw Images

High Res Floorplan Images

Compatible Floorplan Images

Low res Floorplan Images

FloorplanImages Thumbnail

Raw Floorplan Images