**Standout Features:**
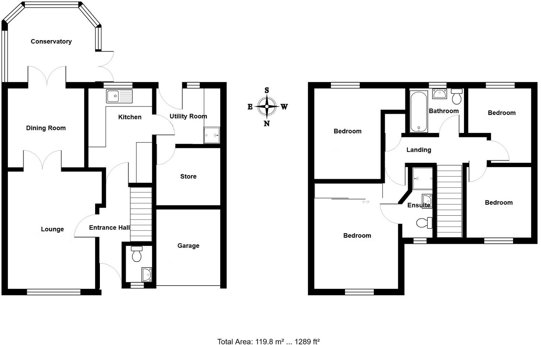
- Spacious entrance hall & ground floor cloakroom
- Re-fitted kitchen & separate utility room
- Quality conservatory leading to a south-facing garden
- Master bedroom with en-suite and built-in wardrobes
- Located in a desirable cul-de-sac corner position
- Garage and off-road parking
**Potential Concerns:**
- Average-sized property; may not accommodate larger families comfortably
Nestled in a prime corner plot at the end of a quiet cul-de-sac, this well-presented detached home in Great Blakenham combines comfort with convenience. Ideal for families, it features a spacious entrance hall leading to cozy living areas, including a sitting room that flows into a formal dining room and a bright conservatory that overlooks a well-maintained, south-facing garden—a perfect spot for relaxing or entertaining. The re-fitted kitchen and adjoining utility room offer practicality without compromising on style while the master bedroom boasts an en-suite and built-in wardrobes, complemented by three additional bedrooms and a family bathroom upstairs.
Set in a community-focused village with local amenities including a supermarket and popular dining options, this property balances suburban tranquility with accessibility to the A12 and A14. Offering great potential for family life in a secure and affluent neighborhood, this home is ready for immediate occupancy—making it a perfect opportunity for first-time buyers or families looking to settle in a comfortable environment. With such features and an appealing location, this listing won't last long—be sure to schedule your viewing today!
4 bedroom detached house for sale in Aspen Close, Gt Blakenham, Ipswich, Suffolk, IP6 — £399,000 • 4 bed • 2 bath • 1088 ft²
3 bedroom semi-detached house for sale in Plummers Dell, Great Blakenham, Ipswich, IP6 — £290,000 • 3 bed • 3 bath • 1100 ft²
4 bedroom house for sale in Popular Road, Great Blakenham, Ipswich, IP6 — £365,000 • 4 bed • 2 bath • 1185 ft²
2 bedroom semi-detached house for sale in Plummers Dell, Great Blakenham, Ipswich, Suffolk, IP6 — £245,000 • 2 bed • 1 bath • 651 ft²
4 bedroom detached house for sale in Hackneys Corner, Great Blakenham, IP6 — £400,000 • 4 bed • 2 bath • 1509 ft²
3 bedroom semi-detached house for sale in Plummers Dell, Great Blakenham, Ipswich, Suffolk, IP6 — £270,000 • 3 bed • 1 bath • 606 ft²










































































































