**Standout Features:**
- Newly renovated, spacious detached country property
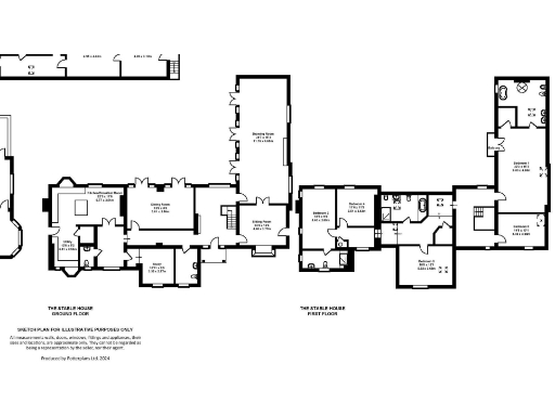
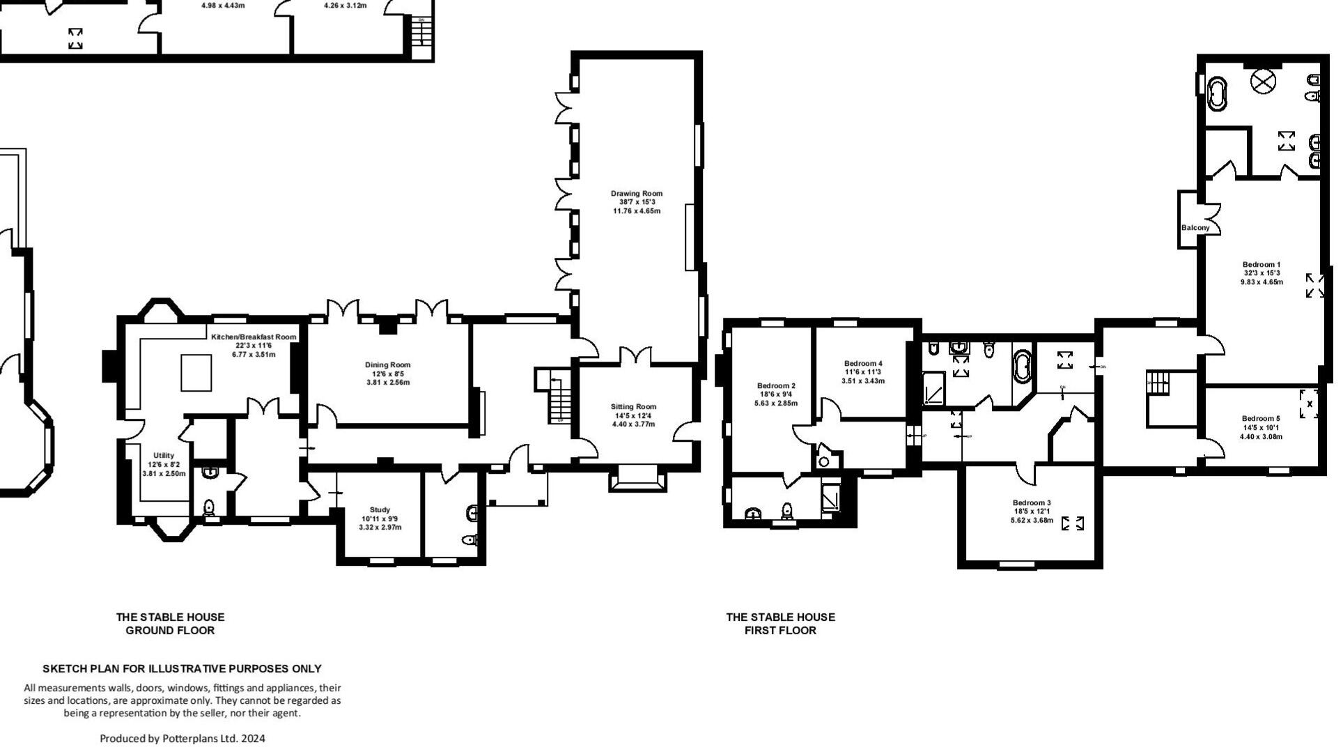
- 5 bedrooms and 3 bathrooms, suitable for families
- Expansive 0.5-acre plot with landscaped potential
- Off-street parking with gated entrance and private courtyard
- Potential rental income as it has historically functioned as a guest house
- Peaceful rural setting within established farming communities
**Concerns:**
- Requires installation of independent drainage within 6 months post-completion
- Slow broadband speeds
Discover The Old Stables, a beautifully renovated country home offering an impressive 5,217 square feet of living space nestled in a serene rural setting. This property features three large reception rooms, a well-appointed kitchen with modern appliances, and five spacious bedrooms—perfect for family living. Enjoy outdoor life on approximately half an acre, with ample parking, a private courtyard for entertaining, and lush grassed areas awaiting your landscaping vision.
With low crime rates and an affluent community, this property is ideal for families looking for tranquility and space. The local area boasts highly-rated schools and an inviting village atmosphere, making it an excellent spot for raising children. The property's potential for rental income adds even more allure, ensuring you can enjoy financial flexibility. Don’t miss out on this unique opportunity—properties like this are rare and in high demand!
 4 bedroom semi-detached house for sale in Hollyhurst Road, Wrenbury, CW5 — £675,000 • 4 bed • 3 bath • 2067 ft²
 4 bedroom semi-detached house for sale in Hollyhurst Road, Wrenbury, CW5 — £675,000 • 4 bed • 3 bath • 2067 ft² Equestrian facility for sale in Bulkeley, Malpas, Cheshire, SY14 — £1,500,000 • 5 bed • 6 bath • 4200 ft²
 Equestrian facility for sale in Bulkeley, Malpas, Cheshire, SY14 — £1,500,000 • 5 bed • 6 bath • 4200 ft² 5 bedroom semi-detached house for sale in The Stables, Somerford Hall, Somerford, Congleton, CW12 — £700,000 • 5 bed • 2 bath • 2487 ft²
 5 bedroom semi-detached house for sale in The Stables, Somerford Hall, Somerford, Congleton, CW12 — £700,000 • 5 bed • 2 bath • 2487 ft² 4 bedroom detached house for sale in New Farm, French Lane, Baddington, Near Nantwich, CW5 — £795,000 • 4 bed • 2 bath • 2400 ft²
 4 bedroom detached house for sale in New Farm, French Lane, Baddington, Near Nantwich, CW5 — £795,000 • 4 bed • 2 bath • 2400 ft² 4 bedroom detached house for sale in School Lane, Onneley, CW3 — £850,000 • 4 bed • 2 bath • 3011 ft²
 4 bedroom detached house for sale in School Lane, Onneley, CW3 — £850,000 • 4 bed • 2 bath • 3011 ft² 4 bedroom detached house for sale in Smithy Lane, Hulme Walfield, Congleton, Cheshire, CW12 — £1,250,000 • 4 bed • 2 bath • 3151 ft²
 4 bedroom detached house for sale in Smithy Lane, Hulme Walfield, Congleton, Cheshire, CW12 — £1,250,000 • 4 bed • 2 bath • 3151 ft²






































































