Characterful three-bedroom house near countryside and good transport links.
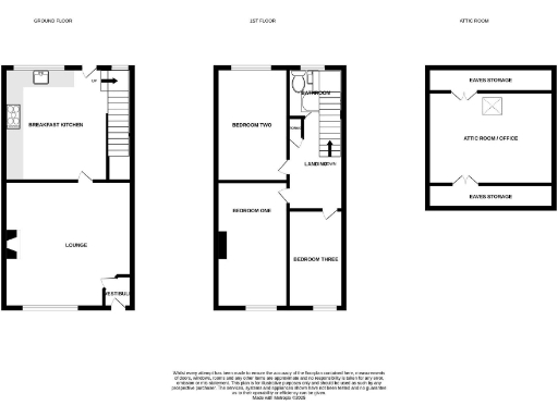
Substantial 3-bed stone mid-terrace with period character
Modern kitchen and bathroom suites installed
Fully boarded attic room accessed by ladders (not full conversion)
Enclosed rear garden; private outdoor space
Original sandstone walls, no known insulation (assumed)
Leasehold tenure — check terms and any service charges
EPC rating D — opportunity to improve energy efficiency
Single bathroom; rooms small to medium in size
A substantial three-bedroom mid-terrace in sought-after Milnrow, this stone-built home blends period character with updated kitchen and bathroom suites. The layout is spacious for its size and includes a fully boarded attic room accessed by ladders — useful additional space but not a full converted floor. The enclosed rear garden provides private outdoor space, and the property sits close to excellent transport links, local amenities and open countryside.
This house will suit first-time buyers or young families seeking a home with character and scope to personalise. Key positives include double glazing, mains gas central heating with boiler and radiators, and an average overall size of about 850 sq ft. Local schools rated Good are nearby and the area benefits from very low crime, fast broadband and excellent mobile signal.
Practical points to note: the property is leasehold and the walls are original sandstone/limestone with no known insulation (assumed), so there is renovation and energy-efficiency work potential. The attic is boarded but reached by ladders, ceilings are standard height and some rooms are small-to-medium — further modernisation may be required to suit growing families. EPC rating D reflects scope for improvement.
Viewings are recommended to appreciate the layout, room proportions and garden. For buyers comfortable with a period mid-terrace and modest updating, this offers a well-located, characterful home with clear scope to add value and improve energy performance.
3 bedroom terraced house for sale in Rochdale Road, Milnrow, Rochdale, OL16 — £225,000 • 3 bed • 1 bath • 1530 ft²
2 bedroom terraced house for sale in Newhey Road, Milnrow, OL16 3PS, OL16 — £165,000 • 2 bed • 1 bath • 1214 ft²
3 bedroom terraced house for sale in Rochdale Road, Milnrow, Rochdale, Greater Manchester, OL16 — £185,000 • 3 bed • 1 bath • 722 ft²
2 bedroom terraced house for sale in Royds Street, Milnrow, Rochdale, OL16 3PR , OL16 — £169,950 • 2 bed • 1 bath • 1001 ft²
2 bedroom end of terrace house for sale in Nall Street, Milnrow, Rochdale, Greater Manchester, OL16 — £125,000 • 2 bed • 1 bath • 755 ft²
3 bedroom terraced house for sale in Parsonage Walk, Milnrow OL16 3UG , OL16 — £209,950 • 3 bed • 1 bath • 819 ft²


















































