**Standout Features:**
- Two substantial building plots available individually (£245,000 for Plot 1 and £255,000 for Plot 2) or as a pair.
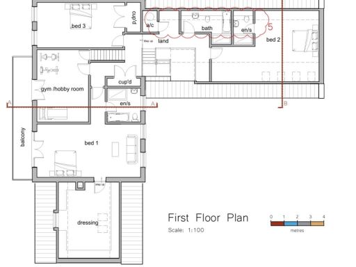
- Full planning consent for modern three-storey, five-bedroom detached homes with double garages.
- Immediate construction readiness with approved building regulations.
- Combined total of 1.5 acres, offering ample space and privacy in a serene, semi-rural setting.
- Ideal location with beautiful countryside views and close access to local amenities and transport links.
**Summary:**
Discover an exceptional opportunity to create your dream home on one or both of two prime building plots in a peaceful semi-rural location. Each plot boasts full planning permission for striking three-storey, five-bedroom houses complete with double garages, making them a perfect choice for families seeking space and comfort. With 1.5 acres of land at your disposal, you can design a residence that embodies your unique style amid stunning countryside vistas.
Both plots are chain-free and ready for immediate construction, making this a coveted turn-key investment for those keen to build. The area combines the tranquility of rural living with convenient access to local amenities, offering the best of both worlds. Given the rarity of such an opportunity, act quickly to secure your ideal home environment and enjoy a lifestyle of privacy, comfort, and natural beauty. Envision your future here—where every day feels like a retreat.
 Plot for sale in Mouth Lane, Guyhirn, PE13 — £245,000 • 1 bed • 1 bath
 Plot for sale in Mouth Lane, Guyhirn, PE13 — £245,000 • 1 bed • 1 bath Land for sale in Mouth Lane, Guyhirn, PE13 — £485,000 • 1 bed • 1 bath • 17728 ft²
 Land for sale in Mouth Lane, Guyhirn, PE13 — £485,000 • 1 bed • 1 bath • 17728 ft² Land for sale in Lancewood Gardens, Leverington, PE13 — £225,000 • 1 bed • 1 bath • 17728 ft²
 Land for sale in Lancewood Gardens, Leverington, PE13 — £225,000 • 1 bed • 1 bath • 17728 ft² Land for sale in Burrowmoor Road, March, PE15 — £135,000 • 1 bed • 1 bath • 10893 ft²
 Land for sale in Burrowmoor Road, March, PE15 — £135,000 • 1 bed • 1 bath • 10893 ft² Plot for sale in High Road, Tholomas Drove, Wisbech, PE13 — £175,000 • 1 bed • 1 bath
 Plot for sale in High Road, Tholomas Drove, Wisbech, PE13 — £175,000 • 1 bed • 1 bath Plot for sale in Woodhouse Farm Close, Friday Bridge, Wisbech, PE14 — £110,000 • 1 bed • 1 bath
 Plot for sale in Woodhouse Farm Close, Friday Bridge, Wisbech, PE14 — £110,000 • 1 bed • 1 bath


























