**Standout Features:**
- Spacious two-bedroom ground floor flat with high ceilings and period character.
- Private sunny garden plus access to well-maintained communal gardens.
- Modern kitchen with integrated appliances and two bathrooms.
- Located in an affluent neighborhood with excellent public transport links.
- Off-street communal parking available.
**Property Summary:**
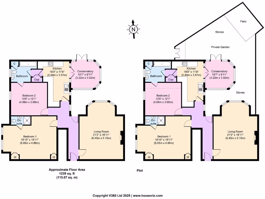
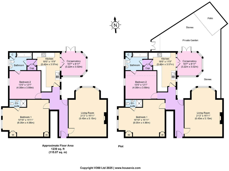
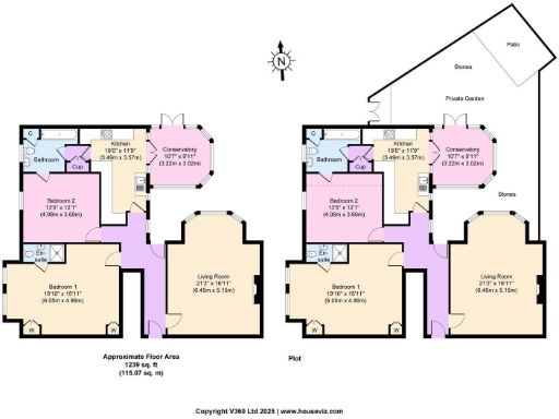
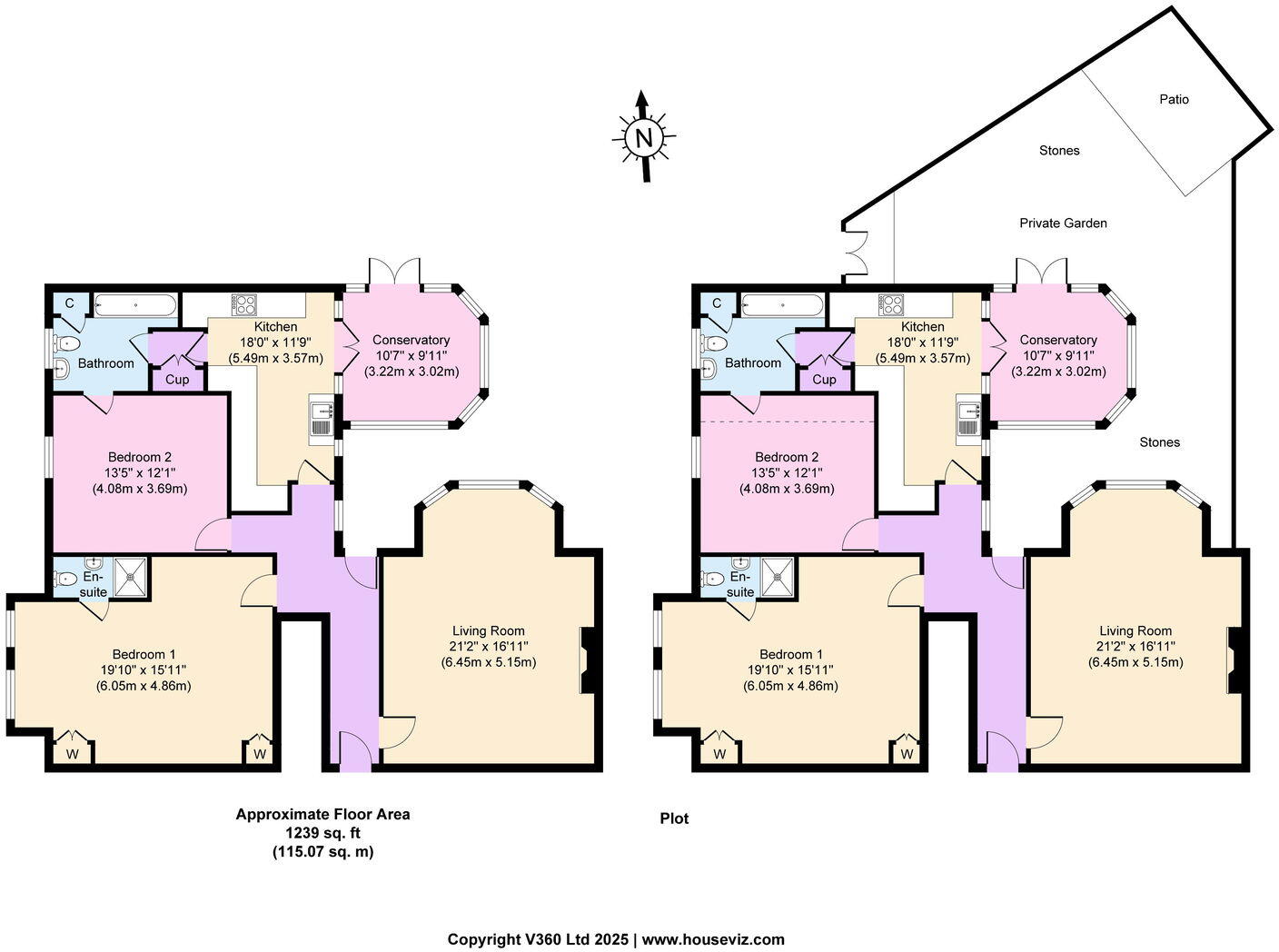
Experience the charm of this unique ground floor flat nestled within a stunning Victorian building filled with original features. Boasting a generous 1,239 square feet, this residence features two bright double bedrooms, a modern kitchen equipped with quality appliances, and a delightful conservatory that opens into your own private garden—perfect for enjoying sunny afternoons. The expansive living room with its coved ceiling and beautiful fireplace sets the stage for cozy evenings.
Located on a peaceful residential street, you are mere moments away from the vibrant Oxton Village, complete with trendy eateries and local boutiques. With low crime rates and fast broadband, this property promises both comfort and convenience. Although the building is historic, it has been maintained to a good standard, but potential buyers should be aware that certain renovations may be necessary depending on personal preferences.
This property is ideal for families seeking space, first-time buyers envisioning a modern yet character-filled home, or investors looking for rental potential in a desirable area. With affordable council tax and a Council Tax Band C classification, this home is not just a purchase; it's a lifestyle choice. Don't miss the opportunity to make it yours—schedule a viewing today!











































































































































































































