Prime coastal conversion for experienced operators or investors seeking seaside returns.
Freehold Victorian corner building on busy Banks Road, West Kirby
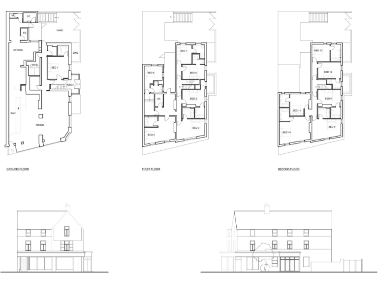
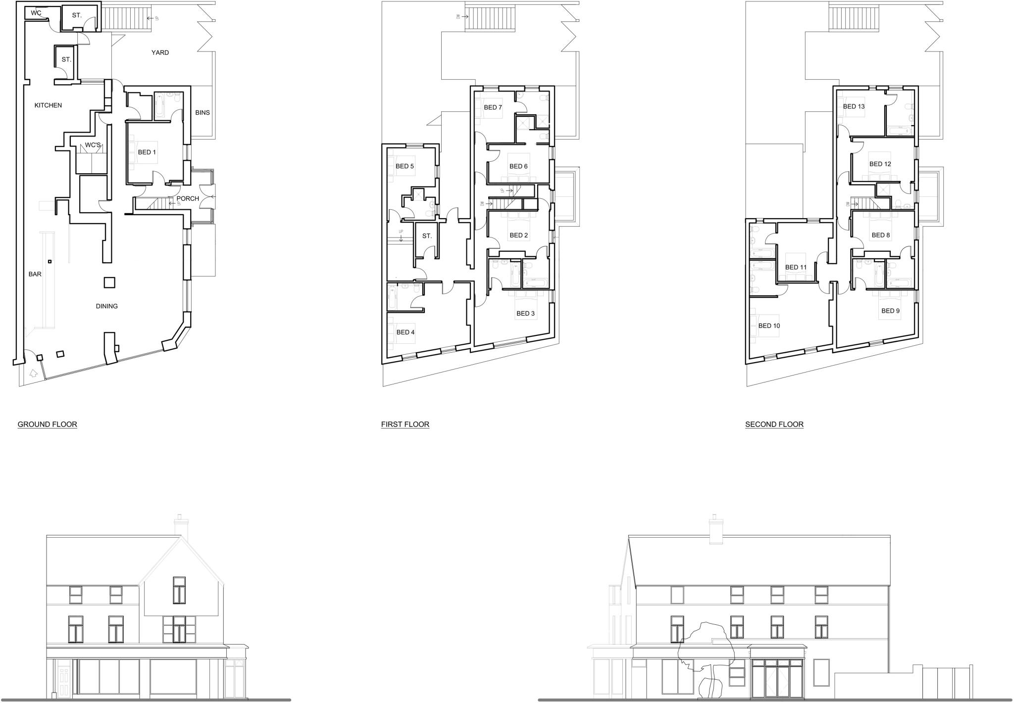
Full planning permission for 13 en‑suite bedrooms, bar and dining kitchen
Sold with vacant possession; currently restaurant plus self-contained flats
Guide price £880,000 — sale via online auction (buyer’s fees apply)
Administration and buyer’s premium fees payable on exchange (see legal pack)
Requires roof repair and full conversion/refurbishment to implement plans
Strong coastal location with year‑round tourist and local footfall
Average local room rate circa £130 per night (subject to season)
Set in the heart of West Kirby on Banks Road, this freehold Victorian corner building offers immediate development upside and sea-proximate appeal. Currently a restaurant with separate self-contained apartments, the property is being sold with vacant possession and full planning permission to convert into a 13 en‑suite bedroom hotel with bar and dining kitchen (APP/24/00576).
The site benefits from strong local and tourist footfall, proximity to beaches, Marine Lake and high street amenities, and an affluent, low-crime catchment with excellent mobile and fast broadband. Approved plans and vacant possession reduce planning risk and accelerate a hotel or leisure-led conversion for operators, developers or investors seeking a coastal trading asset.
Buyers should note this is a sold-at-auction lot (guide price £880,000) with buyer’s fees and an administration fee payable on exchange — full legal pack should be read before bidding. The building shows period character but requires roof repair work as referenced, and conversion/refurbishment costs will be needed to deliver the approved hotel specification.
This opportunity suits experienced hotel operators, conversion developers or investors targeting short-stay coastal accommodation or a mixed leisure/residential asset. With planning in place and average local room rates around £130 per night, the site offers a clear route to trading income once works and fit-out are complete.
13 bedroom house for sale in 119-121 Banks Road, West Kirby, Wirral, Merseyside CH48 0RB, CH48 — £880,000 • 13 bed • 13 bath
Land for sale in Land At Ashton Court, Banks Road, West Kirby, CH48 — £1,300,000 • 1 bed • 1 bath • 3229 ft²
Property for sale in HARBOUR MASTERS CAFé, DUKE STREET, BIRKENHEAD, CH41 — £180,000 • 1 bed • 1 bath
6 bedroom detached house for sale in Westbourne Grove, West Kirby, Wirral, Merseyside, CH48 — £550,000 • 6 bed • 2 bath • 2129 ft²
Office for sale in Cleveland Street, Birkenhead, CH41 — £400,000 • 1 bed • 1 bath
4 bedroom terraced house for sale in Deva Road, West Kirby, Wirral, CH48 — £347,000 • 4 bed • 1 bath • 1043 ft²






































































