Energy-efficient new build with garage and parking, ideal for modern family life.
Four double bedrooms with en suite and built-in wardrobe to principal bedroom
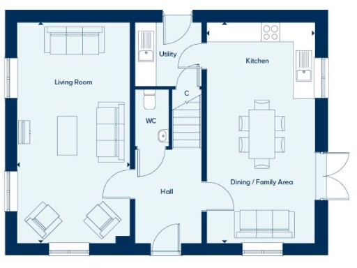
This newly built four-bedroom detached house in Stoke Gifford is designed for modern family life. The ground floor offers a large open-plan kitchen/dining/family area ideal for everyday living and entertaining, plus a separate living room and utility room. Upstairs there are four double bedrooms, with the principal bedroom featuring an en suite and built-in wardrobe for added convenience.
Practical features include an integral single garage, two parking spaces, EV charging point and PV panels that lower running costs. The home is covered by a 10-year NHBC warranty and a 2-year developer warranty, giving buyers added peace of mind on a new build.
Buyers should note the property’s modest overall footprint (approximately 954 sqft) and that there is currently a single main bathroom upstairs, which may be limiting for a four-bedroom family household. There is a medium flood risk for the area and a modest annual service charge of £247 for managed common areas. The freehold is not yet registered at the Land Registry and the council tax band is to be determined.
In short, this is a contemporary, energy-efficient family home with useful warranties and low running-cost features, best suited to purchasers seeking a compact, well-specified new-build in an affluent Stoke Gifford neighbourhood. Those needing extra living space or additional bathrooms should assess room layouts and dimensions carefully before committing.
4 bedroom detached house for sale in Stoke Gifford,
Bristol,
BS34 8AW, BS34 — £575,000 • 4 bed • 1 bath • 816 ft²
4 bedroom semi-detached house for sale in Stoke Gifford,
Bristol,
BS34 8AW, BS34 — £485,000 • 4 bed • 1 bath • 821 ft²
3 bedroom semi-detached house for sale in Stoke Gifford,
Bristol,
BS34 8AW, BS34 — £425,000 • 3 bed • 1 bath • 553 ft²
3 bedroom semi-detached house for sale in Stoke Gifford,
Bristol,
BS34 8AW, BS34 — £425,000 • 3 bed • 1 bath • 553 ft²
2 bedroom apartment for sale in Stoke Gifford,
Bristol,
BS34 8AW, BS34 — £295,000 • 2 bed • 1 bath • 577 ft²
4 bedroom semi-detached house for sale in Stoke Gifford,
Bristol,
BS34 8AW, BS34 — £465,000 • 4 bed • 1 bath • 821 ft²






























































































