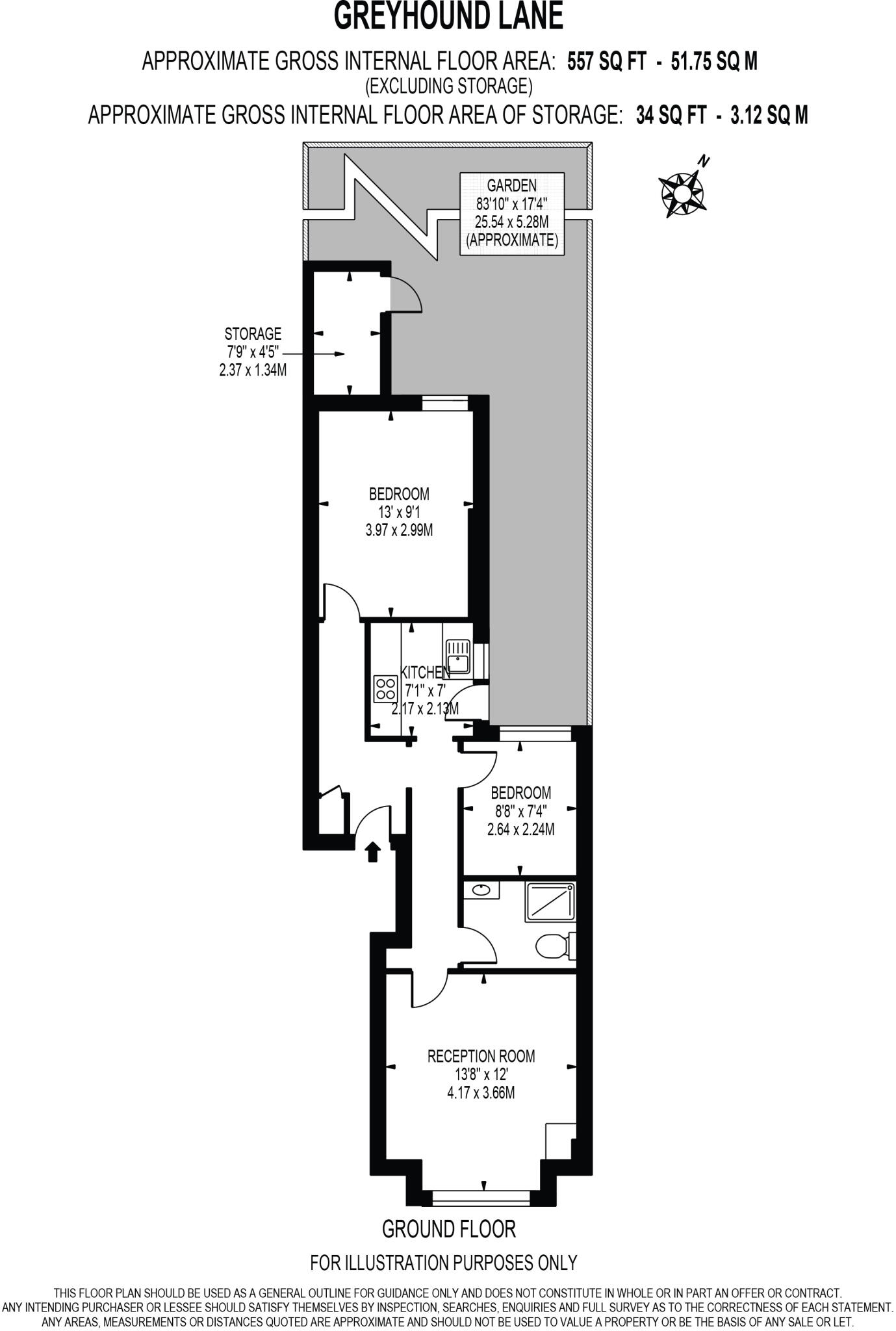
Bright two-bedroom ground-floor home with long private outdoor space and easy transport links.
Direct access to a long private garden, rare for ground-floor flats
Newly renovated throughout; offered in move-in condition
Bright living/dining room with period bay window and high ceilings
Separate contemporary kitchen, two well-proportioned bedrooms
Small overall size — around 557 sq ft, limited storage potential
EPC rating D; likely higher running costs than newer stock
Heating via room heaters and mains gas; insulation likely limited
Tenure and council tax band unknown — verify before offer
A ground-floor two-bedroom flat that pairs Victorian character with a recently refreshed interior. The living room is bright and well-presented, and the separate kitchen gives practical meal-prep space. Direct access to a long private garden is a standout — ideal for relaxing, outdoor dining or light gardening.
The apartment has been newly renovated and is offered in excellent condition, making it a realistic move-in option for a first-time buyer wanting minimal immediate works. The location is commuter-friendly with several nearby stations and frequent bus links into central London, plus a wide range of local shops, cafés and highly rated schools within walking distance.
Be aware of some material facts: the overall footprint is small (approximately 557 sq ft) and the property uses room heaters with mains gas; the building’s solid brick walls are likely uninsulated and the EPC is D. Tenure and council tax band are not specified and should be confirmed before proceeding. These points affect running costs and potential future improvement plans.
This property will suit buyers who prioritise outdoor space and a turnkey finish in a well-connected, lively part of Streatham. It offers good potential as a long-term home or a buy-to-let, provided you check tenure and heating/insulation details.
2 bedroom apartment for sale in Leigham Court Road, London, SW16 — £475,000 • 2 bed • 1 bath • 754 ft²
2 bedroom flat for sale in Greyhound Lane, Streatham, SW16 — £475,000 • 2 bed • 1 bath • 550 ft²
2 bedroom flat for sale in Buckleigh Road, London, SW16 — £425,000 • 2 bed • 1 bath • 492 ft²
2 bedroom apartment for sale in Westcote Road, Furzedown, SW16 — £450,000 • 2 bed • 1 bath • 521 ft²
2 bedroom apartment for sale in Westwell Road, London, SW16 — £500,000 • 2 bed • 1 bath • 784 ft²
2 bedroom apartment for sale in Gleneagle Road, Streatham, SW16 — £425,000 • 2 bed • 1 bath • 543 ft²






































