**Standout Features:**
- Rare building plot on Wilden Road, Renhold, Bedford
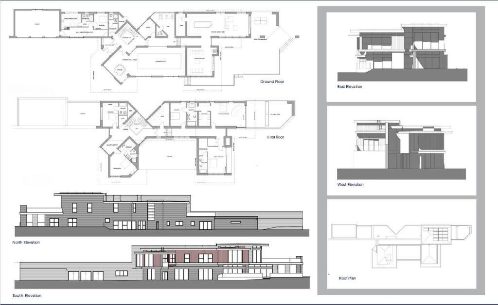
- Approved planning permission for a 'grand designs' style residence
- Footings already laid, ready for immediate construction
- Expansive plot size of approximately 1.13 acres
- Desirable rural location, just 4 miles from Bedford Town Centre
- Low crime rate and affluent local community
- Close proximity to several "Good" rated primary schools
- Accessed via a private gated driveway
**Summary:**
Discover an exceptional opportunity to create your dream home on this 1.13-acre plot in the sought-after village of Renhold, Bedford. With planning permission already in place for an impressive, modern residence and footings laid, this parcel of land is primed for development. The envisaged six-bedroom home will offer contemporary architectural flair and generous outdoor space, perfect for those who appreciate luxury and nature.
Nestled just 4 miles from Bedford Town Centre, this tranquil setting boasts easy access to amenities, making it an ideal choice for families seeking a secure and serene community. Local schools, rated "Good" by Ofsted, are within walking distance, ensuring educational options for children. Act fast—this unique building plot with such potential won’t last long!
Land for sale in Land to the East of Wood End, Marston Moretaine, Bedfordshire, MK43 — £200,000 • 1 bed • 1 bath
Plot for sale in Kimbolton Road, Bedford, MK41 — £850,000 • 1 bed • 1 bath • 1668 ft²
Land for sale in Brooklands Avenue (Plot 86) , Wixams, Bedford, MK42 — £195,000 • 5 bed • 3 bath • 670 ft²
Plot for sale in Toddington Road, Harlington, Bedfordshire, LU5 — £400,000 • 1 bed • 1 bath • 2300 ft²
Land for sale in Whitley Road, MK42 — £150,000 • 3 bed • 1 bath
Land for sale in The Paddocks, Cotton End, MK45 3AH, MK45 — £325,000 • 1 bed • 1 bath • 2500 ft²






















