Ready-to-move two-bedroom bungalow with garage, low-maintenance garden and woodland access ideal for downsizers.
Chain-free two-bedroom bungalow, vacant and ready to move into
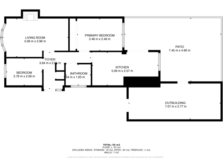
This vacant, chain-free two-bedroom semi-detached bungalow offers an easy, single-level layout ideal for downsizers or those seeking low-maintenance living. The lounge, extended kitchen and two bedrooms (one with fitted wardrobes) provide comfortable day-to-day space within a modest footprint of about 581 sq ft. The property is described as well presented and ready to move into.
Outside, a gravel driveway, single garage and enclosed rear garden keep upkeep simple, while direct access to neighbouring woodland provides a pleasant outdoor amenity. Practical benefits include mains gas central heating with a modern boiler, double glazing installed post-2002 and fast broadband — useful for remote working or streaming.
Location is convenient for everyday needs: local shops and bus routes are on the doorstep and motorway links are easily reached. Nearby schools include Maltby Manor Academy and Maltby Academy (both rated Good by Ofsted), making the area suitable for visitors with school-age family members.
Important considerations: the property is small and best suited to buyers expecting a compact home rather than spacious accommodation. The wider neighbourhood is classified as very deprived, which may affect longer-term resale prospects and local services. There is one bathroom only. Council tax is very low, and there is no flood risk noted.
 3 bedroom detached bungalow for sale in Victoria Way, Maltby, Rotherham, S66 8RG, S66 — £290,000 • 3 bed • 2 bath • 941 ft²
 3 bedroom detached bungalow for sale in Victoria Way, Maltby, Rotherham, S66 8RG, S66 — £290,000 • 3 bed • 2 bath • 941 ft² 2 bedroom detached bungalow for sale in Dale Hill Road, Maltby, Rotherham, S66 8AG, S66 — £230,000 • 2 bed • 1 bath • 707 ft²
 2 bedroom detached bungalow for sale in Dale Hill Road, Maltby, Rotherham, S66 8AG, S66 — £230,000 • 2 bed • 1 bath • 707 ft² 2 bedroom detached bungalow for sale in Sylvan Close, Maltby, Rotherham, S66 — £180,000 • 2 bed • 1 bath • 668 ft²
 2 bedroom detached bungalow for sale in Sylvan Close, Maltby, Rotherham, S66 — £180,000 • 2 bed • 1 bath • 668 ft² 2 bedroom detached bungalow for sale in Hazel Road, Maltby, Rotherham, S66 — £230,000 • 2 bed • 1 bath • 786 ft²
 2 bedroom detached bungalow for sale in Hazel Road, Maltby, Rotherham, S66 — £230,000 • 2 bed • 1 bath • 786 ft² 1 bedroom bungalow for sale in Thicket Drive, Maltby, Rotherham, S66 — £120,000 • 1 bed • 1 bath
 1 bedroom bungalow for sale in Thicket Drive, Maltby, Rotherham, S66 — £120,000 • 1 bed • 1 bath 2 bedroom semi-detached house for sale in Dunns Dale, Maltby, ROTHERHAM, S66 — £135,000 • 2 bed • 1 bath • 526 ft²
 2 bedroom semi-detached house for sale in Dunns Dale, Maltby, ROTHERHAM, S66 — £135,000 • 2 bed • 1 bath • 526 ft²


























































































