**Standout Features:**
- Freehold ownership with affordable Council Tax Band A.
- Newly renovated throughout with an appealing traditional design.
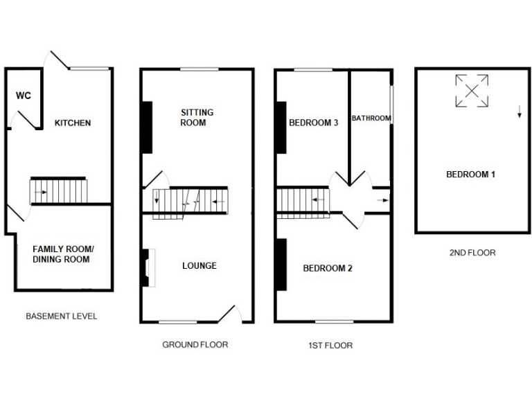
- Four stories featuring three spacious bedrooms and two modern bathrooms.
- Well-maintained, long rear garden with a shed for extra storage.
- Located within walking distance of local amenities, schools, and public transport.
This immaculately presented four-storey end terraced house beautifully combines traditional style with modern convenience. Recently refurbished, the property showcases a stunning refitted kitchen and bathroom, high ceilings, and elegant wooden and ceramic flooring. It comprises a lounge, sitting room, breakfast kitchen, family/dining room, and a shower room/WC, providing ample space for families and entertaining.
The long, well-maintained rear garden offers a serene outdoor retreat, perfect for relaxation or family gatherings. Nestled in a convenient location with easy access to local schools, parks, and major transport links, this home is ideal for both families and first-time buyers seeking comfort and community.
However, potential buyers should note the small plot size and the absence of insulation in the solid brick construction, potentially impacting energy efficiency. Viewing is recommended to fully appreciate the thoughtful renovations and inviting atmosphere. Don't miss this opportunity for a home that promises both charm and functionality in a thriving area. Act quickly to secure this gem!
3 bedroom terraced house for sale in Chessher Street, Hinckley, Leicestershire, LE10 — £160,000 • 3 bed • 1 bath • 905 ft²
3 bedroom terraced house for sale in Trinity Lane, Hinckley, Leicestershire, LE10 — £170,000 • 3 bed • 1 bath • 880 ft²
3 bedroom terraced house for sale in Orchard Street, Hinckley, LE10 — £190,000 • 3 bed • 1 bath • 639 ft²
3 bedroom terraced house for sale in Council Road, Hinckley, LE10 — £178,500 • 3 bed • 2 bath • 947 ft²
3 bedroom terraced house for sale in Highfields Road, Hinckley, LE10 — £230,000 • 3 bed • 1 bath • 1093 ft²
2 bedroom terraced house for sale in Clarendon Road, Hinckley, LE10 — £200,000 • 2 bed • 1 bath • 930 ft²


























































