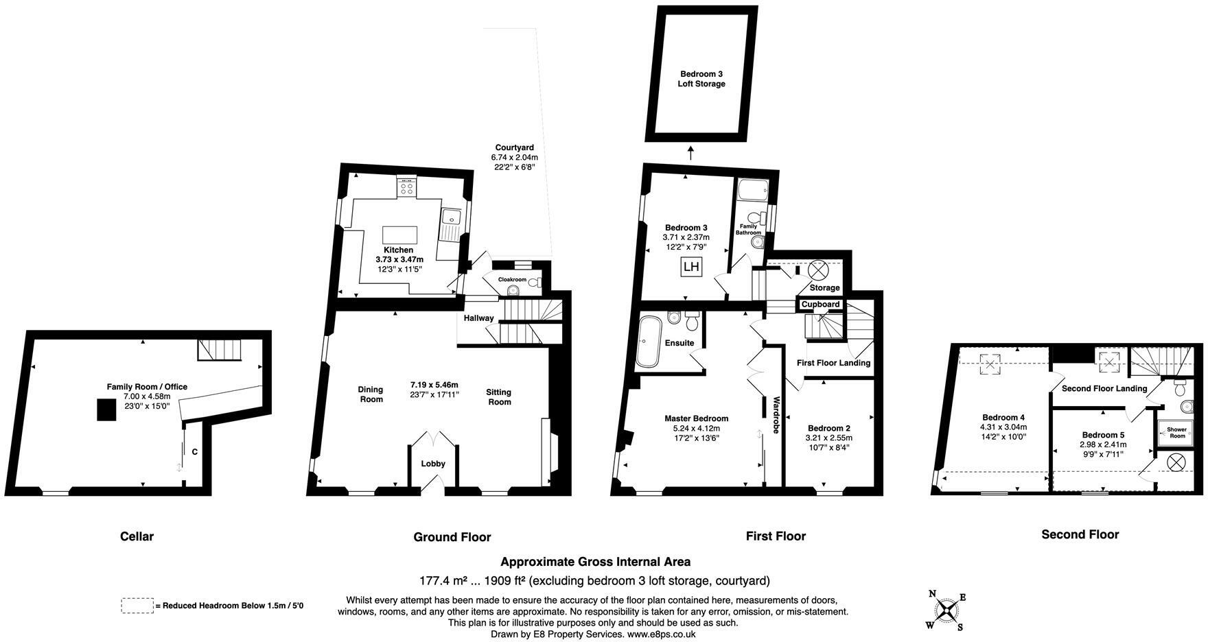
**Standout Features:**
- Grade II Listed end terraced period townhouse
- Five spacious bedrooms and three bathrooms
- Charming period features, including an inglenook fireplace and exposed oak beams
- Versatile cellar currently used as a family room/office
- Private courtyard garden ideal for outdoor entertaining
- Prime location in the heart of Burford, close to amenities and excellent schools
**Summary:**
Discover the perfect blend of historic charm and modern living in this beautifully presented Grade II Listed townhouse on Witney Street, Burford. This captivating five-bedroom, three-bathroom home boasts an array of period features, including an inviting inglenook fireplace and stunning oak beams. With three generous reception rooms, including a versatile cellar space currently utilized as an office, there's ample room for families and guests alike.
Step outside to your own private courtyard garden, ideal for alfresco dining and entertaining, while nearby local amenities and highly-rated schools enhance this property's appeal for families. Enjoy easy access to the picturesque Cotswolds, as well as the convenience of nearby commercial centers and excellent transport links to London Paddington. With a property of this caliber rarely available, don’t miss your chance to secure a piece of Burford's enchanting history.
3 bedroom town house for sale in The Hill, Burford, OX18 — £1,950,000 • 3 bed • 3 bath • 2175 ft²
2 bedroom town house for sale in High Street, Burford, OX18 — £475,000 • 2 bed • 2 bath • 1332 ft²
5 bedroom terraced house for sale in The Hill, Burford, Oxfordshire, OX18 — £2,750,000 • 5 bed • 6 bath • 2392 ft²
2 bedroom terraced house for sale in Witney Street, Burford, OX18 — £370,000 • 2 bed • 2 bath • 922 ft²
3 bedroom terraced house for sale in High Street, Burford, Oxfordshire, OX18 — £625,000 • 3 bed • 2 bath • 1175 ft²
2 bedroom end of terrace house for sale in Lower High Street Burford, Oxfordshire, OX18 4RN, OX18 — £900,000 • 2 bed • 1 bath • 2672 ft²


























































































































