Rare large family home with garden and extension approval near Ealing Broadway.
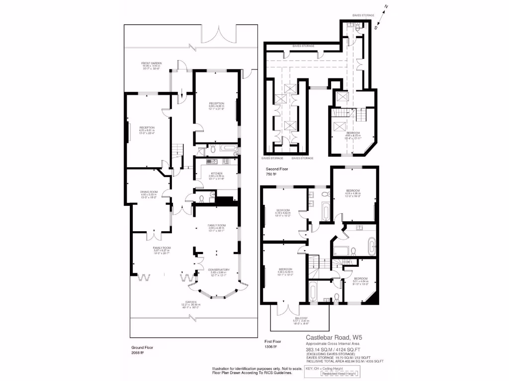
- Five double bedrooms and four bathrooms across generous floorplates
- Approved planning permission for rear extension; top-floor conversion potential
- Large private garden with covered terrace, excellent for outdoor entertaining
- 4,124 sq ft total; plenty of scope for reconfiguration and modernisation
- Wealth of Victorian period features: high ceilings, coving, fireplaces
- Requires full renovation; glazing age and wall insulation unknown
- Council tax is very expensive; factor higher running costs
- Local crime levels are high; consider security measures
Set on a broad plot in W5, this substantial detached Victorian family home offers wide rooms, high ceilings and abundant period detail. The house currently provides five double bedrooms, four bathrooms and multiple reception rooms arranged over spacious floors, plus off-street parking and a large rear garden with a covered terrace ideal for family entertaining.
The property comes with approved planning permission for a rear extension and scope to convert the top floor into additional living space (subject to the necessary approvals). With 4,124 sq ft of overall space, the layout easily accommodates multigenerational living, home working or a growing family seeking long-term potential.
Practical drawbacks are material and should be considered: the house needs renovation throughout, the solid brick walls are assumed uninsulated, and the glazing install date is unknown. Council tax is very expensive and the immediate area records high crime levels — both important factors for budgeting and security planning.
For families, the location is a major draw: moments from Ealing Broadway’s transport links and shops, and close to a range of reputable state and independent schools. If you are seeking a characterful, roomy home with extension potential and are prepared to invest in refurbishment and security measures, this property offers rare scope in a desirable west-London setting.
5 bedroom detached house for sale in Celestine, Castlebar Road, Ealing, W5 — £3,250,000 • 5 bed • 5 bath • 4464 ft²
6 bedroom house for sale in Castlebar Road, Ealing Broadway, London, W5 — £3,250,000 • 6 bed • 5 bath • 4464 ft²
8 bedroom detached house for sale in Creffield Road, Ealing, W5 — £2,995,000 • 8 bed • 5 bath • 4595 ft²
6 bedroom detached house for sale in Woodville Road, Ealing, W5 — £2,400,000 • 6 bed • 4 bath • 3000 ft²
5 bedroom detached house for sale in Castlebar Road, London, W5 — £3,250,000 • 5 bed • 6 bath • 4464 ft²
5 bedroom detached house for sale in Castlebar Road, London, W5 — £2,950,000 • 5 bed • 5 bath • 4326 ft²


































































