**Standout Features:**
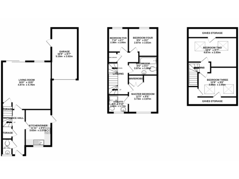
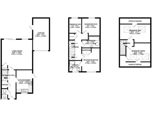
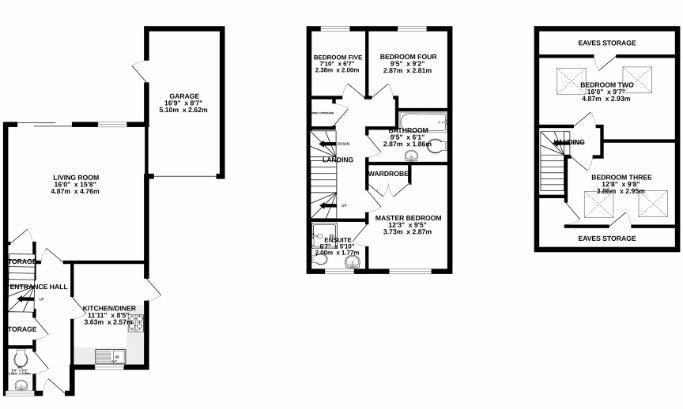
- Five bedrooms with built-in storage
- Two bathrooms, including an ensuite
- Extended living space with a 16' lounge diner
- Private rear garden with patio
- Garage and driveway parking
- Chain-free opportunity
- Excellent local amenities and low crime rate
This spacious five-bedroom semi-detached home in the desirable Warfield area offers incredible value for families and investors alike. With no onward chain, this property is ready for you to move in and make it your own. Entertain in the bright, modern living area that flows seamlessly to your private garden, perfect for summer gatherings.
The flexible layout includes a separate kitchen and downstairs cloakroom, with ample space for everyone across the three levels. The master suite features built-in wardrobes and an ensuite for added comfort. Two additional good-sized bedrooms on the first floor and two more on the second floor provide plenty of versatility for growing families or work-from-home setups.
Situated close to Bracknell town centre and the highly-rated Lexicon shopping, this home is within walking distance to local parks and schools, including several with 'Good' and 'Outstanding' ratings. Enjoy the benefits of a friendly community in this affluent neighborhood with fast broadband and excellent mobile signal. Don’t miss this opportunity—properties in this area are in high demand!
5 bedroom detached house for sale in Flemish Place, Warfield, Bracknell, RG42 — £750,000 • 5 bed • 3 bath • 1540 ft²
3 bedroom end of terrace house for sale in Barley Mead, Warfield, Bracknell, RG42 — £400,000 • 3 bed • 1 bath • 559 ft²
3 bedroom detached house for sale in Huson Road, Warfield, RG42 — £500,000 • 3 bed • 2 bath • 807 ft²
3 bedroom detached house for sale in Horatio Avenue, Warfield, Bracknell, Berkshire, RG42 — £525,000 • 3 bed • 2 bath • 1287 ft²
3 bedroom link detached house for sale in Hebbecastle Down, Warfield, Berkshire, RG42 — £475,000 • 3 bed • 2 bath • 1020 ft²
5 bedroom detached house for sale in Juliet Gardens, Warfield, Bracknell, RG42 — £700,000 • 5 bed • 3 bath • 1837 ft²


























































