Bright central apartment with communal garden and caretakers.
Front reception overlooking Kings Road and Dovehouse Green
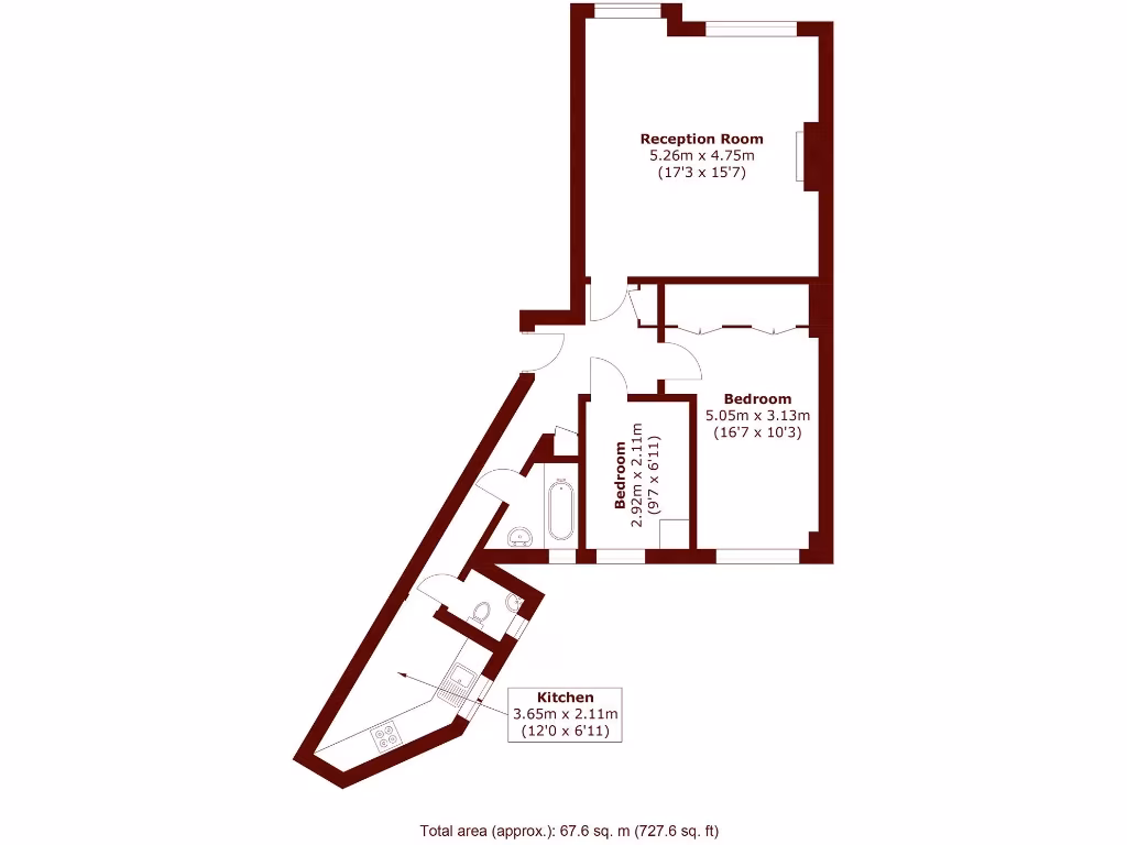
Set on Kings Road with a front reception overlooking Dovehouse Green, this two-bedroom apartment offers classic Chelsea location and practical communal amenities. The open-plan living and dining room is bright with natural light; the principal bedroom benefits from built-in wardrobes. A well-appointed separate kitchen and a second bedroom or study provide flexible living space within an average-sized 727 sq ft layout.
Long lease security is a clear strength — 899 years remaining — and the block is well managed with a lift, live-in caretakers and a communal rose garden. Heating and hot water are provided communally, simplifying services and maintenance for residents. The position places shoppers, restaurants and transport links on Kings Road within easy walking distance.
Buyers should note the material running costs: the annual service charge is £9,600 and Council Tax sits at Band F, both above average. The apartment has a single bathroom and standard ceiling heights; rooms are medium to small in scale, so layout decisions will affect perceived space. Information should be checked and confirmed prior to proceeding.
2 bedroom flat for sale in Kings Court North, Kings Road, Chelsea, London, SW3 — £750,000 • 2 bed • 1 bath • 654 ft²
2 bedroom apartment for sale in Kings Court North, King's Road, London, SW3 — £1,100,000 • 2 bed • 2 bath • 772 ft²
1 bedroom flat for sale in Kings Court North,
Kings Road, SW3 — £500,000 • 1 bed • 1 bath • 451 ft²
2 bedroom flat for sale in Kings Court South, Chelsea Manor Gardens, SW3 — £890,000 • 2 bed • 2 bath • 867 ft²
1 bedroom flat for sale in Kings Court South, Chelsea Manor Gardens, London, SW3 — £690,000 • 1 bed • 1 bath • 634 ft²
2 bedroom flat for sale in Kings Road, Chelsea, London, SW3 — £775,000 • 2 bed • 1 bath • 654 ft²






















