**Standout Features:**
- Traditional thatched pub with historic character
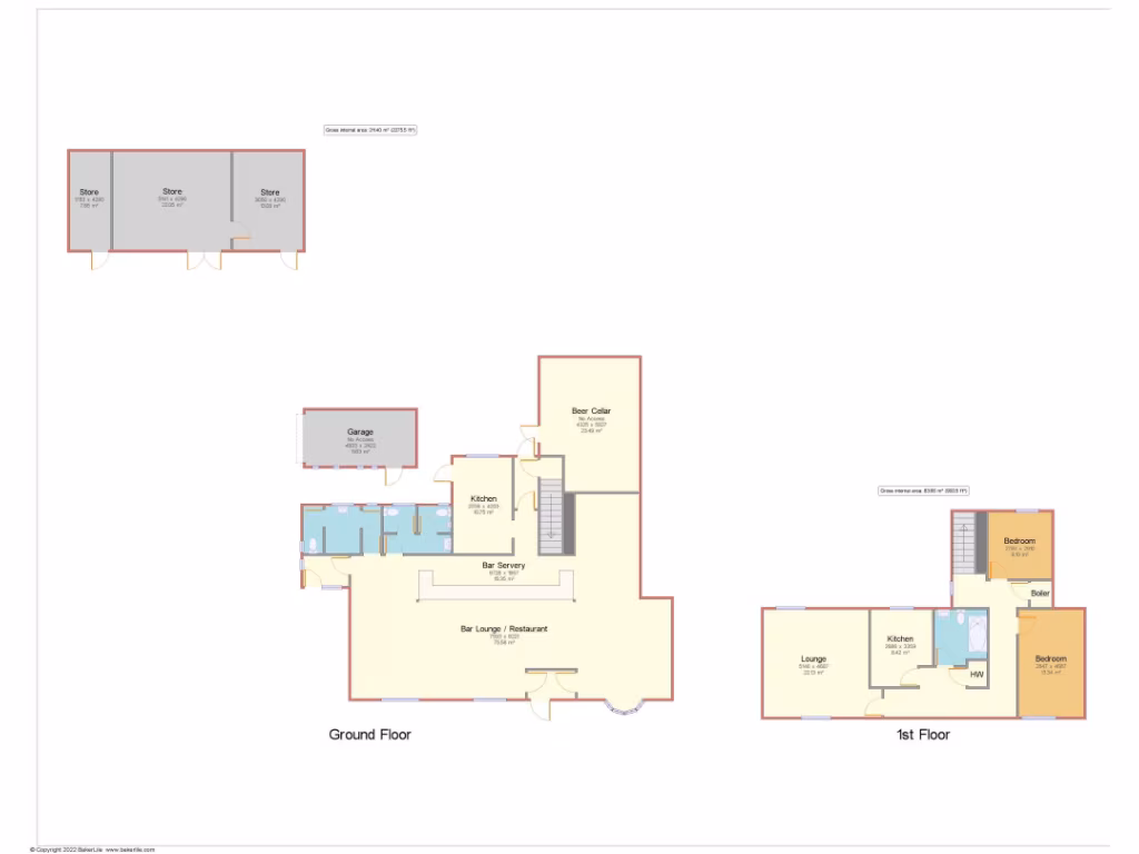
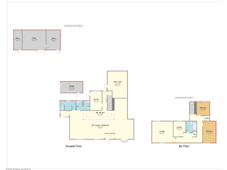
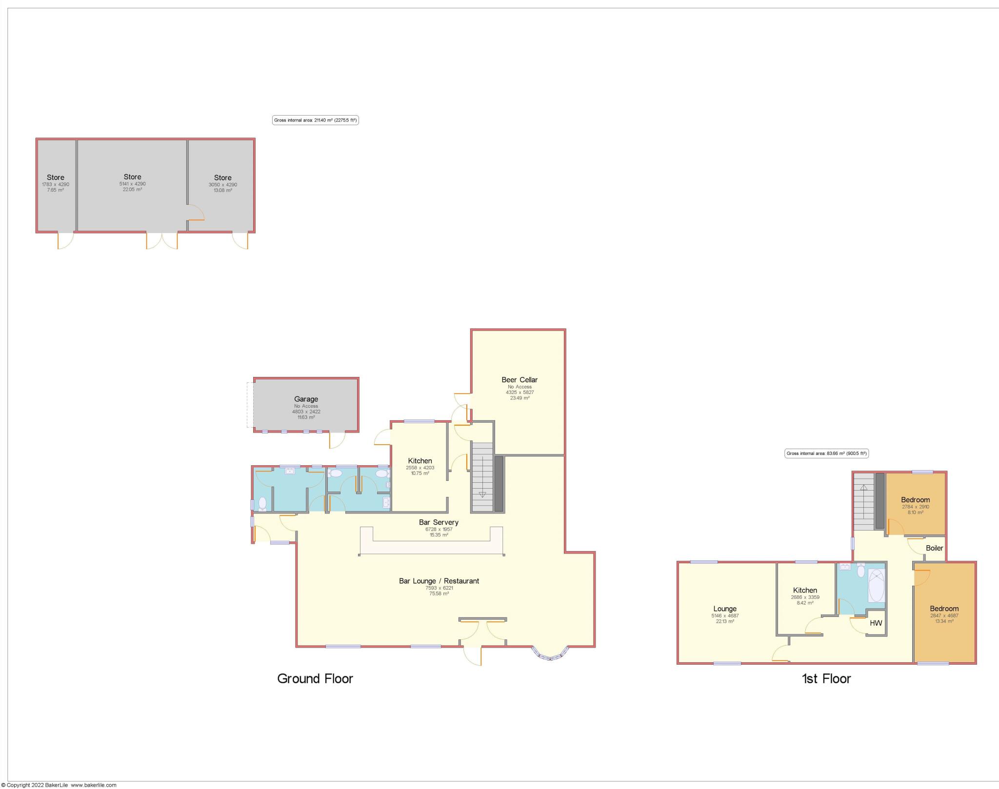
- Flexible lounge space with capacity for 60+ covers
- Commercial kitchen and ample storage
- Managers accommodation with two bedrooms
- Spacious beer garden and patio seating areas
- New seven-year lease available at £24,000 + VAT per annum
- Prime location for locals, walkers, and tourists near recreational areas
This traditional thatched pub, The Half Moon, is a remarkable opportunity nestled in the picturesque village of Grendon, Northamptonshire. With a generous interior space, including a flexible lounge accommodating over 60 patrons and a fully functional commercial kitchen, it's perfectly suited for those looking to run a family-friendly establishment. The property is complemented by a sizable beer garden and outdoor seating, providing an inviting atmosphere for alfresco enjoyment.
On the first floor, you’ll find manager’s accommodation with two bedrooms, ensuring convenience and comfort for potential operators. The pub is ideally located to attract both local residents and visitors, given its proximity to beautiful attractions such as Grendon Lakes and Sywell Country Park.
While the lease presents a manageable seven-year term with a starting rent that’s competitive for the area, prospective buyers should note that mortgage lenders may be hesitant due to the short lease duration. Additionally, the property, with its storied charm and solid sandstone construction, invites potential for minor renovations to further enhance its appeal.
Viewing is highly recommended for anyone seeking a unique venture that promises both character and community integration. Don't miss this chance to own a piece of local history!
Commercial property for sale in The former Malting House Pub, 66 High Street,
Stoke Goldington,
Newport Pagnall, Buckinghamshire, MK16 8NR, MK16 — POA • 1 bed • 1 bath • 2350 ft²
Detached house for sale in The former Malting House Pub, 66 High Street,Stoke Goldington,Newport Pagnall, Buckinghamshire, MK16 8NR, MK16 — £695,000 • 1 bed • 1 bath • 2350 ft²
Commercial property for sale in The former Malting House Pub, 66 High Street,
Stoke Goldington,
Newport Pagnall, Buckinghamshire, MK16 8NR, MK16 — £695,000 • 1 bed • 1 bath • 2350 ft²
Pub for sale in The Red Lion Public House, 89 High Street, Yardley Hastings, East Midlands, NN7 1ER, NN7 — £450,000 • 1 bed • 1 bath • 3100 ft²
Pub for sale in Fox Inn, 35 High Street, Carlton, Bedford, MK43 7LA, MK43 — £400,000 • 1 bed • 1 bath • 797 ft²
Pub for sale in E-519540 - Horseshoe, 2 Overstone Road, Sywell NN6 0AW, NN6 — £99,500 • 1 bed • 1 bath


















































