Practical two-bedroom semi with garden, garage and modern kitchen-diner — ideal first home or investment.
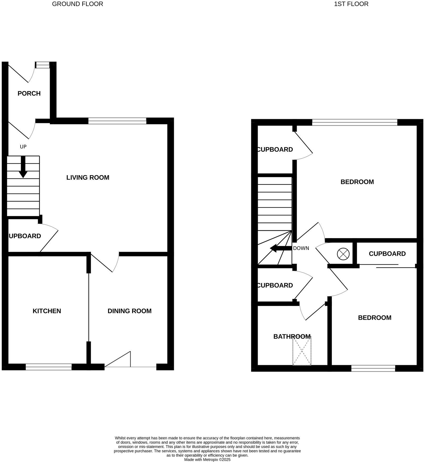
Two double bedrooms with fitted wardrobes and good storage
Modern kitchen–diner with patio doors to enclosed rear garden
Garage and driveway provide private parking and storage
Bright front lounge; neutral decor throughout
EPC Band C; freehold tenure
Approx 657 sq ft — modest room sizes, mainly small to medium
Single shower room only; one bathroom for two bedrooms
Local area classed as very deprived — consider resale/tenant profile
This well-presented two-bedroom semi-detached home in Castle Heather Drive offers practical, low-maintenance living in a popular Inverness neighbourhood. The bright front lounge and contemporary kitchen–diner with patio doors create an open, usable ground floor focused on everyday comfort and easy entertaining. A garage and enclosed rear garden add outdoor space and parking convenience.
Upstairs provides two double bedrooms with fitted storage and a modern shower room, suiting first-time buyers, downsizers or buy-to-let investors seeking straightforward accommodation. The property is freehold, has an EPC Band C, fast broadband and excellent mobile signal — useful for working from home or reliable tenant demand.
Buyers should note the house offers modest overall floor space (approx. 657 sq ft) and a single bathroom; room sizes are small-to-medium. The local area is recorded as relatively deprived, which may affect resale values or tenant profiles. Overall, the home represents a practical, competitively priced entry into the Inverness market with clear scope to add value through cosmetic updating.
2 bedroom semi-detached house for sale in 53 Castle Heather Avenue, Inverness, IV2 4DS, IV2 — £187,000 • 2 bed • 1 bath • 679 ft²
2 bedroom flat for sale in 70 Castle Heather Drive, Castle Heather, Inverness, IV2 4ED, IV2 — £120,000 • 2 bed • 1 bath • 549 ft²
3 bedroom semi-detached house for sale in Eilean Donan Road, Inverness, IV2 — £265,000 • 3 bed • 1 bath • 1001 ft²
2 bedroom semi-detached house for sale in Maxwell Drive, Inverness, IV3 5EX, IV3 — £190,000 • 2 bed • 1 bath • 700 ft²
2 bedroom semi-detached house for sale in Blackwell Road, Inverness, IV2 7DZ, IV2 — £160,000 • 2 bed • 1 bath • 700 ft²
3 bedroom semi-detached house for sale in 17 Hawthorn Drive, Inverness, IV3 5RG, IV3 — £215,000 • 3 bed • 1 bath • 757 ft²






























































































