Modern three-bedroom shared ownership end terrace with garden and two parking spaces.
50% shared ownership — rent and service charges apply
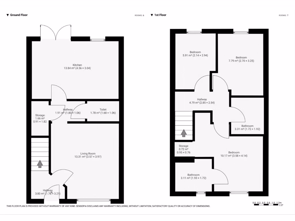
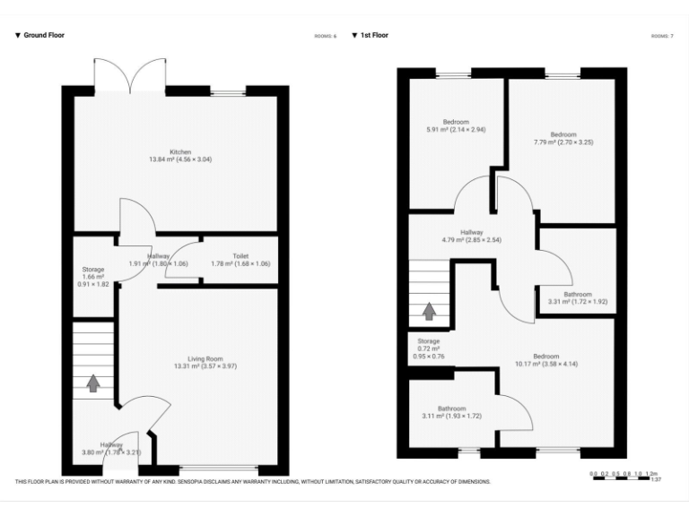
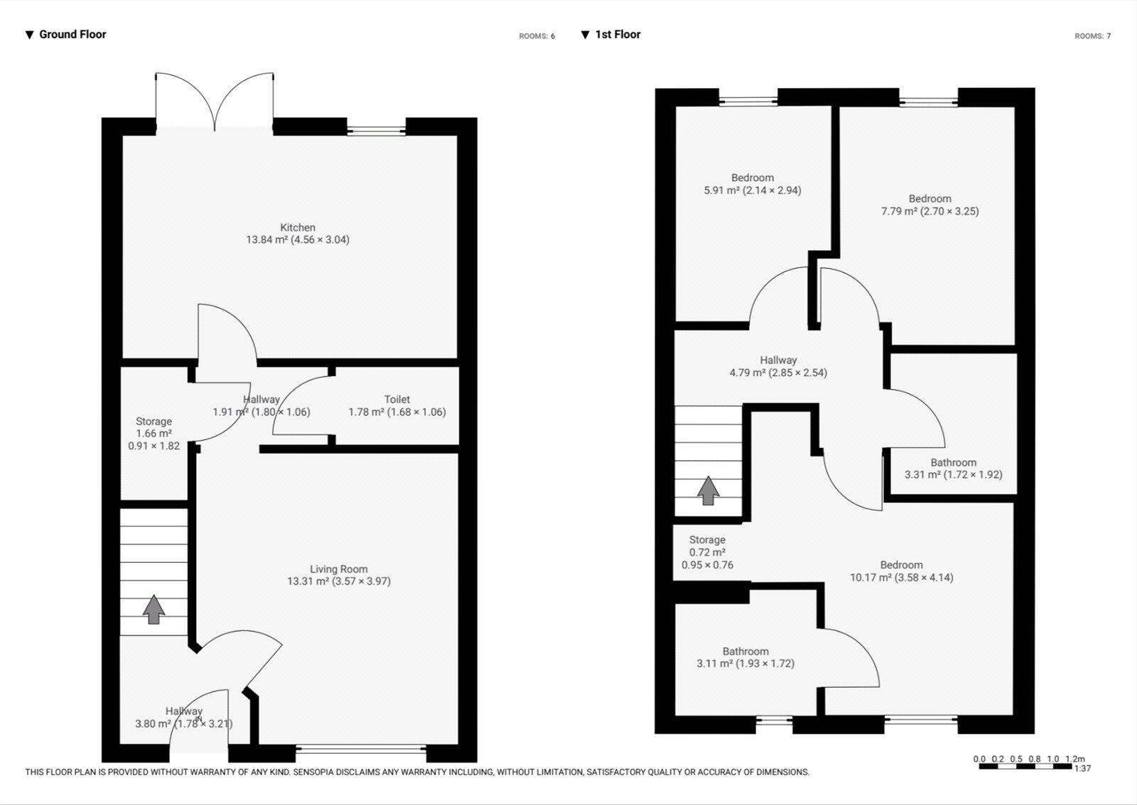
Offered on a 50% shared ownership basis, this modern three-bedroom end terrace is an attractive stepping-stone for first-time buyers or growing families. The ground floor layout includes a welcoming hall, bright living room, kitchen/diner with French doors onto a private rear garden, and a handy downstairs WC. Upstairs there are three bedrooms, the master benefiting from an ensuite, plus a contemporary family bathroom and useful landing storage.
Practical extras include two allocated off-street parking spaces and fast broadband availability — useful for home working and family life. The property sits in a popular, well-served development close to supermarkets, good local schools (multiple Ofsted ‘Good’ rated) and everyday amenities. There is no onward chain and the house is described as well maintained and modern throughout.
Buyers should note this is a leasehold shared ownership home (50% ownership). Monthly service charges apply: rent £316.12 pcm, lease management fee £25.02 pcm and buildings insurance £9.76 pcm; these charges may be reviewed annually and linked to RPI. The lease length is not stated here, so prospective purchasers should confirm the remaining term and any staircasing options before offering.
Overall this property offers an affordable route onto the ladder in a very affluent area with low flood risk and two parking spaces. It suits buyers prepared to buy on a shared-ownership leasehold basis and who want a ready-to-live-in modern home close to schools and shops.
3 bedroom terraced house for sale in Rainworth Drive, Southport, Merseyside, PR8 — £225,000 • 3 bed • 2 bath
3 bedroom end of terrace house for sale in Blowick Moss Lane,
Southport,
PR8 6UX, PR8 — £80,250 • 3 bed • 1 bath • 1107 ft²
3 bedroom end of terrace house for sale in Blowick Moss Lane,
Southport,
PR8 6UX, PR8 — £99,750 • 3 bed • 1 bath • 1107 ft²
3 bedroom semi-detached house for sale in Blowick Moss Lane,
Southport,
PR8 6UX, PR8 — £63,750 • 3 bed • 1 bath • 854 ft²
3 bedroom terraced house for sale in Blue Bird Close, Southport, Merseyside, PR8 5DS, PR8 — £56,250 • 3 bed • 2 bath • 845 ft²
2 bedroom semi-detached house for sale in Langford Drive, Kew, Southport, PR8 — £64,500 • 2 bed • 1 bath • 708 ft²














































































