Chain-free three-bedroom end terrace close to schools, for buyers ready to refurbish..
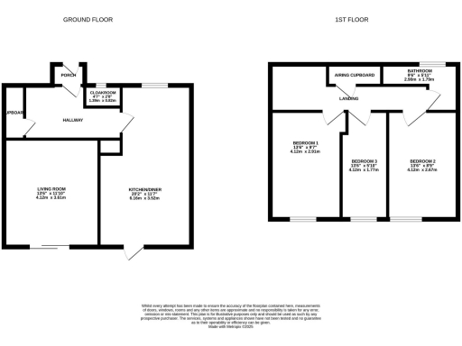
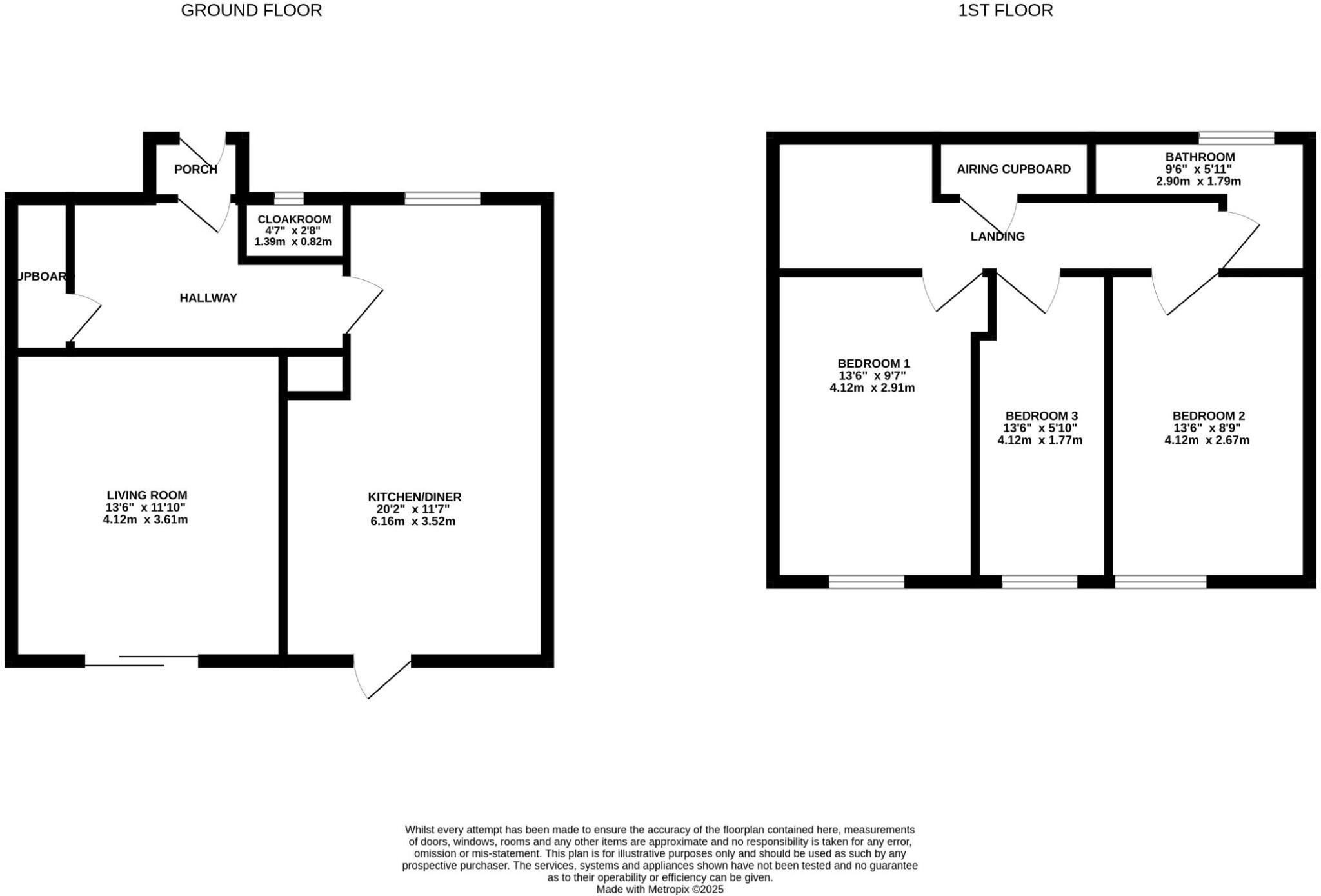
3 bedrooms with dual-aspect kitchen/diner and separate living room
Freehold, chain-free sale — vacant possession available
Small overall size and small rear garden; compact living footprint
Off-street residents' parking bays; easy local transport links
Mains gas boiler and radiators; double glazing (installation date unknown)
Timber-frame construction with partial insulation; likely needs upgrading
Very high local crime and very deprived area—affects desirability
Close to several good/Outstanding schools and local shopping amenities
This small end-terrace three-bedroom house is a chain-free, freehold opportunity for buyers ready to improve and personalise a 1970s-built home. The property includes a dual-aspect kitchen/diner, separate living room, downstairs cloakroom and two double bedrooms plus a single — practical for families or sharers. Outside there is a small garden and off-street parking bays. Broadband and mobile signals are strong and there is no flood risk. Council tax is very low, helping running costs.
The house is sold as an unmodernised/partially neglected 1970s property with timber-frame walls and assumed partial insulation. The building likely needs updating to modern standards (cosmetic refurbishment, possible heating or insulation upgrades) although it benefits from mains gas central heating and double glazing (install dates unknown). Buyers should expect refurbishment work to achieve contemporary comfort and energy performance.
Location strengths include proximity to several well-rated primary and secondary schools (including an Outstanding secondary), Weston Favell shopping, local amenities and regular bus links. These factors support either a family occupation or a buy-to-let investor targeting local demand. However, the immediate area records very high crime rates and is in a very deprived neighbourhood, which will affect desirability, rental yields and resale timing.
This property suits a first-time buyer or investor who can manage or fund refurbishment and who prioritises location benefits (schools, shops, transport) over instant turnkey condition. Full viewing and a professional survey are advised to confirm structural/energy improvements required before purchase.
3 bedroom end of terrace house for sale in Spenfield Court, Lings, Northampton NN3 — £220,000 • 3 bed • 1 bath • 971 ft²
3 bedroom terraced house for sale in Waypost Court, Lings, Northampton NN3 — £210,000 • 3 bed • 1 bath • 995 ft²
3 bedroom town house for sale in Nethermead Court, Lings, Northampton NN3 — £205,000 • 3 bed • 2 bath • 1215 ft²
3 bedroom end of terrace house for sale in Springwood Court, Northampton, NN3 — £200,000 • 3 bed • 1 bath • 579 ft²
3 bedroom end of terrace house for sale in Tyes Court, Lings, NN3 8LW, NN3 — £240,000 • 3 bed • 1 bath • 946 ft²
3 bedroom detached house for sale in South Priors Court | Lings | NN3 — £295,000 • 3 bed • 1 bath • 872 ft²


































































