Ideal first home with garden and generous living space near town amenities.
No onward chain — ready for a quick sale
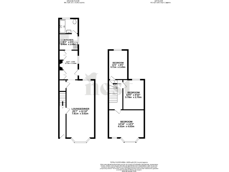
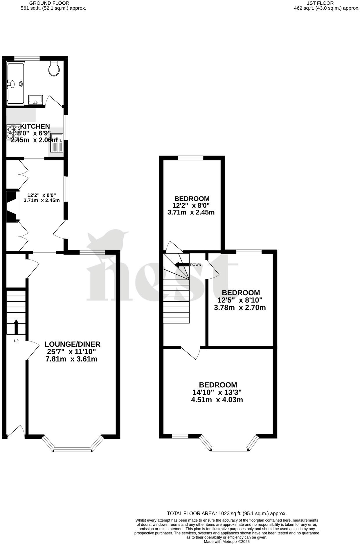
This Victorian mid-terrace offers spacious, flexible accommodation across two floors and around 1,023 sq ft. The large open-plan lounge/diner connects to a second reception room that opens directly onto a low-maintenance rear garden, creating good flow for family life or shared living.
Practical features include gas central heating, double-glazed windows replaced in 2018, and a brick outbuilding for storage or a small workshop. The property is freehold and sold with no onward chain, making the purchase process simpler for buyers who want a quick move-in or investment let.
The house requires some cosmetic updating throughout — walls and floors show signs of everyday wear — but presents clear scope for improvement and value enhancement. There is a single bathroom on the ground floor and three double bedrooms upstairs, suitable for families, first-time buyers, or renters.
Location is convenient: within walking distance of town centre amenities, major employers and Yeovil District Hospital. Note the area records above-average crime and the plot is small; buyers seeking expansive outdoor space may find the garden limited. Council tax band is inexpensive, and broadband and mobile signals are strong.
3 bedroom terraced house for sale in Preston Grove, Yeovil, BA20 — £220,000 • 3 bed • 1 bath • 703 ft²
3 bedroom terraced house for sale in Crofton Park, Yeovil, Somerset, BA21 4EA, BA21 — £240,000 • 3 bed • 1 bath • 787 ft²
3 bedroom terraced house for sale in Huish, Yeovil, Somerset, BA20 — £180,000 • 3 bed • 1 bath • 802 ft²
2 bedroom terraced house for sale in St Michael’s Road, Yeovil, Somerset, BA21 — £180,000 • 2 bed • 1 bath • 855 ft²
3 bedroom semi-detached house for sale in Hendford Grove, Yeovil, BA20 — £219,950 • 3 bed • 1 bath • 959 ft²
3 bedroom end of terrace house for sale in St. Michaels Avenue, YEOVIL, BA21 — £255,000 • 3 bed • 1 bath • 755 ft²


















































































