**Standout Features:**
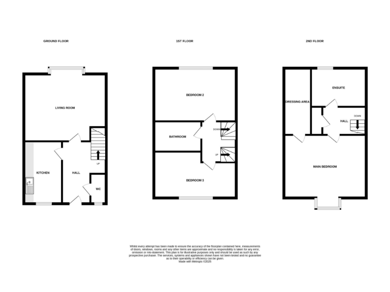
- Contemporary three-storey terraced home with three bedrooms
- Newly renovated en-suite shower room and boiler fitted in early 2024
- Conveniently located near local shops and schools, with easy access to Peterborough City Centre
- Spacious lounge/diner with patio doors that open to an enclosed rear garden
- Private off-street parking via a driveway and access to a single garage
**Essential Details:**
This stylish three-bedroom mid-terrace home in Sugar Way offers modern living and convenience with no upward chain. Spanning three storeys, it features a well-appointed kitchen, spacious lounge/diner, and three bedrooms, including a master suite complete with a walk-in wardrobe and en-suite shower room. The newly renovated interiors accentuated by natural light create a welcoming atmosphere.
Set in a tranquil cul-de-sac and close to essential amenities and good-rated schools, this property is perfect for families or first-time buyers looking for a comfortable home. The manageable garden is ideal for outdoor relaxation, and the off-street parking adds extra convenience.
While the area shows above-average crime rates, it is known for being affluent and offers excellent mobile reception and fast broadband, making it suitable for both professionals and families alike. With its blend of modern features and renovation potential, this home represents a golden opportunity that won't last long. Secure your viewing today to envision a fresh start in this vibrant neighborhood!
3 bedroom terraced house for sale in Oswald Road, Sugar Way, Peterborough, PE2 — £250,000 • 3 bed • 2 bath • 991 ft²
3 bedroom terraced house for sale in Fleming Court, Peterborough, PE2 — £270,000 • 3 bed • 2 bath • 1077 ft²
3 bedroom terraced house for sale in Iris Drive, Peterborough, PE2 — £250,000 • 3 bed • 3 bath • 675 ft²
3 bedroom town house for sale in Fleming Court, Peterborough, PE2 — £270,000 • 3 bed • 2 bath • 761 ft²
4 bedroom end of terrace house for sale in Iris Drive, Peterborough, PE2 — £300,000 • 4 bed • 2 bath • 1324 ft²
4 bedroom detached house for sale in Crystal Drive, Peterborough, PE2 — £400,000 • 4 bed • 2 bath • 1217 ft²














































