Compact one-bedroom with private garden and fast links to central Bristol.
Private rear garden with patio and small lawn
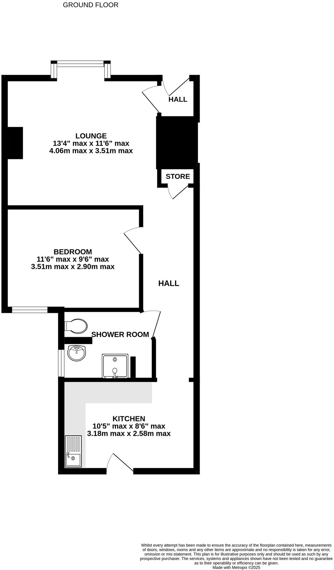
Ground-floor one-bedroom layout with bay-front lounge
Fitted kitchen and shower room, gas central heating
Chain free sale for quicker completion
Very long lease (details vary: owner notes c.975 years; title says 999 from 1989)
Small overall size ~351 sq ft — compact living space
Period brick construction; likely solid walls with no cavity insulation
Council Tax Band A — very low local tax costs
A compact ground-floor one-bedroom flat tucked into an Edwardian terrace, ideal for a first-time buyer seeking a private outdoor space close to local amenities. The flat is arranged with a bay-front lounge, separate fitted kitchen and a shower room, and benefits from gas central heating and double glazing for everyday comfort.
Outside, the enclosed rear garden provides a low-maintenance private patio and small lawn — a rare find for a flat of this size and useful for relaxing or pot plants. The property sits within easy walking distance of Shirehampton High Street, train links to central Bristol and nearby green spaces such as the River Avon and Blaise Estate.
Practical positives include a very long lease and a chain-free sale that can speed completion. Be clear that the overall footprint is small (about 351 sq ft), the building is period brickwork likely without cavity insulation, and some updating may be wanted to maximise space and energy efficiency. Council tax band A keeps running costs low.
This is a straightforward, entry-level purchase for someone prioritising location, outdoor space and transport links over internal floor area. The flat offers immediate use with potential to personalise and improve energy performance over time.
1 bedroom flat for sale in Lower High Street, Shirehampton, Bristol, BS11 — £195,000 • 1 bed • 1 bath • 426 ft²
1 bedroom flat for sale in Gloucester Road, Horfield, Bristol, BS7 — £260,000 • 1 bed • 1 bath • 506 ft²
2 bedroom flat for sale in Bradley Crescent, Shirehampton, BS11 — £225,000 • 2 bed • 1 bath • 500 ft²
1 bedroom flat for sale in Bristol Hill, Brislington, Bristol, BS4 — £215,000 • 1 bed • 1 bath • 646 ft²
1 bedroom flat for sale in Garden flat Elton Road, Bishopston, Bristol, BS7 8DD, BS7 — £260,000 • 1 bed • 1 bath • 625 ft²
2 bedroom flat for sale in Grove Leaze, Shirehampton, Bristol, BS11 — £224,995 • 2 bed • 1 bath • 605 ft²


















































