GL55 6AG - Commercial property for sale in Campden Gallery, High Stree…

View on Property Piper

Commercial property for sale in Campden Gallery, High Street, Chipping Campden, GL55

Summary - ELLISONS HIGH STREET CHIPPING CAMPDEN GL55 6AG

1 bed 1 bath Commercial Property

**Standout Features:**
- Desirable High Street location in Chipping Campden
- Potential for residential conversion of upper floors (planning permission granted)
- Grade II listed property with charming Cotswold stone architecture
- Vacant possession upon completion, offering immediate opportunities
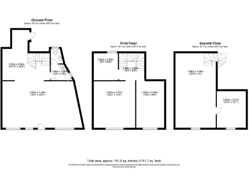
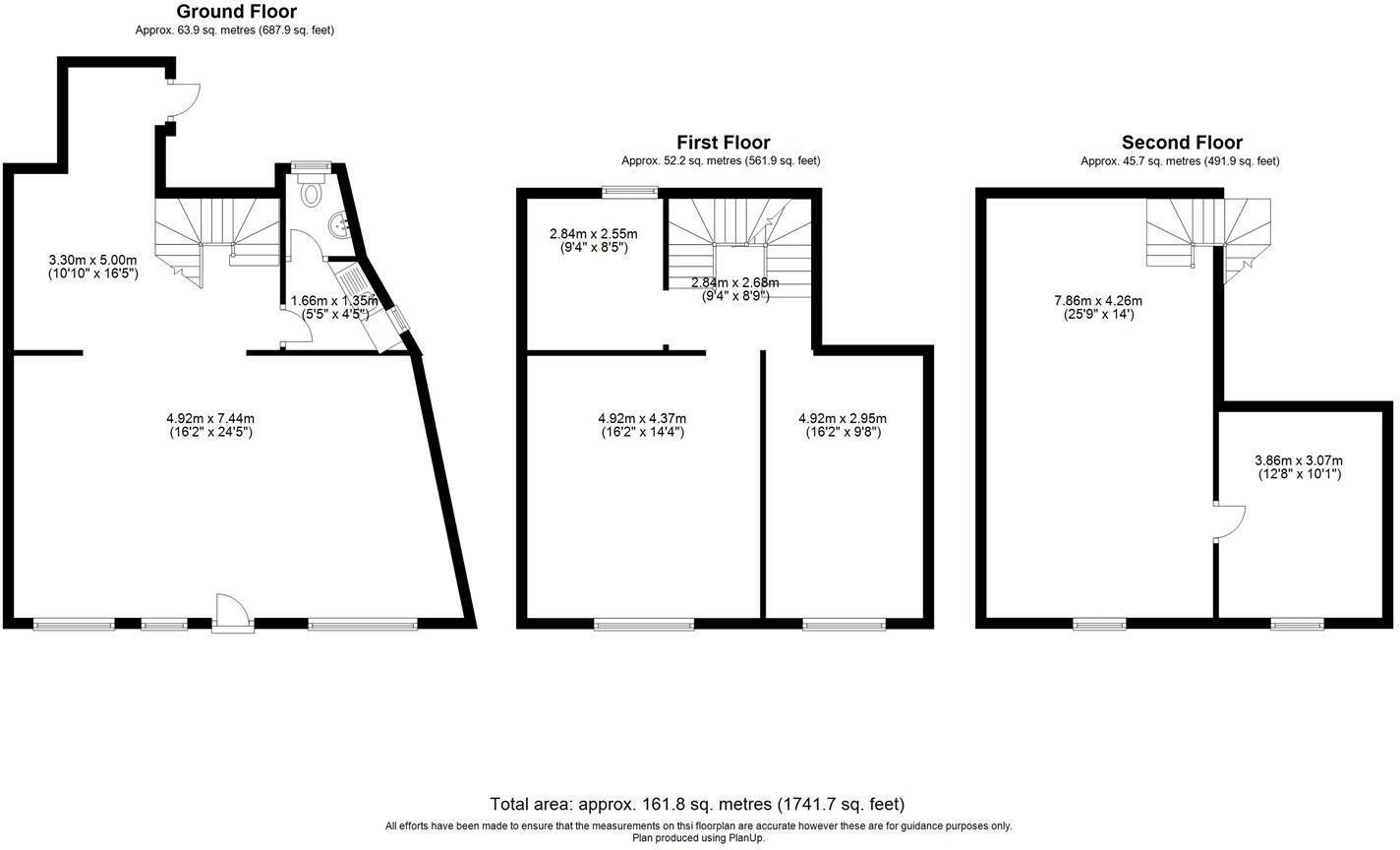
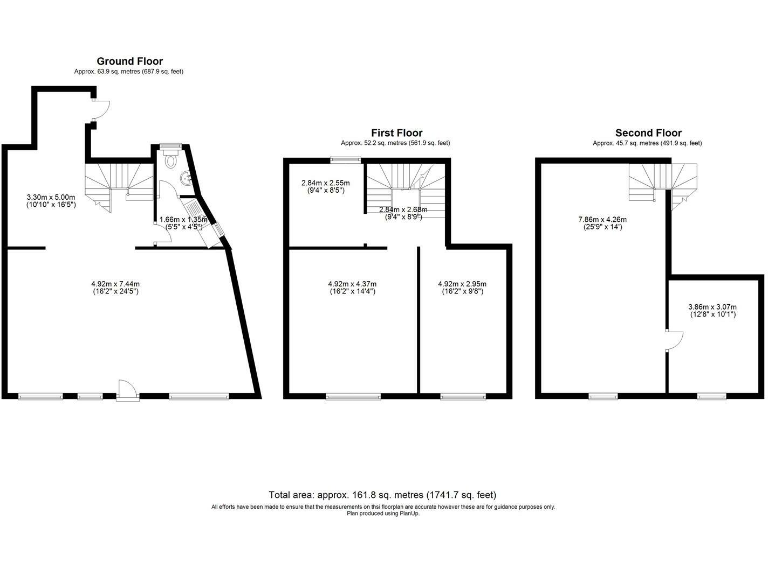
- Total area of approximately 1,741 sq ft, providing ample space for creative layout options
- Excellent mobile signal and average broadband speeds
- Mature garden space enhancing the property's appeal

**Concerns:**
- Grade II listing may complicate any renovation toward modern amenities
- Limited insulation as built, potentially requiring upgrades for energy efficiency

This unique property offers a rare opportunity for savvy investors or creative homeowners looking to reside in the picturesque market town of Chipping Campden. With planning permission recently granted to convert the upper floors into residential space, buyers can envision transforming this charmer into a delightful home or lucrative rental. Spanning a generous 1,741 sq ft, the historical Cotswold stone building combines classic character with modern potential, all in a vibrant community surrounded by charming shops, eateries, and cultural events.

The current layout, featuring an art gallery, can easily be reimagined to suit your aspirations, making this a canvas for your dream residence. Despite its historical status, which might present challenges, the property's prime location on the high street ensures visibility and desirability. Don’t miss this opportunity to secure a piece of Chipping Campden's heritage in a locale that boasts low crime rates and a wealth of local amenities. Act quickly — properties with this type of potential in such a sought-after area don’t stay on the market for long!

Property Details

Brochure Descriptions

Image Descriptions

Floorplan Description

Rooms

Textual Property Features

Detected Visual Features

EPC Details

Nearby Schools

Nearest Bars And Restaurants

,,,,}

Nearest General Shops

,,}

Nearest Grocery shops

,,}

Nearest Supermarkets

,,}

Nearest Religious buildings

,,}

Nearest Medical buildings

,,,}

Nearest Leisure Facilities

,,,,}

Nearest Tourist attractions

,,}

Nearest Train stations

,,,,}

Nearest Bus stations and stops

,,,,}

Nearest Hotels

,,}

Tags

Local Market Stats

AirBnB Data

Similar Properties

Meta

High Res Images

Compatible Images

Low res Images

Thumbnails

Raw Images

High Res Floorplan Images

Compatible Floorplan Images

Low res Floorplan Images

FloorplanImages Thumbnail

Raw Floorplan Images