Quiet, single-storey bungalow with countryside views and loft conversion potential.
Views to open countryside to the rear
Large loft — strong conversion or storage potential
Integral garage plus wide driveway for multiple cars
Two-bedroom single-storey layout, easy living
Entryway shows potential damp — professional inspection advised
Unknown double-glazing installation date — may need upgrade
Built c.1976–82; likely cosmetic/modernisation work needed
Area crime above average — consider security measures
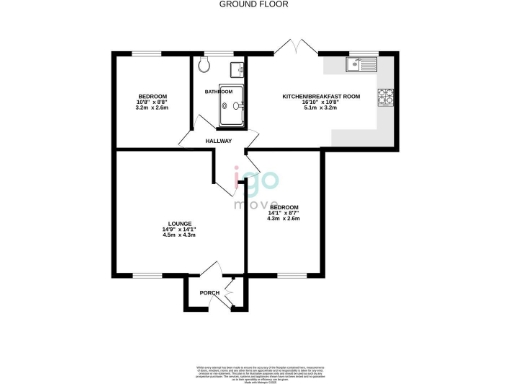
This semi-detached, single-story bungalow in The Oaklands offers practical, low-maintenance living with notable potential. The rear faces open countryside, and an expansive loft presents a clear opportunity for conversion to add living space or storage. The layout—two bedrooms, a generous kitchen/breakfast room and a large lounge—suits downsizers, first-time buyers or those seeking single-level homes.
Externally the property benefits from an integral garage, a wide tarmac driveway with off-street parking for multiple vehicles, and a decent rear plot size. Broadband and mobile signals are strong, and the local area is affluent with good nearby schools, making day-to-day life straightforward.
Buyers should note some material points: the entryway image suggests possible damp that requires inspection and the double glazing install date is unknown. The house was built c.1976–82 so certain elements (kitchen, bathroom, electrics) may need updating. Crime levels in the area are above average — factor this into security considerations.
Overall this bungalow is a practical, well-presented single-storey home with scope to increase value through loft conversion or selective updating. It appeals to someone after low-maintenance living, countryside views and good parking, while accepting some renovation and security considerations.
2 bedroom semi-detached bungalow for sale in Clarendon Road, Darlington, DL1 — £179,950 • 2 bed • 1 bath • 1314 ft²
2 bedroom detached bungalow for sale in Millfields, Aycliffe, DL5 — £230,000 • 2 bed • 1 bath • 657 ft²
3 bedroom detached bungalow for sale in Jenison Close, School Aycliffe, DL5 — £350,000 • 3 bed • 3 bath • 1689 ft²
3 bedroom detached bungalow for sale in Thursby Close, School Aycliffe, DL5 — £330,000 • 3 bed • 2 bath • 1530 ft²
2 bedroom bungalow for sale in Lilac Close, Carlton, Stockton-on-Tees, TS21 — £280,000 • 2 bed • 2 bath • 1313 ft²
2 bedroom detached bungalow for sale in Millfields, Aycliffe Village, DL5 — £240,000 • 2 bed • 1 bath • 850 ft²


















































