Quiet two-bedroom house with garage and easy access to town and seafront.
End-terrace mews-style house with private garage and parking
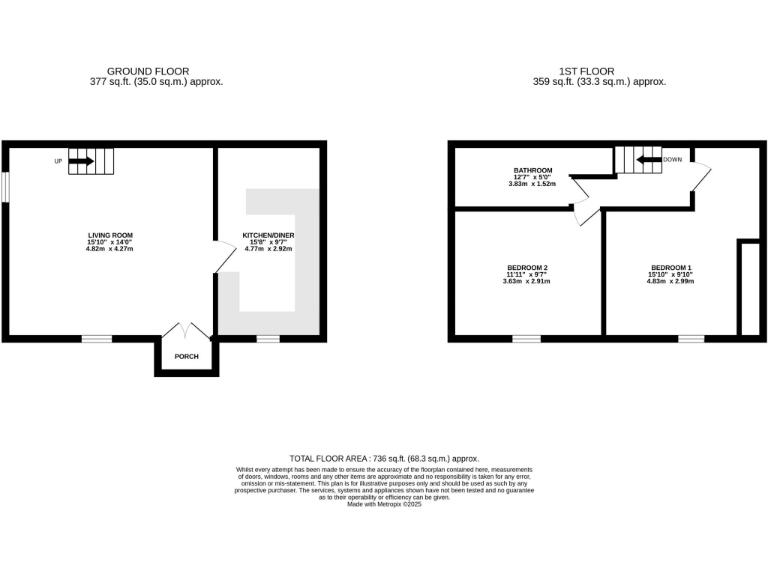
Open-plan kitchen-diner and generous lounge with feature staircase
Two double bedrooms; master with built-in storage
Single three-piece family bathroom only
Approximately 736 sq ft; average overall size
Leasehold with c.899 years remaining
Area classed as deprived; consider local socio-economic factors
Average broadband speeds; excellent mobile signal
This end-terrace mews-style home offers a practical layout for modern living, with a spacious lounge, open-plan kitchen-diner and private garage with parking. The property sits in a peaceful residential street yet is a short walk from Southport town centre, the seafront and good transport links—ideal for commuting or weekend outings.
The house provides two generous double bedrooms; the master benefits from built-in storage, and the first-floor three-piece bathroom presents a neat, move-in-ready finish. With around 736 sq ft of accommodation and a lawned front garden, the home feels roomy for its size and suits first-time buyers or downsizers looking for low-stress upkeep.
Practical points to note: the property is leasehold (approximately 899 years remaining) and situated in an area with higher levels of deprivation. Broadband speeds are average and there is a single family bathroom. Crime levels and local amenities are typical for a city/major town location.
Overall this well-positioned, well-presented mews home combines convenience, private parking and sensible running costs (cheap council tax). A straightforward purchase for buyers prioritising location, a garage and easy access to schools and services; viewings will help appreciate the setting and scale.
2 bedroom terraced house for sale in Walro Mews, Southport, Merseyside, PR9 9DQ, PR9 — £180,000 • 2 bed • 1 bath • 632 ft²
2 bedroom terraced house for sale in Handsworth Walk, Southport, PR8 — £150,000 • 2 bed • 1 bath • 573 ft²
2 bedroom flat for sale in Hampton Road, Southport, PR8 5DY, PR8 — £135,000 • 2 bed • 1 bath • 741 ft²
2 bedroom semi-detached house for sale in Hope Street, Southport, PR9 — £180,000 • 2 bed • 1 bath • 776 ft²
2 bedroom terraced house for sale in Crowland Street, Southport, PR9 — £125,000 • 2 bed • 1 bath • 611 ft²
2 bedroom end of terrace house for sale in Pine Grove, Southport, PR9 9AQ, PR9 — £180,000 • 2 bed • 2 bath • 900 ft²


































































































