Turn-key, modern family home in a convenient town location near schools and transport.
Completely refurbished throughout with new wiring and flooring
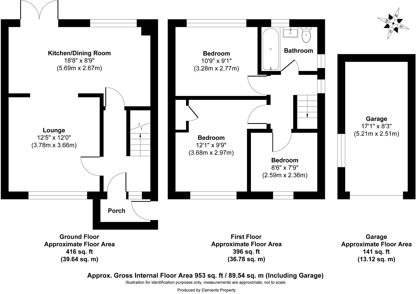
Open-plan kitchen/dining with integrated appliances and garden access
Spacious lounge; bright, sociable principal living space
Three bedrooms; suitable for family or home working
Luxury family bathroom; single bathroom only
Small overall size and modest plot (approx. 812 sq ft)
Extended driveway and single garage for off-road parking
Freehold, chain free; built c.1967–1975, double glazing (date unknown)
This recently refurbished three-bedroom semi-detached home in Haywards Heath has been updated throughout to provide a turn-key living space. A bright open-plan kitchen/dining room and a spacious lounge create practical, sociable ground-floor living, while three bedrooms upstairs suit families or couples needing a home office.
Refurbishment works are comprehensive: full rewire, new flooring, modern fitted kitchen with integrated appliances, and a luxury family bathroom. The small landscaped rear garden and sandstone patio offer low-maintenance outdoor space, and the extended driveway plus garage provide useful off-road parking.
Practical details to note: the property is freehold and chain free, built c.1967–1975 with double glazing (installation date unknown). The plot and overall internal size are modest (approximately 812 sq ft), and there is a single family bathroom. Local amenities, good schools and fast broadband make this a convenient town location with excellent mobile signal.
3 bedroom semi-detached house for sale in Farlington Avenue, Haywards Heath, RH16 — £525,000 • 3 bed • 2 bath • 1368 ft²
3 bedroom house for sale in Pineham Copse, Haywards Heath, RH16 — £385,000 • 3 bed • 1 bath • 884 ft²
3 bedroom house for sale in Petlands Gardens, Haywards Heath, RH16 — £500,000 • 3 bed • 2 bath • 1416 ft²
3 bedroom semi-detached house for sale in Dellney Avenue, Haywards Heath, RH16 — £575,000 • 3 bed • 2 bath • 1261 ft²
3 bedroom house for sale in Barnmead, Haywards Heath, RH16 — £450,000 • 3 bed • 1 bath • 644 ft²
3 bedroom semi-detached house for sale in Western Road, Haywards Heath, RH16 — £439,950 • 3 bed • 2 bath • 947 ft²






















































































































































































