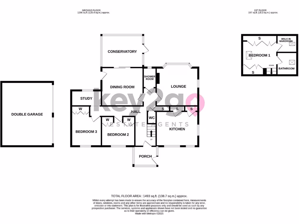
Discover this spacious and **chain-free three-bedroom detached bungalow**, nestled in a quiet, private setting. With a generous **1,493 sq. ft.** layout, this property boasts **ample off-road parking** and a **double garage** equipped with power and lighting, making it perfect for both families and those seeking additional storage. The **south-facing front garden** provides a lovely outdoor space, great for enjoying sunny days.
Inside, the bungalow features a welcoming hallway that leads to a bright lounge and an open-concept dining room with sliding doors to a charming conservatory—ideal for entertaining. The sizable **kitchen** comes complete with modern fittings, including an integrated oven and gas hob, alongside plenty of storage options. Each of the three comfortable bedrooms offers ample space, including a master suite complete with a walk-in wardrobe.
While the property is well-maintained, it includes features typical of mid-20th century homes, such as **double glazing** and a **traditional boiler**. There is potential for some modern renovations, allowing you to add your personal touch. Additionally, it is conveniently located close to local amenities and has good road links into Sheffield, making it suitable for families and commuters alike.
With the combination of spacious interiors, a private garden, and convenient amenities, this bungalow is a rare find that won't last long on the market! Don't miss your opportunity to make this comfortable home yours.
2 bedroom detached bungalow for sale in Robert Close, Unstone, Dronfield, Derbyshire, S18 — £300,000 • 2 bed • 2 bath • 1322 ft²
3 bedroom detached bungalow for sale in Westthorpe Road, Killamarsh, Sheffield, S21 — £250,000 • 3 bed • 1 bath • 1187 ft²
3 bedroom detached bungalow for sale in Prospect Road, Dronfield, Derbyshire, S18 — £285,000 • 3 bed • 1 bath • 978 ft²
3 bedroom detached bungalow for sale in Halton Court, Hackenthorpe, S12 — £280,000 • 3 bed • 1 bath • 854 ft²
3 bedroom detached bungalow for sale in Bents Lane, Dronfield, Derbyshire, S18 — £330,000 • 3 bed • 1 bath • 1088 ft²
3 bedroom detached bungalow for sale in Linden Avenue, Clay Cross, S45 — £315,000 • 3 bed • 2 bath • 1292 ft²














































































































