**Standout Features:**
- Stunning duplex apartment with two bedrooms
- Modern kitchen and bathroom
- Open-plan living and dining area filled with natural light
- No onward chain for a quick purchase
- Desirable location near the River Thames
- Close proximity to boutique shops, restaurants, and leisure facilities
- Excellent transport links to London and local areas
**Notable Concerns:**
- Leasehold tenure with associated service charge
- Double glazing installed before 2002 may require upgrades
- Potential for maintenance needs due to age of construction (1967-1975)
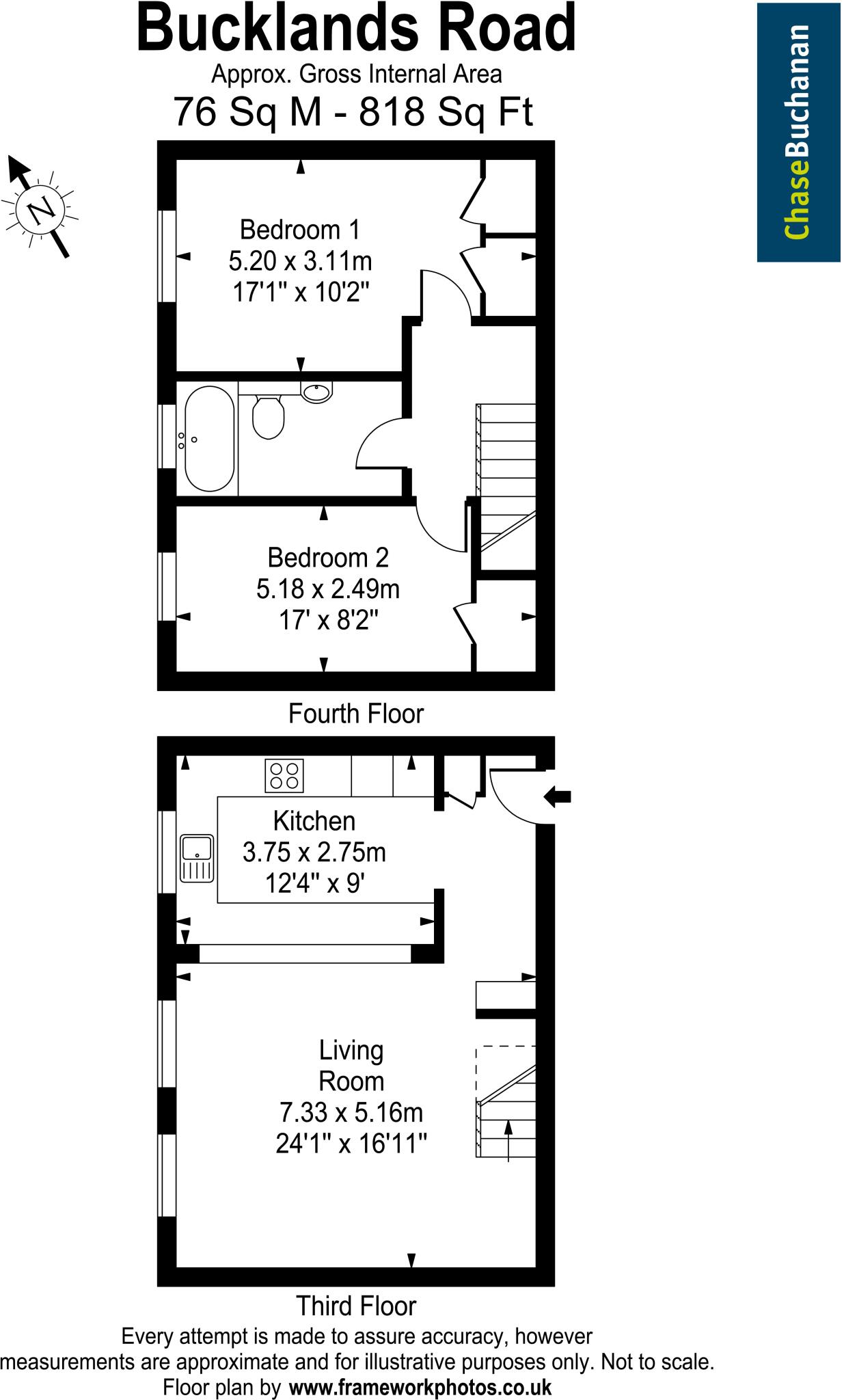
Discover this charming duplex apartment nestled by the River Thames in Teddington, perfect for first-time buyers or families seeking a vibrant community. Boasting over 800 square feet, this well-maintained home features a bright open-plan living and dining area, a modern white gloss kitchen equipped with appliances, a contemporary bathroom, and two generously sized bedrooms. The property is chain-free, ensuring a straightforward purchase process.
Enjoy the convenience of nearby boutique shops, charming restaurants, and access to leisure amenities like the David Lloyd Leisure Centre. Commuters will appreciate excellent transport links, with Teddington train station providing direct access to London Waterloo. Families will benefit from highly-rated local schools, ensuring educational excellence within walking distance.
This stylish apartment offers not only comfort and modern living but great future potential in a sought-after area. Don't miss out—this property is a unique opportunity that may not be available for long!
2 bedroom apartment for sale in Broom Road, Teddington, TW11 — £425,000 • 2 bed • 2 bath • 628 ft²
2 bedroom apartment for sale in Bucklands Road, Teddington, TW11 — £350,000 • 2 bed • 1 bath • 658 ft²
2 bedroom apartment for sale in Ferry Road, Teddington, TW11 — £900,000 • 2 bed • 2 bath • 1044 ft²
2 bedroom flat for sale in Twickenham Road, Teddington, TW11 — £515,000 • 2 bed • 2 bath • 751 ft²
2 bedroom maisonette for sale in Cherrywood Court, TW11 — £385,000 • 2 bed • 1 bath • 700 ft²
2 bedroom flat for sale in Twickenham Road, Teddington, TW11 — £510,000 • 2 bed • 2 bath • 742 ft²






































