West-facing terrace and communal garden in the heart of Knightsbridge.
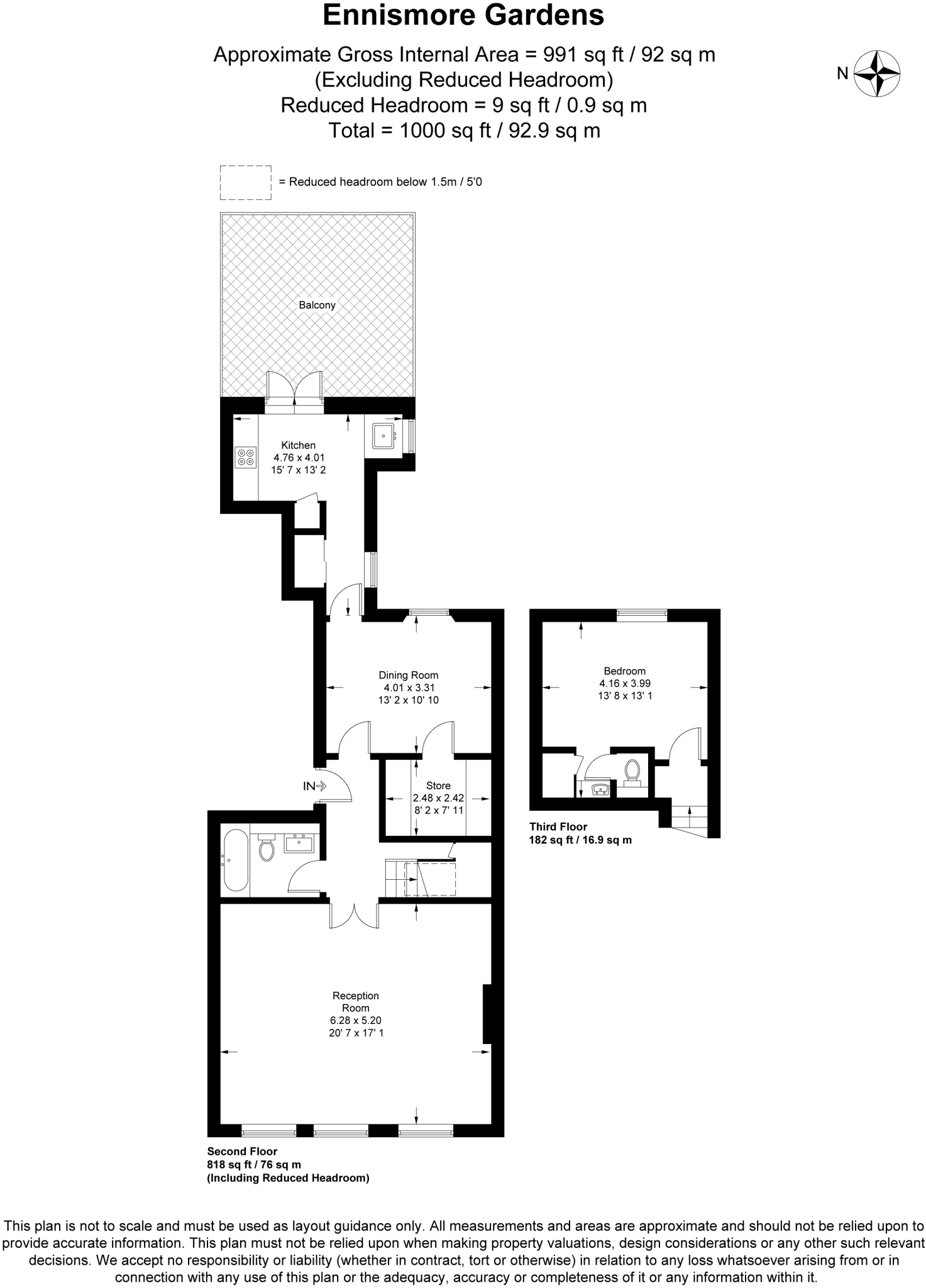
Approximately 1,000 sq ft (spacious central London maisonette)
This spacious period maisonette occupies approximately 1,000 sq ft in a gated Ennismore Gardens square, combining classic Victorian character with modern living. High ceilings, tall sash windows and a west-facing terrace provide good natural light and a pleasant outlook across the square and mews. The flat benefits from lift access, double glazing and share of freehold ownership.
The location is a major strength: immediate access to Knightsbridge shops and transport, and Hyde Park a few minutes’ walk away. The property suits buyers seeking a central London pied-à-terre or a comfortable city home with outdoor terrace and communal garden use.
Buyers should note a few practical points. The lease shows c.89 years remaining — ownership is share of freehold but the remaining term is shorter than many central London buyers prefer. Service charges are c.£7,000 pa (above average) and council tax is described as quite expensive. The building is solid-brick Victorian with assumed lack of cavity insulation; buyers may wish to consider potential energy-efficiency improvement costs.
Photos and the room list describe reception, dining room, kitchen, terrace and ensuite bathroom; there is an inconsistency in the supplied information about the bedroom count (materials state both one and two bedrooms). Prospective purchasers should confirm the exact bedroom configuration and review the lease and service-charge accounts before committing.
2 bedroom apartment for sale in Ennismore Gardens, Knightsbridge, London, SW7 — £1,625,000 • 2 bed • 2 bath • 1205 ft²
1 bedroom terraced house for sale in Ennismore Gardens, London, SW7 — £1,250,000 • 1 bed • 1 bath • 756 ft²
5 bedroom flat for sale in Ennismore Gardens, London, SW7 — £4,000,000 • 5 bed • 3 bath • 2154 ft²
4 bedroom maisonette for sale in Ennismore Gardens, Knightsbridge, London, SW7 — £9,950,000 • 4 bed • 3 bath • 2984 ft²
2 bedroom apartment for sale in Ennismore Gardens, Knightsbridge, London, SW7 — £1,750,000 • 2 bed • 2 bath • 1102 ft²
2 bedroom apartment for sale in Ennismore Gardens, Knightsbridge SW7 — £2,450,000 • 2 bed • 2 bath • 1235 ft²






































