TF9 3JS - 3 bedroom semidetached house for sale in 1 Mill House, Pepl…

View on Property Piper

3 bedroom semi-detached house for sale in 1 Mill House, Peplow, Market Drayton, TF9 3JS, TF9

Summary - MILL HOUSE 1 PEPLOW MARKET DRAYTON TF9 3JS

3 bed 2 bath Semi-Detached

**Standout Features:**
- Beautifully updated and extended period semi-detached home
- Three spacious double bedrooms, including an en-suite
- Modern home office/gym in a detached outbuilding
- Scenic gardens leading to the River Tern with fishing rights
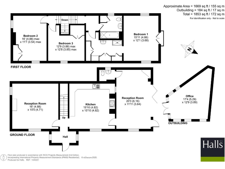
- Substantial living area of 1853 sq ft, situated on a generous plot
- Electric car charging point and fast broadband access
- Located in a tranquil rural hamlet with low crime rates

**Property Summary:**
Discover Mill House, an elegantly updated and extended period semi-detached home nestled in the peaceful hamlet of Peplow, just 13 miles northeast of Shrewsbury. This charming property boast three generous double bedrooms, including a principal suite with an en-suite shower and stunning river views. The heart of the home features inviting reception areas, with a delightful kitchen/dining room that boasts modern appliances and an open flow to the family room, perfect for entertaining.

Step outside to enjoy the beautifully landscaped gardens that extend to the water's edge, providing a rare opportunity for peaceful riverside relaxation and fishing rights. A modern detached outbuilding serves as a flexible home office or gym, equipped with heating and air conditioning. With potential for future improvements, this unique property combines character with modern living in an idyllic setting. Get ready to imagine a lifestyle of comfort and tranquility—properties like this don't stay on the market for long!

Property Details

Brochure Descriptions

Image Descriptions

Floorplan Description

Rooms

Textual Property Features

Detected Visual Features

EPC Details

Nearby Schools

Nearest Bars And Restaurants

,,,,}

Nearest General Shops

,,}

Nearest Grocery shops

,,}

Nearest Supermarkets

,,}

Nearest Religious buildings

,,}

Nearest Medical buildings

,,,}

Nearest Leisure Facilities

,,,,}

Nearest Tourist attractions

,,}

Nearest Train stations

,,,,}

Nearest Bus stations and stops

,,,,}

Nearest Hotels

,,}

Tags

Local Market Stats

Similar Properties

Meta

High Res Images

Compatible Images

Low res Images

Thumbnails

Raw Images

High Res Floorplan Images

Compatible Floorplan Images

Low res Floorplan Images

FloorplanImages Thumbnail

Raw Floorplan Images