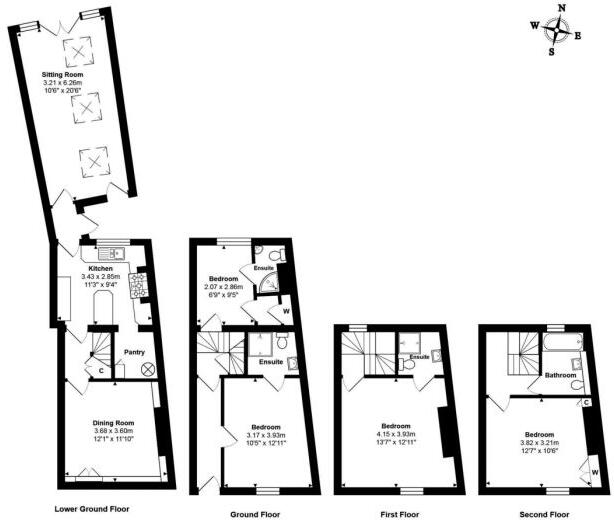
**Standout Features:**
- Freehold terraced property constructed between 1900-1929
- Four bedrooms and four bathrooms, ideal for HMO use with C4 planning consent
- Spacious living areas with modern touches, including skylights and patio doors for natural light
- Attractive private courtyard garden, enhancing outdoor living potential
- Strong rental yield: previously received £3,100 PCM for 25/26
- Excellent connectivity with fast broadband and excellent mobile signal
**Potential Concerns:**
- Located in a high-crime area
- Small plot size with solid brick walls and assumed lack of insulation
- Average-sized living room and bedrooms may necessitate future renovations for enhanced comfort
- Area classification indicating some deprivation, which could influence property values and desirability
Welcome to this charming Georgian-style mid-terrace property set in a vibrant, cosmopolitan student neighborhood of Oxford (OX4 1AH). With four bedrooms and four bathrooms, this freehold home is perfect for investors or families looking for a multifaceted living space that boasts potential for additional rental income through its existing C4 planning consent. Enjoy the contemporary living areas, flooded with natural light from skylights, alongside the inviting courtyard garden that invites outdoor relaxation and gatherings.
Positioned amid essential amenities, including top-rated educational institutions and a variety of shops and restaurants, this property encapsulates comfort and convenience. However, it’s important to note the high crime rate in the area and the property’s compact dimensions, calling for perhaps a creative renovation to maximize living space and insulation. With the existing promising rental yield and the potential for future developments, this property presents a unique opportunity to invest in a bustling community. Act quickly, as properties like this with such prime potential don’t stay on the market long!
4 bedroom terraced house for sale in East Avenue, East Oxford, OX4 — £475,000 • 4 bed • 1 bath • 807 ft²
5 bedroom terraced house for sale in Green Street, East Oxford, OX4 — £585,000 • 5 bed • 2 bath • 1073 ft²
3 bedroom terraced house for sale in Denmark Street, East Oxford, OX4 — £550,000 • 3 bed • 2 bath • 1033 ft²
4 bedroom semi-detached house for sale in Iffley, Central East Oxford, OX4 — £995,000 • 4 bed • 2 bath • 1912 ft²
3 bedroom terraced house for sale in St. Marys Road, Oxford, OX4 — £550,000 • 3 bed • 1 bath • 1299 ft²
2 bedroom terraced house for sale in Hawkins Street, East Oxford, OX4 — £550,000 • 2 bed • 1 bath • 727 ft²














































