Contemporary open-plan apartment minutes from Reading station and Tesco Extra.
Balcony with riverside views and river access
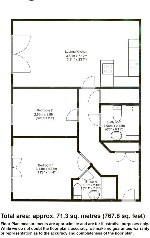
This bright two-bedroom flat sits on Napier Road with a balcony overlooking the riverside and easy walking access to Reading train station. The open-plan living area has contemporary finishes and integrated appliances, creating a low-maintenance home for a first-time buyer or commuter.
Practical features include covered allocated off-street parking, fast broadband and an EPC B rating. The property is leasehold with 125 years remaining, and the communal upkeep is funded by an annual service charge and a small ground rent. The flat is priced for a quick sale, offering immediate entry for someone prioritising location and convenience.
Buyers should note several factual drawbacks: heating is electric (electric boiler) rather than gas, the area has a medium flood risk, and local recorded crime levels are high. There is an annual service charge of around £2,200 and ground rent of £250, which should be factored into running costs.
Overall, this apartment suits a buyer who values transport links, riverside access and a turn-key contemporary interior, and who is comfortable with leasehold terms, service charges and the property's flood and crime context.
2 bedroom apartment for sale in Berkeley Avenue, Reading, Berkshire, RG1 — £325,000 • 2 bed • 2 bath • 844 ft²
2 bedroom flat for sale in Riverside development, Reading, RG1 — £260,000 • 2 bed • 1 bath • 754 ft²
2 bedroom apartment for sale in Riverside View, 5-9 Berkeley Avenue, Reading, Berkshire, RG1 — £325,000 • 2 bed • 2 bath • 847 ft²
1 bedroom apartment for sale in Carraway Street, Reading, United Kingdom, RG1 — £325,000 • 1 bed • 1 bath • 500 ft²
2 bedroom apartment for sale in Riverside View, Berkeley Avenue, Reading, RG1 — £385,000 • 2 bed • 2 bath • 894 ft²
2 bedroom apartment for sale in Luscinia View, Napier Road, Reading, RG1 — £295,000 • 2 bed • 2 bath • 734 ft²


































































