Ready-to-let coastal-styled holiday home with included site perks.
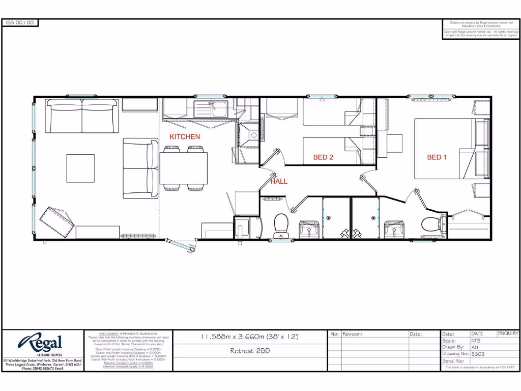
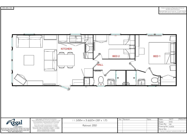
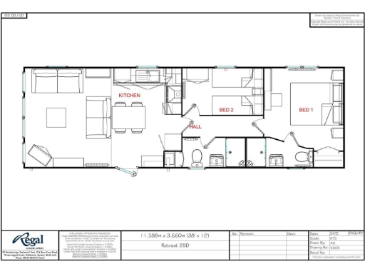
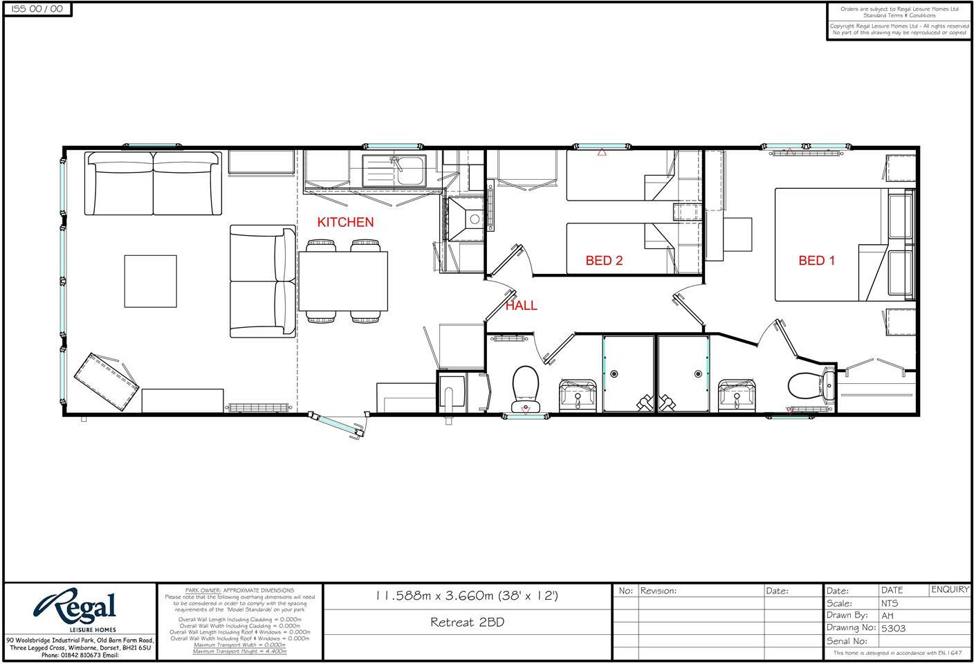
Small modern mobile home, approximately 456 sq ft total
Regal Retreat is a compact, modern mobile home positioned in a quiet hamlet near St. Austell, styled with coastal colours and vaulted ceilings to maximise perceived space. Its open-plan living area, integrated kitchen appliances and decking create an appealing, low-maintenance holiday let or seasonal retreat. Included perks such as a 25-year site licence, three-year warranty, a £350 utility credit and free TV/Wi‑Fi reduce running costs and speed to market.
The home measures approximately 456 sq ft with two bedrooms and two bathrooms, making it best suited to couples, small families or short-term rental guests. Double glazing and central heating provide year-round comfort, while the elevated decking and surrounding forest views offer outdoor appeal. Broadband and mobile signals are average; properties reliant on fast connectivity should verify speeds locally.
Buyers should note the property’s small overall footprint and compact room sizes — this is efficient, not spacious. It sits in an ageing rural neighbourhood and an isolated hamlet setting, which suits guests seeking peace but may limit daily conveniences. Free site fees apply only until February 2025; ongoing site costs and full licence terms should be reviewed before purchase.
2 bedroom park home for sale in Meadow Lakes Holiday Park, PL26 — £64,995 • 2 bed • 2 bath • 456 ft²
2 bedroom park home for sale in Glenleigh Park, Sticker, St Austell, PL26 — £180,000 • 2 bed • 2 bath • 841 ft²
1 bedroom park home for sale in Meadow Lakes Holiday Park, PL26 — £39,995 • 1 bed • 1 bath
2 bedroom mobile home for sale in Piran Meadows, White Cross, Newquay, Cornwall, TR8 — £25,000 • 2 bed • 1 bath • 432 ft²
2 bedroom bungalow for sale in Trewhiddle, St. Austell, Cornwall, PL26 — £250,000 • 2 bed • 1 bath • 776 ft²
2 bedroom park home for sale in St Columb Major, Cornwall, TR9 6JL, TR9 — £275,000 • 2 bed • 1 bath














































































































