Generous family home with driveway, garage and sizeable rear garden.
Chain-free four-bedroom semi-detached with 1,545 sq ft
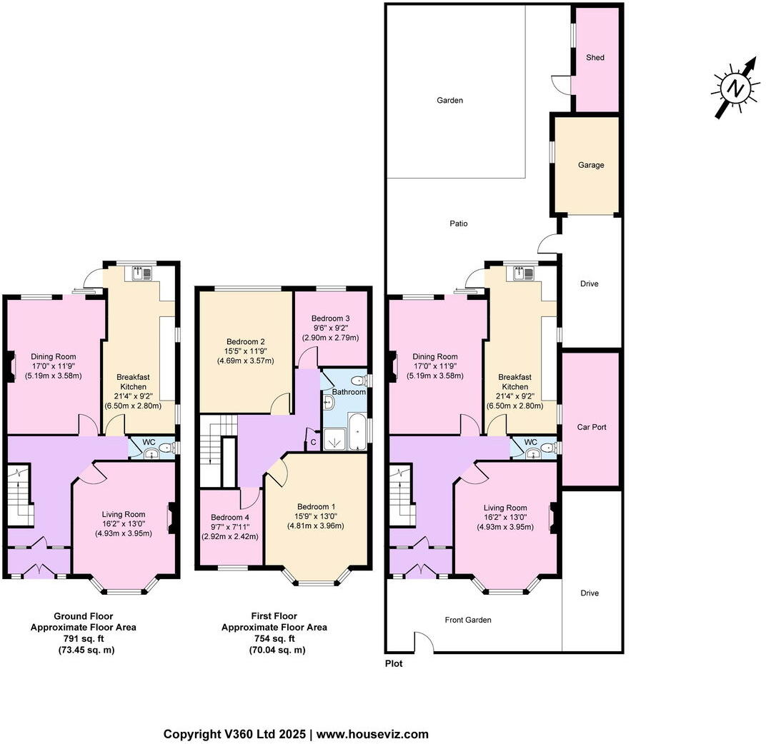
This spacious four-bedroom semi-detached home on Uppingham Road is offered chain-free and ready for a new owner to modernise. The property retains 1930s character—bay windows, high ceilings and a traditional layout—while providing practical family features such as a driveway, garage and a decent rear garden with patio.
Internally there are two reception rooms, a dining kitchen, downstairs WC and a four-piece bathroom upstairs serving all four bedrooms. The house has mains gas central heating, partial uPVC double glazing and a comfortable room count across about 1,545 sq ft, making it suitable for a growing family or buyers seeking a remodel with scope to add value.
Important considerations: the home needs renovation and upgrading in places, and the EPC rating is E. Walls are solid brick and likely uninsulated, so buyers should budget for energy-efficiency improvements and possible rewiring or bathroom/kitchen updates. There is only one bathroom for four bedrooms which may not suit larger families without reconfiguration.
Positioned in an established suburban area with good local schools, easy access to shops, public transport and commuter links to the M53 and Liverpool tunnel, this property will suit buyers who want a generous family house to adapt over time. Chain-free status and off-street parking make an immediate move realistic for the right purchaser.
4 bedroom semi-detached house for sale in Uppingham Road, Wallasey, CH44 — £325,000 • 4 bed • 1 bath • 1380 ft²
4 bedroom semi-detached house for sale in Liscard Road, Wallasey, CH44 — £375,000 • 4 bed • 2 bath • 1756 ft²
4 bedroom semi-detached house for sale in The Willows, Wallasey, Wirral, CH45 — £400,000 • 4 bed • 2 bath • 1477 ft²
3 bedroom semi-detached house for sale in Marlowe Road, Wallasey, CH44 — £230,000 • 3 bed • 1 bath • 1152 ft²
4 bedroom semi-detached house for sale in Broadway Avenue, Wallasey, CH45 — £360,000 • 4 bed • 3 bath • 1439 ft²
4 bedroom semi-detached house for sale in Cliff Road, Wallasey, Wirral, CH44 — £230,000 • 4 bed • 1 bath • 1363 ft²






















































































































