Three-bed family home with driveway and garden summer house.
Head-of-cul-de-sac position with open side aspects
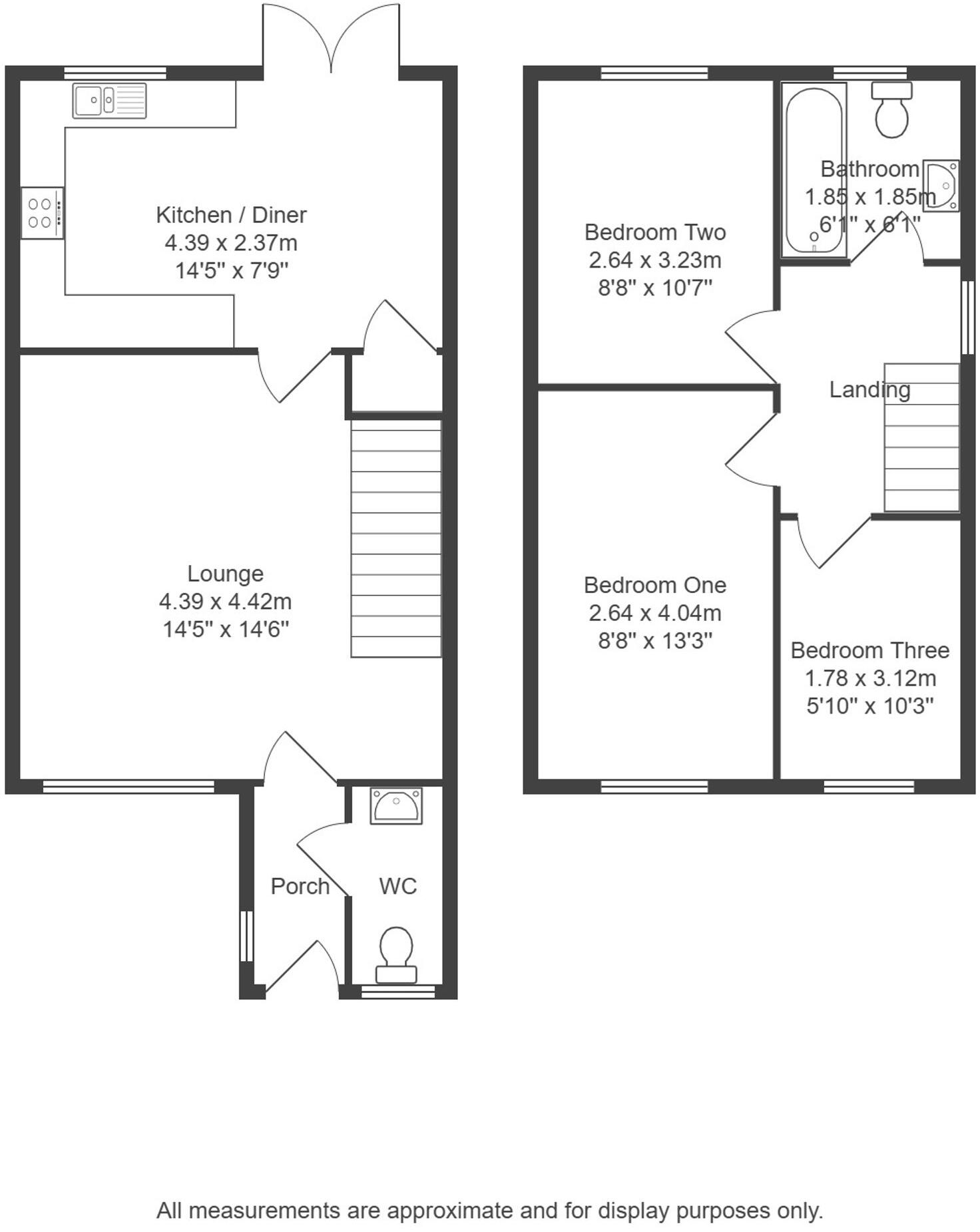
Set at the head of a quiet cul-de-sac, this three-bedroom semi-detached house offers well-presented, practical family living with easy access to local schools and commuter links. The living spaces are bright and neutrally finished, with a downstairs cloakroom and a first-floor family bathroom serving three bedrooms. A driveway for two cars and reliable mains gas central heating add everyday convenience.
Outside, the compact rear garden is low-maintenance with a decked area, artificial lawn and a sizeable summer house wired for electricity — useful as a home office or hobby space. The property enjoys open aspects to the side and quick access to canal-side and countryside walks around Cossall, making it appealing for families who value local green space.
Buyers should note the home sits on a small plot and the overall internal space is modest (approximately 732 sq ft). The EPC rating is D, and while the house is well presented, there is limited scope for major extension without checking planning constraints. Tenure is freehold and local services include fast broadband and excellent mobile signal.
This property suits a family seeking a low-maintenance, well-located home near good primary schools and commuter links, or a buyer wanting a ready-to-move-in house with a flexible summer house workspace. Viewings are recommended to assess room sizes and layout for your specific needs.
3 bedroom semi-detached house for sale in Malthouse Road, Ilkeston, DE7 — £235,000 • 3 bed • 1 bath • 734 ft²
3 bedroom semi-detached house for sale in Balmoral Road, Borrowash, Derby, DE72 — £239,000 • 3 bed • 1 bath • 1178 ft²
2 bedroom semi-detached house for sale in Whitehead Close, Shipley View, Ilkeston, Derbyshire, DE7 — £185,000 • 2 bed • 1 bath • 560 ft²
3 bedroom semi-detached house for sale in Sycamore Crescent, Sandiacre, Nottingham, NG10 — £210,000 • 3 bed • 1 bath • 1011 ft²
3 bedroom semi-detached house for sale in Brisbane Drive, Stapleford, Nottingham, NG9 — £240,000 • 3 bed • 1 bath • 629 ft²
3 bedroom semi-detached house for sale in Mayfield Drive, Nottingham, NG9 — £280,000 • 3 bed • 1 bath • 711 ft²






















































































