Deceptively spacious three-bedroom detached home with large garden and garage, close to Chislehurst High Street..
Large private plot with secluded rear garden
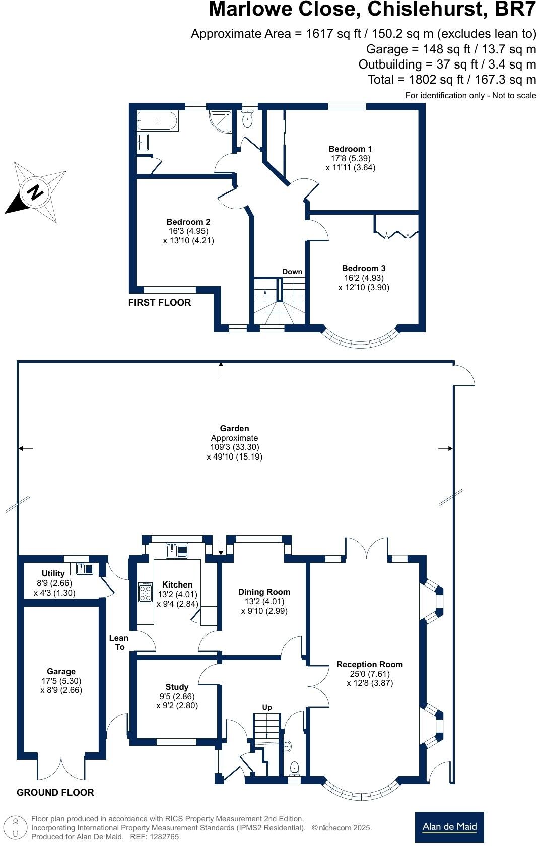
Detached double garage plus driveway for multiple cars
Three generous bedrooms; bright landing with large window
Single family bathroom only; may require updating
Scope to extend/renovate — neighbouring properties have done so
Built 1967–1975 with filled cavity walls and double glazing (date unknown)
Council Tax Band G — relatively expensive to run
Excellent mobile signal; average broadband speeds
Set at the end of a quiet close, this deceptively spacious three-bedroom detached home offers classic mid‑century proportions and a large private plot suited to family life. The ground floor provides two generous reception rooms, a study, and a fitted kitchen, while all principal rooms enjoy views across the secluded rear garden. A detached double garage and driveway provide substantial parking and storage.
Upstairs are three well-proportioned bedrooms and a single family bathroom; the landing is bright with an oversized window and there is loft access for additional storage or conversion subject to consents. The house was built in the late 1960s/early 1970s, with cavity walls and double glazing (installation date unknown). Neighbours have extended, so there is clear scope to enlarge or modernise the accommodation if desired.
Practical points to note: council tax is relatively high (Band G), tenure details are not provided, and the property will suit buyers prepared to update parts of the home to current tastes and standards. Broadband speeds are average though mobile signal is excellent. Positioned a short drive or walk from Chislehurst High Street and well-regarded schools, this property will appeal to families seeking space and long-term potential in a very affluent area.
 4 bedroom detached house for sale in Hartley Close, Bromley, BR1 — £975,000 • 4 bed • 2 bath • 1496 ft²
 4 bedroom detached house for sale in Hartley Close, Bromley, BR1 — £975,000 • 4 bed • 2 bath • 1496 ft² 5 bedroom detached house for sale in Islehurst Close, Chislehurst, BR7 — £990,000 • 5 bed • 2 bath • 2100 ft²
 5 bedroom detached house for sale in Islehurst Close, Chislehurst, BR7 — £990,000 • 5 bed • 2 bath • 2100 ft² 4 bedroom detached house for sale in Selby Close, Chislehurst, BR7 — £1,100,000 • 4 bed • 2 bath • 1653 ft²
 4 bedroom detached house for sale in Selby Close, Chislehurst, BR7 — £1,100,000 • 4 bed • 2 bath • 1653 ft² 5 bedroom detached house for sale in Old Perry Street, Chislehurst, BR7 — £1,850,000 • 5 bed • 5 bath • 3500 ft²
 5 bedroom detached house for sale in Old Perry Street, Chislehurst, BR7 — £1,850,000 • 5 bed • 5 bath • 3500 ft² 3 bedroom detached house for sale in Kenley Close, Chislehurst, BR7 — £925,000 • 3 bed • 2 bath • 1483 ft²
 3 bedroom detached house for sale in Kenley Close, Chislehurst, BR7 — £925,000 • 3 bed • 2 bath • 1483 ft² 4 bedroom detached house for sale in Ashfield Lane, Chislehurst, BR7 — £1,495,000 • 4 bed • 2 bath • 362 ft²
 4 bedroom detached house for sale in Ashfield Lane, Chislehurst, BR7 — £1,495,000 • 4 bed • 2 bath • 362 ft²














































































































































