B17 0BL - 7 bedroom semidetached house for sale in Harborne Park Road…

View on Property Piper

7 bedroom semi-detached house for sale in Harborne Park Road, Harborne, Birmingham, B17

Summary - 268 HARBORNE PARK ROAD BIRMINGHAM B17 0BL

7 bed 4 bath Semi-Detached

**Standout Features:**
- Recently renovated, semi-detached property
- 7 spacious bedrooms and 4 modern bathrooms
- Expansive garden with a sun terrace and hot tub
- Versatile garden house with electrics and lighting
- Ideal for large families or as a lucrative rental investment
- Conveniently located near amenities, parks, and schools

**Summary:**
Embrace the perfect blend of space, modern living, and charming character in this stunning semi-detached home on Harborne Park Road. Newly renovated and extended, this impressive property offers seven generous bedrooms and four contemporary bathrooms, making it an ideal haven for families or investors looking to capitalize on the rental market. The heart of the home features a modern kitchen-diner that flows into a snug area, perfect for entertaining. Relax in the expansive lounge which opens up via bi-fold doors to a beautifully landscaped garden, complete with a sun terrace and inviting hot tub.

The home benefits from a unique spiral staircase leading to the spacious master bedroom suite, complete with a bathroom featuring a freestanding bath—offering a serene retreat. Additionally, a purpose-built garden house provides extra space for a home office or recreational area. Located in the desirable area of Harborne, this property is within walking distance of local amenities, parks, and highly-rated schools, catering to families seeking a supportive community. The combination of ample space, modern amenities, and a prime location makes this property a rare find—don’t miss the opportunity to make it yours!

Property Details

Brochure Descriptions

Image Descriptions

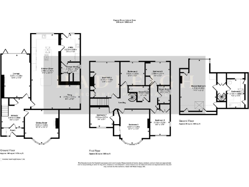
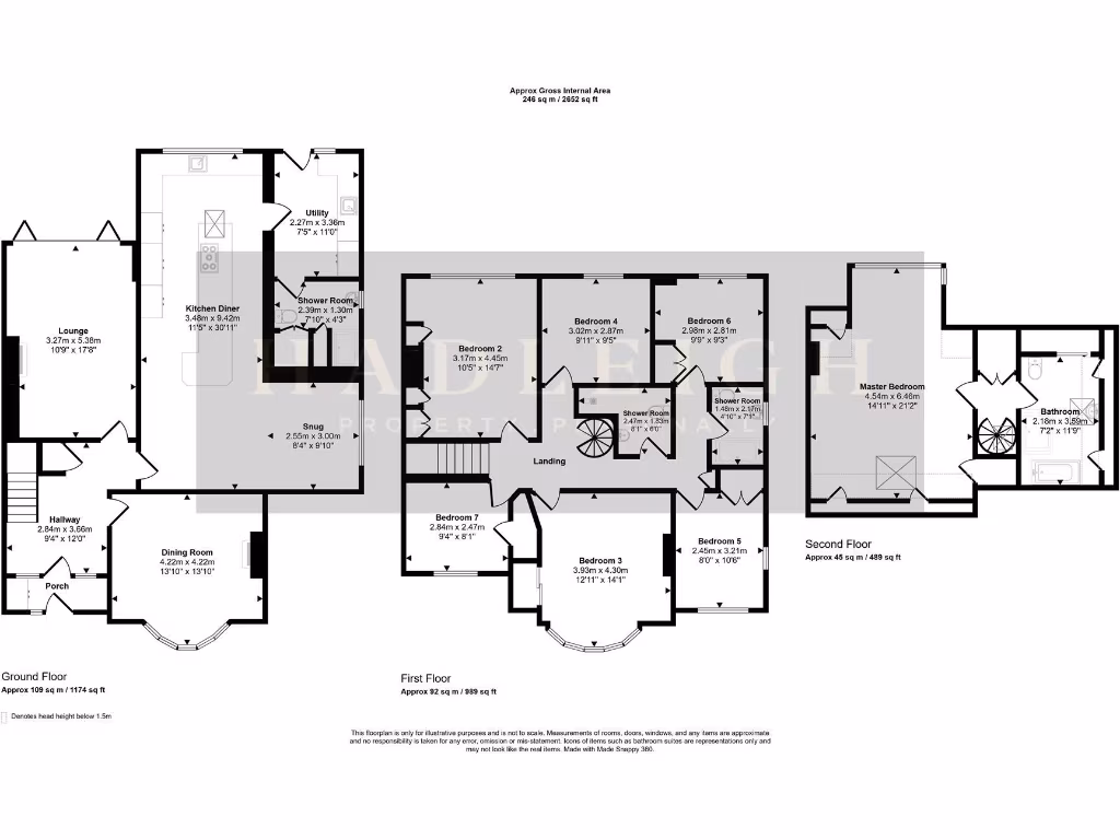
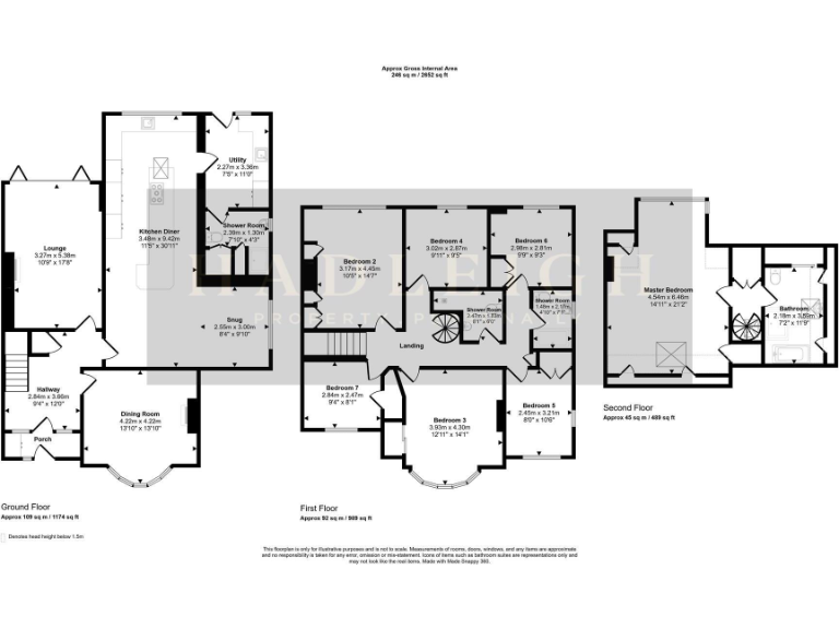
Floorplan Description

Rooms

Textual Property Features

Detected Visual Features

EPC Details

Nearby Schools

Nearest Bars And Restaurants

,,,,}

Nearest General Shops

,,}

Nearest Grocery shops

,,}

Nearest Supermarkets

,,}

Nearest Religious buildings

,,}

Nearest Medical buildings

,,,}

Nearest Airports

}

Nearest Leisure Facilities

,,,,}

Nearest Tourist attractions

,,}

Nearest Train stations

,,,,}

Nearest Bus stations and stops

,,,,}

Nearest Hotels

,,}

Tags

Local Market Stats

AirBnB Data

Similar Properties

Meta

High Res Images

Compatible Images

Low res Images

Thumbnails

Raw Images

High Res Floorplan Images

Compatible Floorplan Images

Low res Floorplan Images

FloorplanImages Thumbnail

Raw Floorplan Images