Freehold ground-floor one-bedroom apartment in Edinburgh New Town
Proven short-let net income £26,000 (2024/25), ~7.76% net yield
Fully managed service; service charge included in management
High-quality finishes: Siemens kitchen, Silestone worktops, oak floors
Upgraded energy-efficient windows and Nest-controlled heating
Ground-floor: potential privacy and street-noise considerations
Very slow broadband speeds — verify connectivity before purchase
Wider area classified as very deprived; consider long-term growth risk
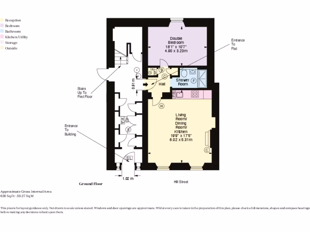
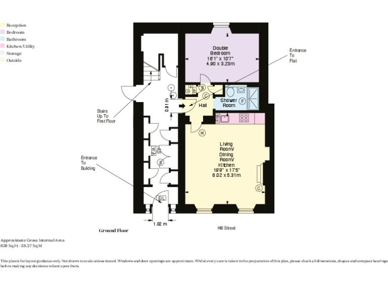
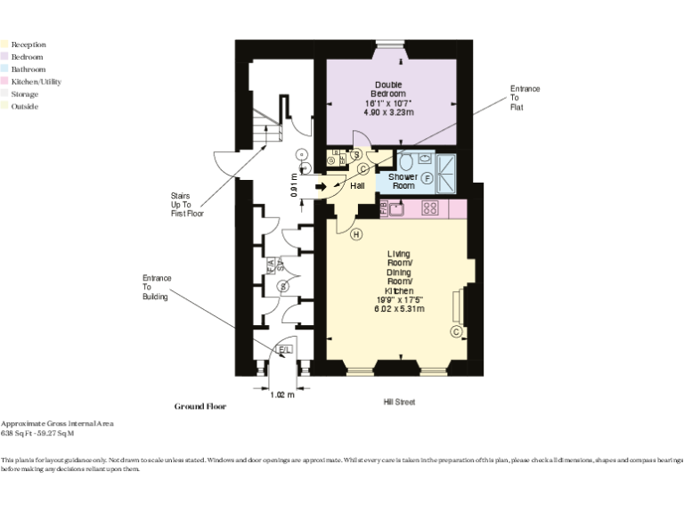
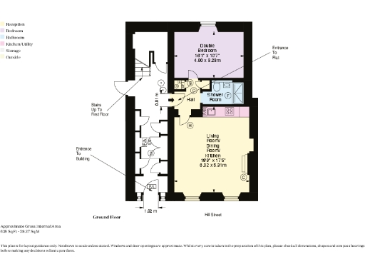
Situated on Hill Street in Edinburgh’s New Town, this ground-floor one-bedroom apartment offers a rare freehold, turn-key investment with proven short-let performance. The apartment is immaculately presented, with hand-scraped oak floors, upgraded energy-efficient windows and Nest-controlled heating, and benefits from large period sash-and-case windows that flood the open-plan living space with light. The fitted kitchen includes Siemens appliances and Silestone worktops; the bedroom has built-in storage and the bathroom features a large walk-in rain-effect shower.
Performance and management are key strengths: the apartment produced a net annual income of £26,000 in 2024/25, equating to an approximate 7.76% net yield at the current asking price, and is fully managed with the service charge included. The freehold tenure removes leasehold complications, and the property sits moments from Charlotte Square, George Street and the St James Quarter — locations that sustain high short-let demand.
Buyers should note material considerations plainly: broadband speeds are reported as very slow, and the wider area is classified as very deprived, which may affect long-term capital growth expectations. As a ground-floor flat, it also has the usual privacy and potential noise considerations associated with street-level living. Prospective purchasers should verify council rates relief eligibility and review management terms and short-let agreements before purchase.
This property suits an investor seeking an actively performing, low-effort Edinburgh short-let asset in a prestigious address, or a buyer wanting a stylish, city-centre pied-à-terre with immediate rental income. The combination of listed period character, modern fittings, and established management makes this a compelling, hands-off investment — provided the noted service, broadband and location factors align with buyer priorities.



















































































































































































