Move-in ready home ideal for first-time buyers seeking low-maintenance living.
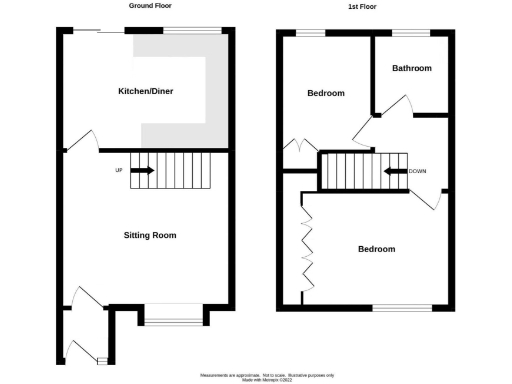
Two well-proportioned first-floor bedrooms
Modern, well-fitted dining kitchen with garden access
Luxury house bathroom, gas central heating and double glazing
Impressive block-paved driveway plus single garage
Small overall size (approx. 559 sq ft) and small garden plot
Freehold and offered with no upward chain
EPC currently TBC; buyers should verify energy rating
Local area: very affluent but with above-average crime rates
Well presented and move-in ready, this two-bedroom mid-terrace offers an attractive, modern layout aimed at first-time buyers. The ground floor features a generous sitting room and a contemporary dining kitchen with garden access, while two well-proportioned bedrooms and a luxury bathroom sit on the first floor. The house is gas‑heated, double glazed and sold freehold with no upward chain.
Practical extras include an impressive block‑paved driveway and a garage for off‑road parking, plus a small, secluded rear garden that is easy to maintain. Local amenities, primary schools with Good Ofsted ratings, regular transport links and nearby shopping make this a convenient place to live.
Buyers should note the property’s modest overall size (approximately 559 sq ft) and small plot, which may suit couples, singles or young families rather than those needing generous living space. The local area records above‑average crime statistics, and the EPC is listed as TBC — buyers are advised to check energy performance details and commission a survey if needed.
2 bedroom semi-detached house for sale in Gayfield Avenue, Withymoor Village, Brierley Hill, DY5 2SU, DY5 — £230,000 • 2 bed • 1 bath • 636 ft²
2 bedroom terraced house for sale in Bottle Kiln Rise, Brierley Hill, DY5 — £212,000 • 2 bed • 1 bath • 548 ft²
2 bedroom terraced house for sale in Briars Close, Brierley Hill, DY5 3JW, DY5 — £199,950 • 2 bed • 1 bath • 559 ft²
2 bedroom end of terrace house for sale in Foxdale Drive, Brierley Hill, DY5 3GX, DY5 — £150,000 • 2 bed • 1 bath • 453 ft²
2 bedroom terraced house for sale in Field Mews, Netherton, Dudley, DY2 9NN, DY2 — £180,000 • 2 bed • 1 bath • 421 ft²
2 bedroom terraced house for sale in Foxdale Drive, Brierley Hill, DY5 3GY, DY5 — £165,000 • 2 bed • 1 bath • 754 ft²






























































